
|
設計說明: 這棟農村小洋樓設計圖底部采用淺褐色文化石,中部為褐色和淺黃色磚石,屋頂覆蓋紅褐色陶土瓦,色彩搭配恰到好處,給人眼前一亮的視覺感受。
案例基本信息
? 占地尺寸:10.7x7.9m
? 占地面積:84.5㎡
? 建筑面積:172㎡
? 建筑情況:3室2廳1廚1餐2衛1書房
? 建筑結構:磚混結構
? 造價估算:16萬
效果圖:
別墅為對稱布局,在中軸線上采取橫向構圖。中部羅馬柱和圍廊的設計讓房子更顯美觀大氣。
西側在一二兩層不同位置開飄窗,形成錯落的美感。飄窗利用了大面積的玻璃采光,保留了寬敞的窗臺,使得室內空間在視覺上得以延伸。
飄窗三面開窗,使居住者有了更廣闊的視野。稍加裝飾,這里將會變成小書房、休息室甚至小型會客室。
平面圖: 一層入口門廳寬敞開闊,可以緩和室內外的溫差,還可起到引導作用。此處空間較大,也可與客廳之間做個裝飾隔斷,放置鞋柜、衣架,美觀又實用。
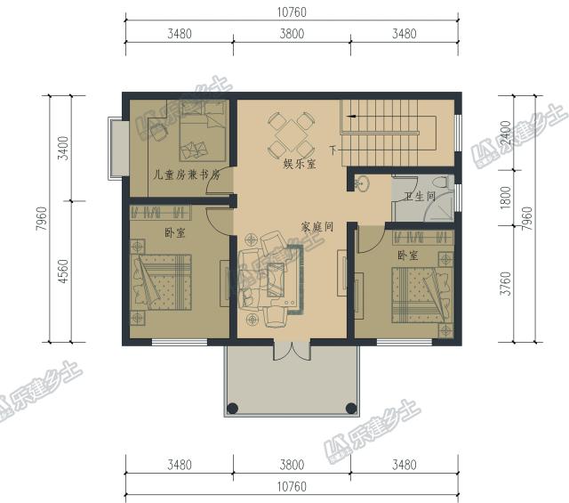
二層主要為主人一家休息、娛樂的場所。家庭間和娛樂室是家人之間互相陪伴、溝通感情的場所。陽臺是居住者接受光照、吸收新鮮空氣、納涼、晾曬衣物的空間。喜歡花草的家庭,陽臺還可以變成宜人的小花園,增添生活情趣。
立面圖:
這個別墅造型簡單,經濟適用,帶有飄窗的設計一定很受年輕人的歡迎,是一個不錯的自建房案例。你的房子由你做主,想要擁有一套獨一無二的別墅么?聯系我們的設計師吧,為您打造完美私宅。 圖紙之家-專注農村別墅/自建房設計18年,集合國內200余位經驗豐富的設計師,被評為口碑最好的農村建筑設計公司! |

農村中式四合院房屋圖片及設計圖,白墻黛瓦的江南風格
占地:337平方米
新農村三層房屋設計圖紙大全,新農村住宅圖紙
占地:108平方米
帶開放式車庫的二層別墅!配土灶、室外樓梯,新穎還顯品味
占地:127.2平方米
160平方米二層小別墅設計圖紙及效果圖大全,12X13米
占地:162平方米
簡單大氣農村兄弟三層雙拼別墅住宅設計圖,13X8米
占地:110平方米左右
爆款120平米三層農村別墅房屋設計圖,室內布局功能齊全,色彩搭
占地:120平方米
11x9三層別墅房屋設計圖,含效果圖片
占地:97平方米
二層美式花園洋房設計圖,帶堂屋戶型,外觀簡直美爆了
占地:159.32平方米
大氣豪華四層別墅設計圖紙,占地180平米左右
占地:180平方米
造型新穎漂亮的農村二層現代風別墅設計圖,老少皆宜的外觀
占地:144.54平方米
異形宅基地二層農村別墅設計圖,現代風時尚又大氣
占地:242.03平方米
200平方米穩重大氣三層雙拼別墅建筑設計圖紙,含效果圖19.04米
占地:200平方米
簡單時尚二層住宅設計圖紙,簡單的設計,不平凡的視覺感受
占地:110平方米
時尚典雅歐式三層自建房設計圖,美觀大氣簡單舒適,好看到沒得
占地:153.12平方米
農村17萬元一層自建別墅設計圖,外觀簡潔,戶型方正
占地:163平方米
帶露臺陽光房二層建房別墅設計圖,13米乘12米,享受農村悠然慢
占地:143.54平方米
面寬不到8米的農村二層半別墅建筑圖紙及效果圖
占地:96平方米左右
120平米農村房屋設計圖,造價20萬左右,別墅造型結構精致
占地:120平方米
獨棟經濟型二層小別墅房屋設計圖,含全套施工圖效果圖
占地:多種戶型
農村自建房三間設計圖,花錢少效果好12米乘9米,經濟適用性價比
占地:108.9平方米
推薦:10套新農村自建房設計圖,2026年最新設計
閱讀次數:4825737次
100套鄉村別墅圖片大全,2026年最新設計
閱讀次數:2492203次
6款農村蓋一層平房的設計圖,10萬元就能建起來
閱讀次數:1852637次
這11個一層農村自建房別墅火爆了朋友圈!我最喜歡戶型十!你呢
閱讀次數:750268次
農村6萬元建一層小別墅圖,你敢相信嗎
閱讀次數:567686次
農村5萬塊就能自建房,6套普通房子設計圖分享,你沒看錯!
閱讀次數:419410次
8套農村漂亮三間平房圖片,非常適合在農村修建!
閱讀次數:411197次
農村自建房化糞池怎么做?附方案及施工過程
閱讀次數:391783次
農村一層三間平房設計圖,告別土氣養老房,讓人忍不住點贊
閱讀次數:350581次
新農村二層樓房圖片造價12萬,挑一套回家建房吧!
閱讀次數:349126次
