
|
13×12米50萬三層帶閣樓層4廳6室別墅全套CAD施工圖
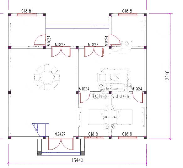
層數:四層(含閣樓層) 開間:13.44米 進深:12.24米 首層占地面積:148.43平方米 總建筑面積:537.75平方米 房屋總高度:15.15米 結構形式:磚混結構 主體造價:50萬 功能設計
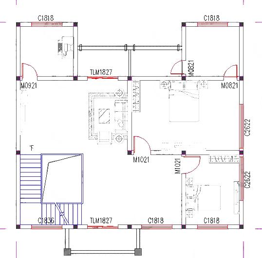
一層平面圖 一層:會客廳、客廳、廚房、餐廳、公衛、臥室×2
二層平面圖 二層:起居室、臥室(帶衛生間、陽臺)、臥室、陽臺×2、書房
三層平面圖 三層:起居室、臥室(帶陽臺、衛生間)、臥室、陽臺×2、電腦房
閣樓層平面圖 各樓層:家庭廳、露臺、閣樓間 其他別墅圖紙展示:
1
2
3
4
5 圖紙之家-專注農村別墅/自建房設計18年,集合國內200余位經驗豐富的設計師,被評為口碑最好的農村建筑設計公司! |

150平米田園風格二層別墅設計圖紙,沉穩大氣有內涵
占地:150平方米
農村建房的“面子天花板”!新中式簡歐結合三層別墅,進門就被
占地:225.98平方米
130平方米新農村三層房屋設計圖紙,外觀簡單大方
占地:130平方米
二層復式樓房設計圖,平實接地氣的平面布局
占地:180平方米
農村三層私人住宅設計圖紙及效果圖,帶車庫,帶露臺
占地:150平方米
簡歐復式四層別墅房屋設計圖,外觀圖高端、大氣
占地:143平方米
帶地下室(車庫)的二層別墅設計圖,外觀效果圖時尚美觀
占地:149平方米左右
戶型好的三層帶獨立車庫的樓房設計圖,含外觀效果圖
占地:148平方米
大氣的150平方米新中式三層別墅建筑圖及效果圖
占地:150平方米左右
陽臺封閉的簡約實用二層別墅設計圖,15x12.8米
占地:165平方米
2026新款農村四層別墅設計圖紙戶型圖,帶挑空客廳
占地:150平方米
大氣自建三層雙拼別墅戶型圖方案,完美的戶型就是它
占地:287平方米
農村三層帶車庫、帶露臺別墅設計圖,經典自建別墅設計方案
占地:160平方米
簡約精致的二層房子設計圖,農村自建經濟實用
占地:89.76平方米
最耐看的二層別墅設計圖,15米寬12米深,方正大氣經濟美觀!
占地:180平方米
簡單大氣農村兄弟三層雙拼別墅住宅設計圖,13X8米
占地:110平方米左右
占地180平豪華三層農村別墅自建房設計圖,歐式與現代相融合
占地:183.706平方米
帶中式小院的二層仿古別墅設計圖,小戶型自建房設計,外觀美極
占地:82.94
二層兄弟雙拼農村別墅圖新中式,兄弟這樣建房,大氣省錢
占地:143.412平方米
小型新中式二層小別墅圖紙設計方案,好看造價不高
占地:232.98平方米
推薦:10套新農村自建房設計圖,2026年最新設計
閱讀次數:4825737次
100套鄉村別墅圖片大全,2026年最新設計
閱讀次數:2492203次
6款農村蓋一層平房的設計圖,10萬元就能建起來
閱讀次數:1852637次
這11個一層農村自建房別墅火爆了朋友圈!我最喜歡戶型十!你呢
閱讀次數:750268次
農村6萬元建一層小別墅圖,你敢相信嗎
閱讀次數:567686次
農村5萬塊就能自建房,6套普通房子設計圖分享,你沒看錯!
閱讀次數:419410次
8套農村漂亮三間平房圖片,非常適合在農村修建!
閱讀次數:411197次
農村自建房化糞池怎么做?附方案及施工過程
閱讀次數:391783次
農村一層三間平房設計圖,告別土氣養老房,讓人忍不住點贊
閱讀次數:350581次
新農村二層樓房圖片造價12萬,挑一套回家建房吧!
閱讀次數:349126次
