
占地尺寸:9.2mX13.1m 占地面積:110㎡ 建筑面積:201㎡ 總 高 度:9.65m
流暢的現代化設計無需過多的裝飾,更加注重展現建筑結構的形式美,和不同色彩搭配的效果。
共設2室 1廳 2衛 1廚 1車庫 3陽臺 1露臺
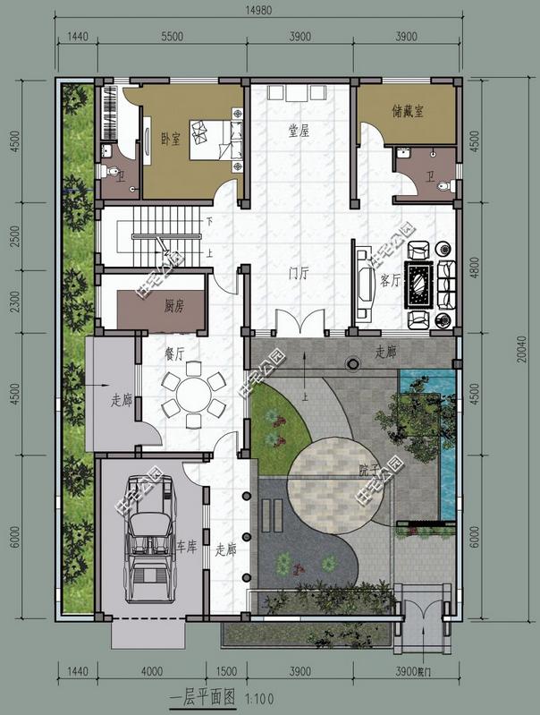
占地尺寸:15mX20m 占地面積:300㎡ 建筑面積:341㎡ 總 高 度:10.62m
這套別墅在傳統的院落式住宅上應運而生,將傳統院落式精髓貫穿于整體設計思想當中,用現代都手法加以簡化而生,應運而出這套更為符合現代農村居住需求的院落式別墅。
共設4室 3廳 1堂屋 5衛 1廚 2儲藏室 1車庫 2露臺
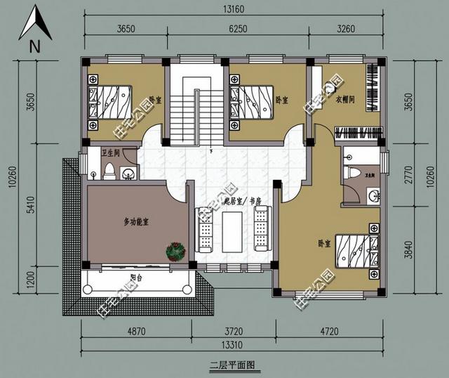
占地尺寸:12.5mX13.5m 占地面積:148㎡ 建筑面積:252㎡ 總 高 度:9.26m
簡潔落白的外墻置入金屬窗框,恰如其分的營造出清澈、舒適而雅致的氛圍。
共設6室 2廳 1廚 4衛 1門斗 1陽臺
占地尺寸:13mX15.2m 占地面積:158㎡ 建筑面積:283㎡ 總 高 度:10.5m
大面積的玻璃窗使空間具有足夠的自然通風與光線,外墻溫馨和諧的色彩搭配讓別墅整體多了一份韻味。
共設5室 2廳 4衛 1廚 1柴火房 2陽臺
占地尺寸:13.5mX10.6m 占地面積:145㎡ 建筑面積:273㎡ 總 高 度:10.1m
朱紅與暖黃色的交替,營造了住宅所需安詳又寧靜的氛圍,仿佛對稱的造型卻又添加不同的裝飾讓人眼前一亮。
圖紙之家-專注農村別墅/自建房設計18年,集合國內200余位經驗豐富的設計師,被評為口碑最好的農村建筑設計公司! |

35萬內三層自建別墅設計圖,外觀美觀,戶型舒適
占地:135平方米
面寬16米方正實用二層別墅設計圖,中式風格不輸村里的別墅洋房
占地:182.82平方米
100平新農村三層復式房屋別墅設計圖紙,造價30萬左右
占地:106平方米
鄉下建房一層半戶型圖,占地160平米,帶閣樓
占地:多種戶型
240平方米新農村四合院兩層樓房施工設計圖紙帶外觀圖
占地:234平方米
面寬18米二層農村大別墅設計圖,可帶電梯,舒適又實用
占地:138.29平方米
帶土灶房一層四開間別墅設計方案,溫馨舒適的雅舍
占地:164.34平方米
100來平復式旋轉樓梯二層簡歐別墅設計圖,戶型實用
占地:101.523平方米
經濟、不張揚!簡單二層別墅設計圖,農村建房直接抄作業
占地:198.58平方米
135平三層農村樓房設計圖及效果圖,造價20萬左右
占地:135平方米
三層雙拼別墅效果圖及戶型設計圖,占地150平米
占地:154.8平方米
兄弟四間三層雙拼別墅設計圖,造價40萬左右
占地:210平方米
鄉村房屋改建三層房屋設計圖紙,農村樓房設計圖推薦
占地:90平方米
方方正正的二層農村別墅設計圖,普通農村人都能建
占地:201.05平方米
網紅農村一層小別墅設計圖,建一層的必看
占地:多戶型可選
帶堂屋設計一層5間平房新農村自建別墅效果圖全套施工圖
占地:198.41平方米
180平方米新農村三層別墅設計圖紙,效果圖+全套cad施工圖
占地:180平方米
私人自建三層別墅設計圖紙帶效果圖,歐式風格、外觀大氣
占地:209.44平方米
125平自建房設計圖二層戶型,建房選這款準沒錯
占地:124.04平方米
小型中式一層三合院別墅設計圖,小宅基地照樣建合院
占地:119.73平方米
推薦:10套新農村自建房設計圖,2026年最新設計
閱讀次數:4825737次
100套鄉村別墅圖片大全,2026年最新設計
閱讀次數:2492203次
6款農村蓋一層平房的設計圖,10萬元就能建起來
閱讀次數:1852637次
這11個一層農村自建房別墅火爆了朋友圈!我最喜歡戶型十!你呢
閱讀次數:750268次
農村6萬元建一層小別墅圖,你敢相信嗎
閱讀次數:567686次
農村5萬塊就能自建房,6套普通房子設計圖分享,你沒看錯!
閱讀次數:419410次
8套農村漂亮三間平房圖片,非常適合在農村修建!
閱讀次數:411197次
農村自建房化糞池怎么做?附方案及施工過程
閱讀次數:391783次
農村一層三間平房設計圖,告別土氣養老房,讓人忍不住點贊
閱讀次數:350581次
新農村二層樓房圖片造價12萬,挑一套回家建房吧!
閱讀次數:349126次
