
|
今天推薦的圖紙,適用性強,放哪都可以建,符合農村風俗,外觀漂亮布局合理,關鍵主體結構造價才20萬,驚喜吧!大家快來看看吧。 10X11米的歐式三層小別墅圖 項目概況: 一、用地尺寸:10X11米 二、占地大小:110平方米 三、總建筑面積:300平方米 四:總層數:三層 五:主體造價:20萬
圖紙之家-專注農村別墅/自建房設計18年,集合國內200余位經驗豐富的設計師,被評為口碑最好的農村建筑設計公司! |

130平方米湖南二層復式自建房屋設計圖紙12x11米
占地:128平方米
2026新款三層小別墅設計圖,占地150平米,帶地下室
占地:150平方米
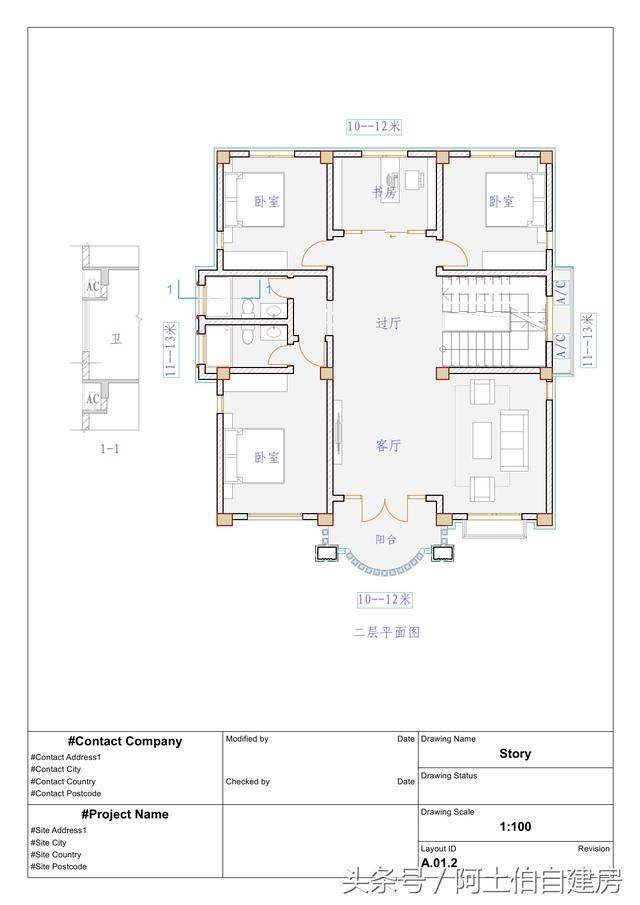
地中海風格二層別墅設計圖方案,含外觀效果圖
占地:130平方米
面寬13米方正戶型二層小別墅設計方案,南北通透采光好
占地:166.78平方米
簡簡單單的二層樓房的設計圖,24萬就能搞定
占地:120平方米
15×10米農村二層四合院自建房戶型圖,小型四合院設計圖
占地:150平方米
雅致的鄉下二層蓋別墅設計圖紙,造價35萬左右
占地:178平方米
帶車庫鄉下雙拼別墅設計圖,三層造型漂亮大全
占地:256平方米
農村一層四間平房設計圖方案,含外觀圖片,預算10萬
占地:190平方米
二層現代風格雙拼別墅設計圖,平屋頂,帶地下室設計
占地:192.47平方米
南方新農村三層樓房設計圖紙,帶房屋效果圖
占地:110平方米
兄弟合建房新農村三層雙拼別墅建筑圖紙及效果圖,300平方米
占地:301平方米
中式三層新農村房子別墅設計圖,看了那么久,還是中式最有韻味
占地:97.2平方米
一層鄉村自建別墅設計方案推薦,含外觀圖片
占地:148平方米
鄉下建房一層半戶型圖,占地160平米,帶閣樓
占地:多種戶型
140平方米三層半新農村房屋別墅設計圖,帶車庫
占地:140平方米
200平方農村三層別墅房屋設計圖及效果圖,大戶型精選
占地:200平方米
20多萬的造價一層三合院農村自建房效果圖
占地:225.048平方米
小占地二層徽派別墅設計圖,白墻黛瓦韻味十足,太氣派了
占地:89.6平方米
適合農村建造的二層房屋設計圖紙及效果圖,帶悶頂層,占地15
占地:150平方米
推薦:10套新農村自建房設計圖,2026年最新設計
閱讀次數:4825737次
100套鄉村別墅圖片大全,2026年最新設計
閱讀次數:2492203次
6款農村蓋一層平房的設計圖,10萬元就能建起來
閱讀次數:1852637次
這11個一層農村自建房別墅火爆了朋友圈!我最喜歡戶型十!你呢
閱讀次數:750268次
農村6萬元建一層小別墅圖,你敢相信嗎
閱讀次數:567686次
農村5萬塊就能自建房,6套普通房子設計圖分享,你沒看錯!
閱讀次數:419410次
8套農村漂亮三間平房圖片,非常適合在農村修建!
閱讀次數:411197次
農村自建房化糞池怎么做?附方案及施工過程
閱讀次數:391783次
農村一層三間平房設計圖,告別土氣養老房,讓人忍不住點贊
閱讀次數:350581次
新農村二層樓房圖片造價12萬,挑一套回家建房吧!
閱讀次數:349126次
