
|
現在農村經濟條件越來越好,家家戶戶都蓋起了小別墅,在農村嘛,還得講究實用,120平左右的戶型是最流行的,小編這次推薦5款120平左右的方案,二層、三層的都有,都是比較經典的,喜歡的先收藏。每日奔波在喧囂的城市中,你是否曾經想過有一天我們終究老區,是否能放慢節奏邂逅午后的夕陽,老家是我們的根,回家建一棟屬于自己的別墅吧! 第一套:棕黃色的外墻配合紅色屋頂,整體看起來雖然簡單,但不失時尚。 占地面積:11.9m*10.2m,120平方米左右; 建筑層高:二層; 建筑高度:8.47米(含屋頂); 設計功能: 一層戶型:玄關、客廳、餐廳、廚房、儲藏間、主臥(含衛生間)、衛生間; 二層戶型:客廳、主人套間(含衛生間、衣帽間、書房)、臥室、衛生間、露臺;
第二套:棕黃色的文化石,加上深棕色的外墻,配上藍色屋頂,整體自然,和諧。 占地面積:12.00m*10.80m,130平方米左右; 建筑層高:二層; 建筑高度:9.06米(含屋頂); 設計功能: 一層戶型:玄關、客廳、餐廳、廚房、衛生間、臥室(衛生間)、儲藏間(樓梯下面); 二層戶型:客廳、主臥(帶衛生間和書房或衣帽間)、臥室x2、衛生間、露臺、陽臺;
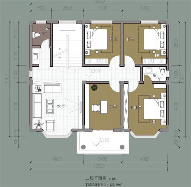
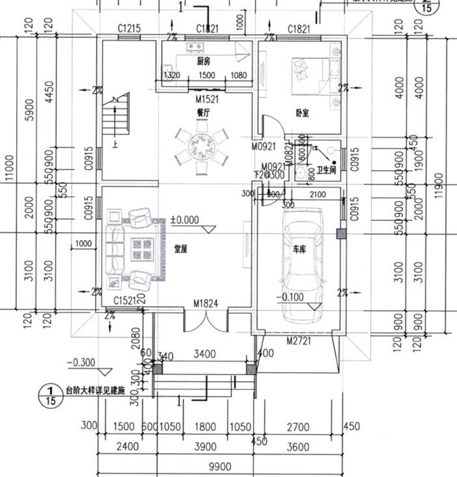
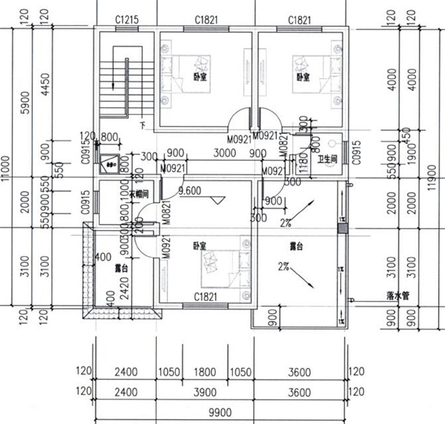
第三套:絕對經典的戶型,整體配色柔和,大面積米黃色真石漆突顯家里的溫暖感,局部棕色的瓷磚,更顯穩重、大氣,搭配淺藍的的屋頂既和諧自然,又落俗套。 建筑占地面積:9.9m*11.9m=118平方米; 建筑面積:306平方米 建筑層數:三層; 造價預算:20萬左右 建筑高度:9.6米(不含屋頂)坡屋頂; 設計功能: 一層:堂屋(客廳)、餐廳、廚房、衛生間、臥室、車庫、洗衣房(可做儲藏間); 二層:起居室(客廳)、臥室x3、衛生間、露臺、陽臺; 三層:主臥(帶露臺帶衣帽間)、臥室x2、衛生間、露臺;
第四套:暗紅色的文化石加上白色的墻體,藍色的屋頂拼接在一起,讓整個房子更顯的大氣,時尚,三層的大露臺,養花、養小寵物都非常方面,夏天還可以乘涼。 占地面積:12.00m*10.1m,120平方米左右; 建筑層高:三層; 建筑高度:12.41米(含屋頂); 設計功能: 一 層:堂房、客廳、廚房、餐廳、臥室(帶衛生間)、衛生間、儲藏間; 二 層:客廳、臥室x3(其中1個臥室帶衛生間)、書房、衛生間; 三 層:休息區、活動房、衛生間、大露臺、后露臺;
第五套:黃色的文化磚+乳黃色的墻體,配合紅色的屋頂,整體看起來精致、時尚,色彩比較活躍,左右兩邊對稱的外觀,符合中國人的審美觀。 占地面積:11.5m*10.5m,120平方米左右; 建筑層高:二層; 建筑高度:9.20米(含屋頂); 設計功能: 一層戶型設計:客廳、臥室x2、廚房、餐廳、衛生間 二層戶型設計:主臥、起居室、臥室x2、書房、衛生間、陽臺
由于篇幅有限,只能展示這幾套,更多請網站上查看哦,據這么多年的趨勢,城市房價可以說越來越高,而且只漲不跌,很多外地打工的小伙伴想在城里買一套屬于自己的住房幾乎是難于登天,而且花幾百萬只能買個100平左右的住房,城市住房面積小,空氣差,生活節奏快,整天對著車水馬龍還有噪音,這真的是你們想要的生活嗎? 相反,農村現在發展越來越快,生活設置逐漸完善,而且現在工作靠一臺電腦在哪都能辦公,如果厭倦了城市,可以回老家建一棟別墅,過上理想的生活。 圖紙之家-專注農村別墅/自建房設計18年,集合國內200余位經驗豐富的設計師,被評為口碑最好的農村建筑設計公司! |

帶開放式車庫的二層別墅!配土灶、室外樓梯,新穎還顯品味
占地:127.2平方米
村里三層新中式風自建別墅圖,對稱設計,氣派好看
占地:135.3平方米
經濟、不張揚!簡單二層別墅設計圖,農村建房直接抄作業
占地:198.58平方米
面寬14.5米三層獨棟別墅設計圖,經典設計,大氣之作
占地:123.85平方米
四間兩層實用簡約的住房設計圖,毛坯24萬,農村建正合適
占地:159.48平方米
二層現代風格雙拼別墅設計圖,平屋頂,帶地下室設計
占地:192.47平方米
陽臺封閉的簡約實用二層別墅設計圖,15x12.8米
占地:165平方米
現代田園風格一層農村別墅設計圖效果圖,帶閣樓設計
占地:220平方米
80平方米鄉村一層半帶閣樓自建別墅設計圖,帶車庫
占地:80平方米
外觀看起來高端、奢華的二層小別墅設計圖,推薦
占地:130平方米
10X13米新款歐式三層別墅樓房設計圖,外觀清新明亮
占地:140平方米
3層20萬農村自建房設計圖,占地110平米
占地:110平方米
復式三層雙拼別墅設計圖,客廳中空,旋轉樓梯
占地:350平方米
漂亮實用的新農村二層小樓圖,造價20萬左右,超大景觀露臺
占地:130平方米
氣派的帶旋轉樓梯三層別墅房屋設計圖,戶型很好
占地:150平方米
帶架空層的三層農村別墅設計火了!雨季不怕返潮
占地:147.15平方米
農村四間兩層樓房設計圖,含外觀圖片
占地:138平方米
農村四層雙拼別墅房屋設計圖,造型現代、大氣
占地:220平方米
16x14米三層雙拼別墅設計圖,外觀精致大氣內里實用,兄弟建房上
占地:217.28平方米
農村平屋頂中式合院設計圖,帶車庫帶庭院
占地:210平方米
推薦:10套新農村自建房設計圖,2026年最新設計
閱讀次數:4825737次
100套鄉村別墅圖片大全,2026年最新設計
閱讀次數:2492203次
6款農村蓋一層平房的設計圖,10萬元就能建起來
閱讀次數:1852637次
這11個一層農村自建房別墅火爆了朋友圈!我最喜歡戶型十!你呢
閱讀次數:750268次
農村6萬元建一層小別墅圖,你敢相信嗎
閱讀次數:567686次
農村5萬塊就能自建房,6套普通房子設計圖分享,你沒看錯!
閱讀次數:419410次
8套農村漂亮三間平房圖片,非常適合在農村修建!
閱讀次數:411197次
農村自建房化糞池怎么做?附方案及施工過程
閱讀次數:391783次
農村一層三間平房設計圖,告別土氣養老房,讓人忍不住點贊
閱讀次數:350581次
新農村二層樓房圖片造價12萬,挑一套回家建房吧!
閱讀次數:349126次
