
|
十年前農村可能到處都是紅磚平房,沒有樣式、沒有戶型,千篇一律,現在再去農村,景象完全不一樣了,放眼望去,各式各樣的新農村別墅一棟一棟的建起來了,有中式、歐式、現代、美式各種風格,從這里可以看出人們的審美和追求與時俱進,也從側面反應中國農村經濟越來越好,日子越過越紅火。 小編這次介紹的是一套現代二層小別墅設計圖,外觀時尚,洋氣。大塊灰色瓷磚配合深藍色的屋頂,透出時尚的氣息,簡潔、實用的現代風格元素,與周圍環境相容,外觀十分耐看,而且這棟小別墅施工沒什么難度,就算是農村普通施工隊也很容易建起來。 效果圖:
正面效果圖
背面效果圖
側面效果圖 平面圖:
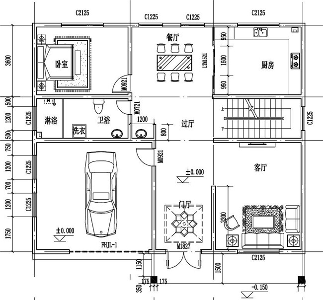
一層平面圖 一層:門廳、客廳、廚房、餐廳、臥室、車庫、衛生間;一層布局,簡單、實用,帶大車庫。
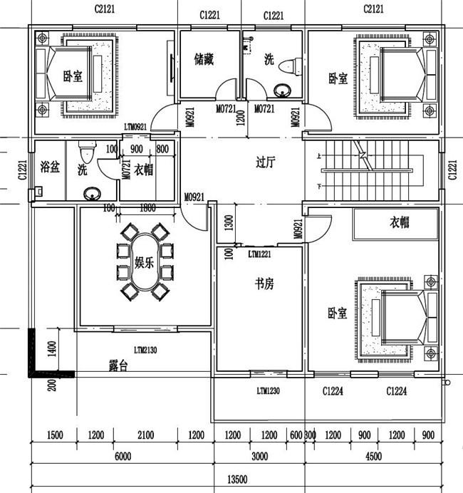
二層平面圖 二層:主臥(帶衣帽間和衛生間)、臥室x2、書房、娛樂室、儲藏間、露臺。二樓以居住、生活為主,主臥帶衣帽間和衛生間(含浴盆),方便主人居住,另外2個臥室供孩子居住,向陽的獨立書房,方便孩子學習或者大人工作,娛樂室+露臺設計很獨特,增添許多生活場景。
正立面圖
側立面圖
背立面圖
側立面圖 在高樓林立的當代,擁有一棟自建小別墅,隔離城市的喧囂,又何嘗不是一件人間美事呢?親們,覺得這套現代二層小別墅如何,歡迎評價。 圖紙之家-專注農村別墅/自建房設計18年,集合國內200余位經驗豐富的設計師,被評為口碑最好的農村建筑設計公司! |

農村一層四開間自建別墅,美麗住宅如詩如畫里15米乘10米
占地:142平方米
面寬14.5米三層獨棟別墅設計圖,經典設計,大氣之作
占地:123.85平方米
二層復式雙拼別墅設計圖(客廳中空),含外觀效果圖
占地:195平方米
160平方米左右二層自建別墅設計圖,對稱設計,23萬建好
占地:157平方米左右
現代二層農村別墅全套設計圖,大旋轉露臺+超大中空客廳
占地:133平方米
農村兄弟合建一層雙拼房別墅圖,對稱設計,工整大方!
占地:170平方米
農村三層雙拼別墅設計圖,帶外觀效果圖,推薦
占地:190平方米
預算30萬左右的新農村三層房屋設計圖推薦,含外觀效果圖
占地:117平方米
占地70平米一層小戶型別墅設計圖,功能齊全造價低,耐看實用
占地:70.19平方米
兩戶190平方米新農村雙拼別墅全套設計方案及效果圖
占地:191平方米
預算20萬的農村三層房屋設計圖方案,帶外觀效果圖
占地:115平方米
一層農村三合院別墅設計方案圖,秀氣優美,大氣又實用
占地:191.18平方米
面寬9米的三層農村自建房設計圖,適合鄉下地區自建
占地:121.94平方米
?13.5x9米這尺寸火了!好多人家照著建這款二層別墅,簡單實用
占地:115.11平方米
新農村兩層樓房設計圖,占地110平米,戶型簡單實用
占地:110平方米
2026年新款一層住宅別墅設計圖紙,中式風格漂亮極了
占地:207平方米
2款帶露臺農村別墅設計圖二層精選,造價超值性價比
占地:多戶型可選
回老家蓋房就選這款新中式一層設計,16乘8米大小正合適
占地:130.1平方米
帶地下室(車庫)的二層別墅設計圖,外觀效果圖時尚美觀
占地:149平方米左右
大氣豪華四層別墅設計圖紙,占地180平米左右
占地:180平方米
推薦:10套新農村自建房設計圖,2026年最新設計
閱讀次數:4825737次
100套鄉村別墅圖片大全,2026年最新設計
閱讀次數:2492203次
6款農村蓋一層平房的設計圖,10萬元就能建起來
閱讀次數:1852637次
這11個一層農村自建房別墅火爆了朋友圈!我最喜歡戶型十!你呢
閱讀次數:750268次
農村6萬元建一層小別墅圖,你敢相信嗎
閱讀次數:567686次
農村5萬塊就能自建房,6套普通房子設計圖分享,你沒看錯!
閱讀次數:419410次
8套農村漂亮三間平房圖片,非常適合在農村修建!
閱讀次數:411197次
農村自建房化糞池怎么做?附方案及施工過程
閱讀次數:391783次
農村一層三間平房設計圖,告別土氣養老房,讓人忍不住點贊
閱讀次數:350581次
新農村二層樓房圖片造價12萬,挑一套回家建房吧!
閱讀次數:349126次
