
|
之前有不少朋友留言說想要看一些小一些的戶型,因為家庭成員比較少,而且平時,都在外面工作,基本只有過年過節或者暑寒假才會回來居住,一般家里就只有父母兩個人,太大的房子也會顯得特別空蕩。今天就給大家帶來兩款超有設計感四室兩廳的戶型,希望大家能夠喜歡。 推薦款式一 戶型簡介:從戶型是二層戶型,外觀簡約精致,一層以下采用的是文化石,裝飾,二層采用的是真石漆,戶型采用的是坡屋頂,坡屋頂上面開有一個老虎窗,戶型整體較為簡約,建造難度為中。
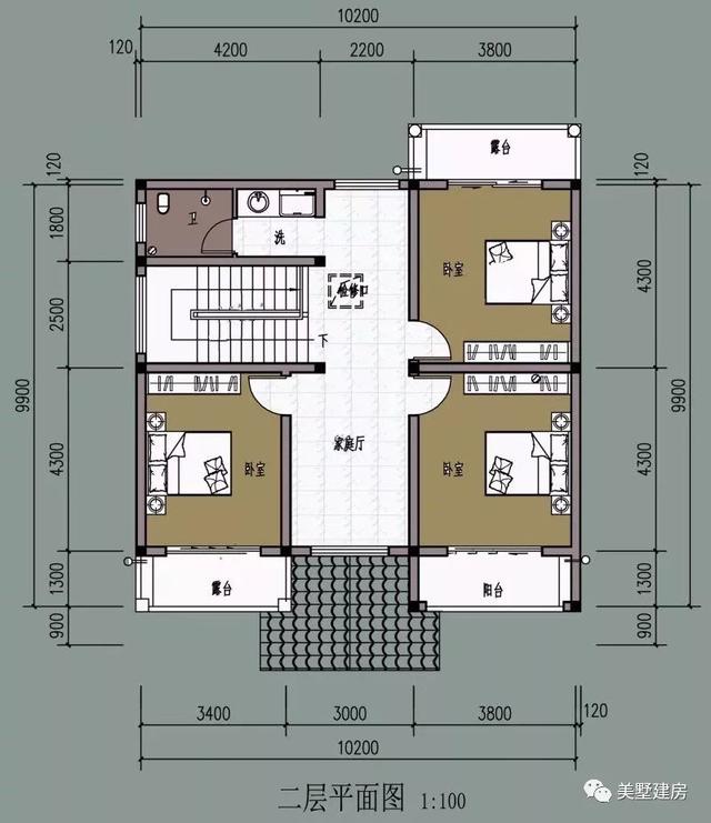
基本信息 占地尺寸:11.2X12.22米 占地面積:106平方米 建筑面積:206平方米 結構類型:磚混結構 建筑層數:2層
一層平面布局:設有一個臥室,廚房,客廳,餐廳,衛生間。進門后左手邊為客廳右手邊為臥室,臥室里面帶有衛生間,方便老人的生活與居住。餐廳與廚房相連接采用了推拉門做隔斷,方便就餐的同時,還可以做到油煙隔離,此外還設有一個公用的衛生間,也方便客人來時的使用。
二層平面布局:二層設有三間臥室,一個公用的衛生間;戶型總共有四間臥室,十分適合人口較少的家庭選擇。 推薦款式二 戶型簡介:這款戶型不像我們之前看到的那種,歐式風格一樣復雜,雖然看上去簡單但空間層次結構還是比較豐富的,層次錯落有致。采用的是平頂設計,但設置了一個坡屋頂的邊緣,欄桿的設計,也是搭配了較為簡單的鐵欄桿
基本信息 占地尺寸:15X9.6米 占地面積:105.98平方米 建筑面積:209.36平方米 結構類型:磚混結構 建筑層數:2層
一層平面布局:設有兩間臥室,客廳,廚房,餐廳,衛生間。可以看到,戶型的開間比較大,兩個臥室與餐廳,客廳都處于向陽面,居住環境較為舒適,衛生間的位置也比較合理,樓梯下面還可以做一個儲藏室。
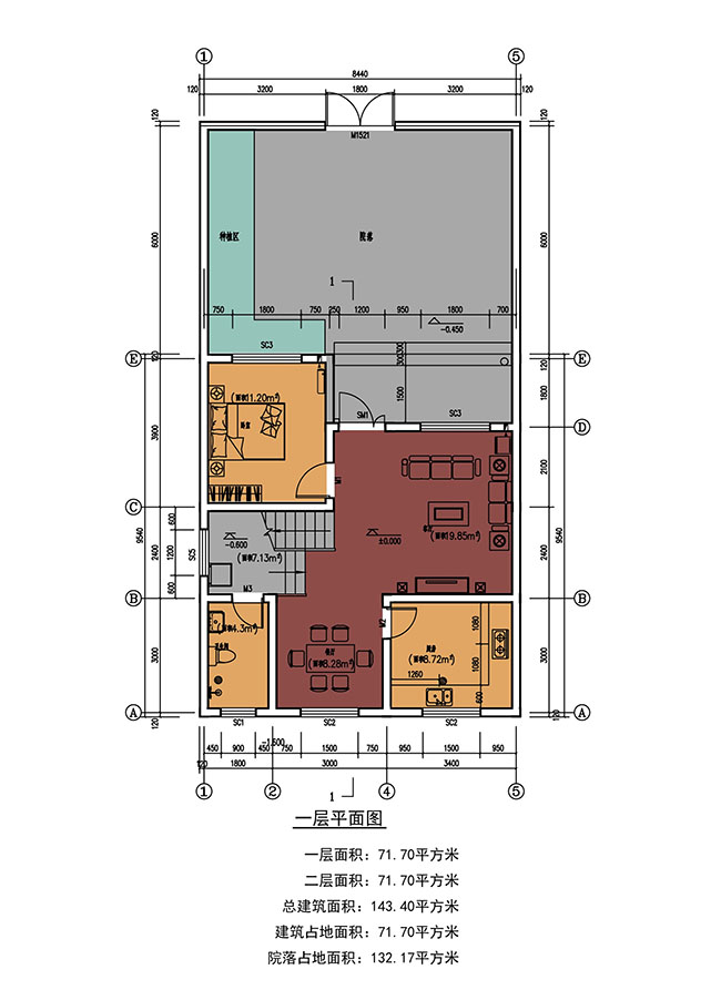
二層平面布局是有兩間臥室,一個客廳露臺與衛生間,露臺的設計方便晾曬衣物,此戶型是四室好像適合人口較少的家庭,另外四間臥室都處于向陽面,光線充足,有助于室內的居住環境舒適,減少室內潮濕的可能性。 推薦款式三 戶型簡介:簡單、實用的戶型,底部是暗色的文化石,搭配紅色的屋頂,米黃色的外墻,整體協調,好看,戶型雖然小巧,但功能齊全,足夠一家居住。 占地尺寸:8.44m*9.54m(不含院子) 占地面積:80平方米左右 建筑面積:160平方米 結構類型:磚混結構
建筑層數:2層
一層:1室2廳1衛,客廳比較大,廚房、餐廳、衛生間位置合理,施工簡單,有個小臥室供老人或客人居住。
二層:南北通透,有良好的采光、通風,功能干濕分離,提供使用效率,減少使用干擾,有較大面積的露臺,供休閑和晾曬活動,每家都有獨立的小院,提高住戶的生活品質。 親們,覺得這3款圖紙怎么樣?13萬(不含宅基地費和人工費)就能建起來,看完是不是也想建一棟。 圖紙之家-專注農村別墅/自建房設計18年,集合國內200余位經驗豐富的設計師,被評為口碑最好的農村建筑設計公司! |

300平大戶型豪華三層別墅設計圖,帶總統套房
占地:300平方米
200平米左右二層樓房設計圖,外觀看著舒服、布局住著坦然
占地:190平方米
農村四間二層別墅設計方案圖,外觀精致、時尚
占地:152平方米
鄉村最美四合院設計圖及外觀效果圖片,國人的理想住宅
占地:280.62平方米
鄉下一層自建養老平房戶型圖及全套圖紙,占地面積200左右
占地:200平方米
260平方米歐式四層別墅設計圖20X18米,造價108萬
占地:260平方米
90平米三層農村房子設計圖,簡單大氣實用
占地:94.28平方米
一層農村三合院別墅設計方案圖,秀氣優美,大氣又實用
占地:191.18平方米
新款農村三層雙拼聯體別墅戶型圖,客廳中空,單戶120平米左右
占地:240平方米
一層半中式合院別墅設計圖,帶配房,有庭有院有品位
占地:135平方米左右
農村120平米兩層樓的房子設計圖,外觀新穎
占地:120平方米
13×10米現代簡約風格三層別墅圖,坡屋頂和平屋頂完美結合
占地:120平方米
農村二層半別墅圖片大全,二層半別墅設計圖推薦
占地:160平方米
最漂亮五間一層自建別墅設計圖,布局實用顏值高!
占地:多戶型可選
12x10米農村建房圖紙,客廳中空,讓你后半輩子在稱贊聲中度過
占地:120平方米
復式200平米三層樓房設計圖紙,大露臺還有健身房和書房
占地:200平方米
簡約而不簡單的二層新中式鄉墅設計圖,占地150平左右
占地:150.78平方米
帶土灶房一層四開間別墅設計方案,溫馨舒適的雅舍
占地:164.34平方米
新中式別墅一層自建房設計,戶型實用緊湊
占地:170.54平方米
美爆的三層經典復式別墅設計圖紙及效果圖,建好更漂亮
占地:130平方米左右
推薦:10套新農村自建房設計圖,2026年最新設計
閱讀次數:4825737次
100套鄉村別墅圖片大全,2026年最新設計
閱讀次數:2492203次
6款農村蓋一層平房的設計圖,10萬元就能建起來
閱讀次數:1852637次
這11個一層農村自建房別墅火爆了朋友圈!我最喜歡戶型十!你呢
閱讀次數:750268次
農村6萬元建一層小別墅圖,你敢相信嗎
閱讀次數:567686次
農村5萬塊就能自建房,6套普通房子設計圖分享,你沒看錯!
閱讀次數:419410次
8套農村漂亮三間平房圖片,非常適合在農村修建!
閱讀次數:411197次
農村自建房化糞池怎么做?附方案及施工過程
閱讀次數:391783次
農村一層三間平房設計圖,告別土氣養老房,讓人忍不住點贊
閱讀次數:350581次
新農村二層樓房圖片造價12萬,挑一套回家建房吧!
閱讀次數:349126次
