
|
又到了一年建房季,農村在拼命建房,施工隊忙個不停。村里人在閑話家常的時候,總會被誰家誰家的大別墅稱贊不已。要想建出漂亮的別墅,首先得有好的設計圖紙,這樣建出來的別墅,才能在村里獨樹一幟,今天小編給大家精選了7款漂亮的三層農村別墅,每一款都好漂亮,挑花了眼。 戶型一
簡單大氣的外觀,方型的大門柱,非常有氣質,外觀是普通的墻磚,材料簡單,但是做出的效果卻不簡單。帶車庫功能實用,開間11.7米,進深13.8米,占地面積140.32平,建筑面積373.82平方米。
戶型二
簡歐風格的三層農村小別墅,外立面的雕花非常的精致典雅,配件精美,把整個別墅點綴的非常的美。戶型開間不大10.2米,進深11.9米,占地面積126.74平方米,建筑面積362.67平方米。
戶型三
現代風格的三層農村小別墅,注重簡約與線條的搭配,外立面層次分明,用深色的文化石作為點綴恰到好處。戶型開間14.1米,進深9.9米,占地面積124.44平方米,建筑面積340.17平方米。
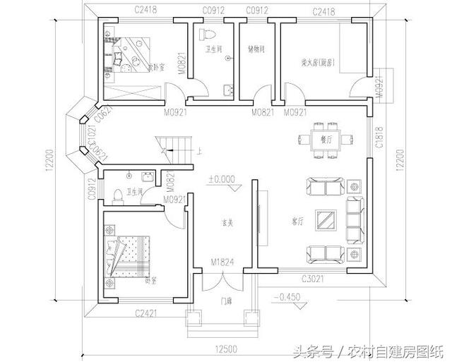
戶型四
外觀很經典的三層小別墅,帶點弧度的窗戶,采光和視野都非常好,有后門可以通向后院。室內還設計有壁爐和煙道,對農村來說很實用。戶型開間13.2米,進深12.5米,占地面積152.35平方米,建筑面積403.42平方米。
戶型五
復式中空客廳,旋轉樓梯,一款現代農村別墅的經典,多個陽臺和露臺的組合漂亮又實用。戶型開間14.5米,進深12.5米,占地面積157.59平方米,建筑面積436.65平方米。
戶型六
寬敞的入戶門廳,敞亮的落地窗,雙車庫的設計,既能滿足大家庭的生活需求,又可以作為儲藏室,存放雜物。戶型占地面積比較大,開間13.2米,進深13.5米,占地面積179.57平方米,建筑面積419.3平方米。
戶型七
時尚的現代農村別墅,多個套間的設計,適合現代農村家庭對個人空間的居住需求。戶型開間12.5米,進深12.2米,占地面積146.45平方米,建筑面積349平方米。
圖紙之家-專注農村別墅/自建房設計18年,集合國內200余位經驗豐富的設計師,被評為口碑最好的農村建筑設計公司! |

帶配房的農村三層別墅設計圖,全家享精致生活
占地:167.29平方米
簡歐復式四層別墅房屋設計圖,外觀圖高端、大氣
占地:143平方米
230平方農村雙拼別墅設計圖,26x11米自建房屋戶型
占地:230平方米
兩戶190平方米新農村雙拼別墅全套設計方案及效果圖
占地:191平方米
小開間三層新中式小別墅設計圖,外觀圖優雅大氣,讓人心動!
占地:103.18平方米
二層復式雙拼別墅設計圖(客廳中空),含外觀效果圖
占地:195平方米
14×12米二層自建房蓋別墅設計圖,簡單對稱也很漂亮
占地:157.868平方米
豪華大氣三層農村房屋設計圖,對稱的主體設計大氣恢宏
占地:240平方米
80平農村房屋設計圖,小戶型自建房三層別墅推薦
占地:80平方米
三層別墅40萬左右氣派的外觀效果圖,含全套施工設計圖
占地:161.46平方米
120平農村三層自建房屋設計圖,旋轉樓梯復式別墅戶型方案
占地:119.23平方米
時尚漂亮的二層小洋樓設計圖,設計師建房都選這個方案
占地:149.27平方米
140平三層自建房別墅設計圖,外觀圖大氣、美觀
占地:140平方米
新農村實用三層帶露臺房屋設計圖紙,占地110平方米
占地:109平方米
150平農村二層復式別墅房屋設計方案圖,帶外觀效果圖片
占地:150平方米
240平方米新農村四合院兩層樓房施工設計圖紙帶外觀圖
占地:234平方米
高顏值又實用的一層雙拼鄉村別墅設計圖,舒適度堪比豪宅
占地:217.3平方米
150平歐式別墅房屋設計圖,外觀精美、氣派
占地:150平方米
別致美觀的簡歐二層別墅房屋設計圖,含外觀效果圖
占地:145平方米
戶型好的農村三層樓房設計圖,帶外觀效果圖
占地:110平方米
推薦:10套新農村自建房設計圖,2026年最新設計
閱讀次數:4825737次
100套鄉村別墅圖片大全,2026年最新設計
閱讀次數:2492203次
6款農村蓋一層平房的設計圖,10萬元就能建起來
閱讀次數:1852637次
這11個一層農村自建房別墅火爆了朋友圈!我最喜歡戶型十!你呢
閱讀次數:750268次
農村6萬元建一層小別墅圖,你敢相信嗎
閱讀次數:567686次
農村5萬塊就能自建房,6套普通房子設計圖分享,你沒看錯!
閱讀次數:419410次
8套農村漂亮三間平房圖片,非常適合在農村修建!
閱讀次數:411197次
農村自建房化糞池怎么做?附方案及施工過程
閱讀次數:391783次
農村一層三間平房設計圖,告別土氣養老房,讓人忍不住點贊
閱讀次數:350581次
新農村二層樓房圖片造價12萬,挑一套回家建房吧!
閱讀次數:349126次
