
|
現在鄉下建別墅大多以歐式風格為主,近些年也多了一些中式風格的院子,現代風格的倒不是很常見,偶爾看見一兩套,都會給人眼前一亮的感覺。本文將要分享的就是一套簡約又實用的現代別墅:
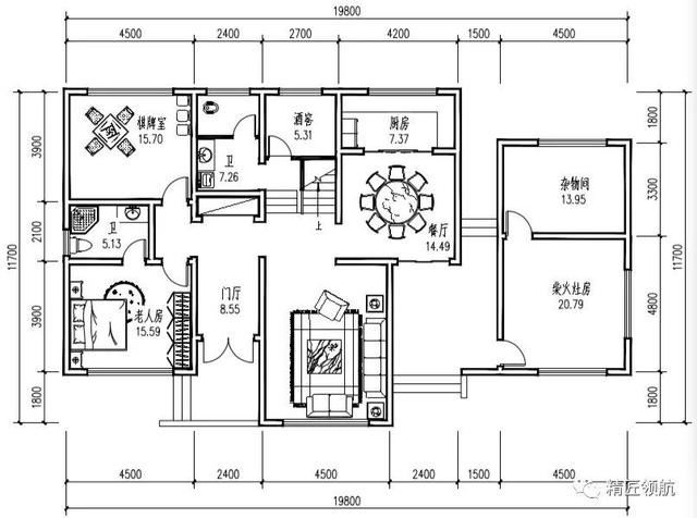
一層: 門廳進入后往左設置了老人房,老人出入路線方便快捷; 老人房自帶衛生間,方便晚上起夜; 門廳往右進入客廳及其他公共區域,將動區與靜區自然隔開,互不影響; 客餐廳相連,空間開闊大氣,訪客路線集中方便; 餐廳與廚房挨著,同時通過戶外平臺與外側的柴火灶房連接,不管是家用還是待客用都比較方便; 相較于其余部分的架空,樓梯間往下設置了酒窖,可作存酒用;角落位置是一個棋牌室,逢年過節的時候可供大家休閑娛樂。
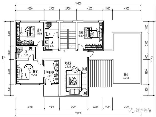
二層: 二層主要設置為居住區,除主臥外還設置了兩間臥室,可供客人留宿住; 主臥自帶衣帽間和衛生間,可滿足業主夫妻的日常居住; 二層的起居室可以滿足來客較多時的分開接待,也方便家人根據自己興趣愛好選擇喜歡看的節目; 柴火灶房上空設置成了露臺,可作為家人茶余飯后休閑聊天的好去處,同時還能滿足日常晾曬需求。
如果你也喜歡這套簡約實用的現代別墅,歡迎聯系我們! 圖紙之家-專注農村別墅/自建房設計18年,集合國內200余位經驗豐富的設計師,被評為口碑最好的農村建筑設計公司! |

120平面三層鄉村樓房設計圖及效果圖,歐式風格
占地:120平方米
帶堂屋二層小別墅設計圖紙帶外觀圖,13.6米x9米
占地:122.4平方米
開間9到10米簡約別墅設計圖紙帶效果圖,全套別墅設計方案
占地:122平方米
帶地下室三層豪華大氣新農村房屋設計圖,占地150平米左右
占地:150平方米
農村小型四合院設計效果圖及施工圖,傳統中式,四面建房
占地:220平方米
簡單農村二層平屋頂房屋設計圖,外觀簡潔、大方
占地:200平方米
簡單農村自建二層樓房設計圖,南北通透
占地:140平方米
10萬內2層小洋樓設計圖,平屋頂,戶型設計合理
占地:90平方米
建一棟就成了村里的門面擔當!三層歐式別墅,左右對稱太氣派
占地:173.67平方米
230平(單戶115平)雙拼別墅房屋設計圖及效果圖大全
占地:230平方米
一層帶閣樓的自建別墅設計圖,省錢又實用
占地:166平方米
新款三層農村自建別墅設計圖,中式風復式客廳
占地:158.96平方米
200平方農村三層別墅房屋設計圖及效果圖,大戶型精選
占地:200平方米
鄉下建房一層戶型圖,一層住宅設計圖紙,誰說一層平房不能叫別
占地:200平方米
經濟型實用歐式一層小樓房別墅平房設計圖,11X10米
占地:103平方米
小面寬大進深三層別墅圖紙設計,戶型非常實用經典
占地:171.39平方米
最漂亮的農村二層小樓圖,平屋頂的設計對于農村來說尤為便利
占地:170平方米
帶車庫三層自建別墅設計圖紙,客廳中空,外觀洋氣時尚,這款戶
占地:170平方米
歐式三層農村別墅設計圖,占地130平方米自建房,低調又奢華鄉村
占地:129.8平方米
經濟、不張揚!簡單二層別墅設計圖,農村建房直接抄作業
占地:198.58平方米
推薦:10套新農村自建房設計圖,2026年最新設計
閱讀次數:4825737次
100套鄉村別墅圖片大全,2026年最新設計
閱讀次數:2492203次
6款農村蓋一層平房的設計圖,10萬元就能建起來
閱讀次數:1852637次
這11個一層農村自建房別墅火爆了朋友圈!我最喜歡戶型十!你呢
閱讀次數:750268次
農村6萬元建一層小別墅圖,你敢相信嗎
閱讀次數:567686次
農村5萬塊就能自建房,6套普通房子設計圖分享,你沒看錯!
閱讀次數:419410次
8套農村漂亮三間平房圖片,非常適合在農村修建!
閱讀次數:411197次
農村自建房化糞池怎么做?附方案及施工過程
閱讀次數:391783次
農村一層三間平房設計圖,告別土氣養老房,讓人忍不住點贊
閱讀次數:350581次
新農村二層樓房圖片造價12萬,挑一套回家建房吧!
閱讀次數:349126次
