
|
這次將詳細介紹三款農村二層別墅的戶型,包括其前后左右的外觀樣式和內部具體的空間分隔結構。目前來看,大多數的人都會選擇建造二層樓的別墅。為什么會這樣?當然是考慮到價格、居住舒適度、出門方便等原因。下面介紹的三款戶型是今年最新的新品,設計精良不用說,價格也公道,可謂物美價廉。 第一款
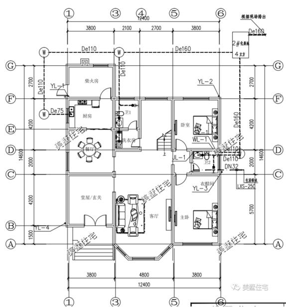
一樓帶兩個小花園,二樓有獨立分割的陽臺。 基本信息: 別墅編號:MS1702144 占地尺寸:13.4X11.1米 占地面積:142.46平方米 建筑面積:257.91平方米 結構類型:框架結構 造價預算:26萬左右
煙囪頂部加半圓形屋頂裝飾,連這個常常忽略的部分都增加了設計感。
正面看是對稱式設計。 一層平面圖:
餐廳、客廳、廚房、臥室全部獨立分割,進門后玄關空間夠大,儲物柜放入后也不會顯得擁擠。 二層平面圖:
有大小兩個陽臺,兩個臥室,一個客廳。三口之家、五口之家都很適合。 第二款
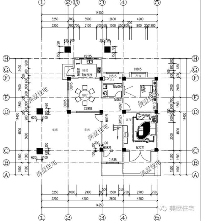
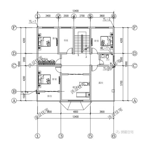
這款將別墅平均分成三部分,然后再具體分割空間。 基本信息: 別墅編號:MS1702145 占地尺寸:12.4X14.6米 占地面積:181平方米 建筑面積:358.3平方米 結構類型:磚混結構 造價預算:25萬左右
上下兩層的高度基本一致,二層小陽臺不是露天的,還帶有一個屋頂。
頂部的設計很中式化。
背面的樣式如上,基本也是對稱的。
這是右立面。三角形的屋頂加長方形的屋體很合適。
這是左立面。可以看到別墅后邊還有一個出入的小門。 一層平面圖:
玄關進入正對廚房、餐廳,廚房后面就是柴火房,分配合理。衛生間邊上有獨立洗衣房,格局分割更加細致。 二層平面圖:
從圖上看露臺部分面積也不少。 悶頂層平面圖:
可以當成是儲物間。 第三款
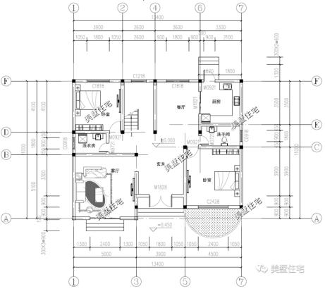
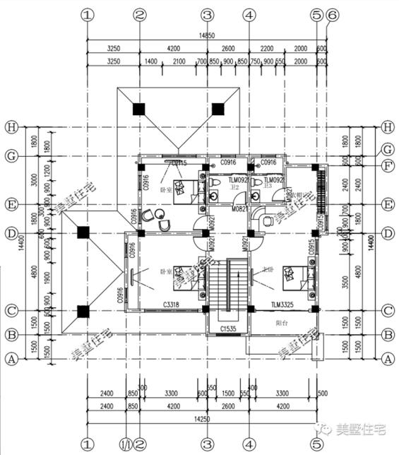
一樓帶一個敞開式車庫,即使庭院比較小也沒關系了。 基本信息: 別墅編號:MS1702146新品 占地尺寸:14.25X14.4米 占地面積:160平方米 建筑面積:269.06平方米 結構類型:框架結構 造價預算:27萬左右
另一個角度的正面,整體屋頂都是三角形屋頂。
背立面樣式,還是有一定對稱性。
另一個角度的背立面。
這是右立面,對稱性結構上簡易變形。
這是左立面,帶有兩個小門。 一層平面圖:
可以看出車庫位置很大。一樓基本用于日常生活,只有一個臥室。 二層平面圖:
二樓基本是休息區域,臥室較多。 圖紙之家-專注農村別墅/自建房設計18年,集合國內200余位經驗豐富的設計師,被評為口碑最好的農村建筑設計公司! |

歐式三層小洋樓設計圖,外觀氣派,典雅、高貴
占地:145平方米
二層中式四合院別墅設計圖,經典、漂亮(全套施工圖)
占地:350平方米
2026二層農村新款別墅新式二層樓房設計圖,非常時尚
占地:多種戶型
自建三層小洋樓設計圖紙,含效果圖,帶車庫
占地:121平方米
鄉下建房一層平房設計圖紙及戶型圖,占地150平米左右
占地:150平方米
150平米左右歐式三層鄉村別墅設計圖,客廳中空
占地:150平方米
經典三層雙拼樓房設計圖,經典外觀,經典戶型
占地:225平方米
歐式新農村自建三層建筑施工設計圖紙及效果圖大全
占地:106平方米
歐式大氣新農村三層別墅豪宅設計圖,外觀高端,對稱設計
占地:225平方米左右
獨棟兩層四開間房子施工設計圖紙及效果圖片,大氣時尚
占地:170平方米
二層復式雙拼別墅設計圖(客廳中空),含外觀效果圖
占地:195平方米
最漂亮的農村二層小樓圖,平屋頂的設計對于農村來說尤為便利
占地:170平方米
二層精美偏法式風格別墅設計圖,不但顏值高,品質還高
占地:154.17平方米
造價30萬的三層簡歐新農村別墅設計施工圖紙及效果圖
占地:133平方米
普通農村二層房子設計圖 ,復式結構,帶車庫,占地160平米左右
占地:160平方米
130平四間二層小洋樓設計圖,含外觀圖片
占地:130平方米
戶型方正的三層平頂小別墅設計圖,占地面積100平
占地:100.19平方米
140平方米三層半新農村房屋別墅設計圖,帶車庫
占地:140平方米
農村四層樓房外形設計圖,主臥配有陽臺和衣帽間還有衛生間
占地:126平方米
鄉村仿古一層別墅圖片及設計圖,經典實用,占地170平
占地:170平方米
推薦:10套新農村自建房設計圖,2026年最新設計
閱讀次數:4825737次
100套鄉村別墅圖片大全,2026年最新設計
閱讀次數:2492203次
6款農村蓋一層平房的設計圖,10萬元就能建起來
閱讀次數:1852637次
這11個一層農村自建房別墅火爆了朋友圈!我最喜歡戶型十!你呢
閱讀次數:750268次
農村6萬元建一層小別墅圖,你敢相信嗎
閱讀次數:567686次
農村5萬塊就能自建房,6套普通房子設計圖分享,你沒看錯!
閱讀次數:419410次
8套農村漂亮三間平房圖片,非常適合在農村修建!
閱讀次數:411197次
農村自建房化糞池怎么做?附方案及施工過程
閱讀次數:391783次
農村一層三間平房設計圖,告別土氣養老房,讓人忍不住點贊
閱讀次數:350581次
新農村二層樓房圖片造價12萬,挑一套回家建房吧!
閱讀次數:349126次
