
|
家是靈魂的歸所,是心中愛的火焰永不熄滅的地方,是生命中的諾亞方舟。家無需太大,有愛有溫馨就好,無需多華麗,老舊的桌椅,經久的茶具,簡單就好。
此套二層別墅采用大型落地窗和小型采光窗相結合,米黃色墻體,戶型高低錯落有致,空間利用率高,各使用功能空間都有良好的采光通風。
一層設有客廳、臥室兩間、廚房、餐廳、衛生間。客廳有一面很大的落地窗,適合約上三五好友,聊天喝茶,好不愜意。一樓臥室適合腿腳不方便的老人居住。餐廳旁邊便是廚房,方便食材的搬運。
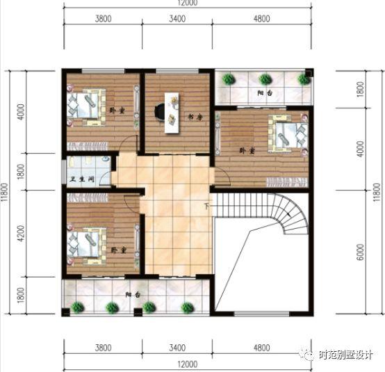
二層布局臥室3間及書房1間,客廳上空做了挑空設計,加大了整體的視覺效果,保證屋內陽光充足與通風穩定,陽臺的面積也是很大的,農村人都喜歡曬些干貨,既滿足了他們的需求光線也是很充足的。怎么樣這樣的房子你喜歡嗎? 室內案例: 書房:
陽臺: ![]() 圖紙之家-專注農村別墅/自建房設計18年,集合國內200余位經驗豐富的設計師,被評為口碑最好的農村建筑設計公司! |

帶地下室獨棟三層高端別墅房圖紙設計圖,復式客廳旋轉樓梯
占地:146.145平方米
四層別墅豪宅外觀效果圖及全套施工圖,高端歐式風格
占地:176.97平方米
20萬以內二層歐式小別墅設計方案,全套施工圖+效果圖
占地:115平方米
農村實用三層樓房圖片,占地140平米左右,客廳中空
占地:140平方米
歐式風格高檔三層別墅設計圖紙,帶高清外觀效果圖
占地:105平方米
二層兄弟雙拼農村別墅圖新中式,兄弟這樣建房,大氣省錢
占地:143.412平方米
外觀看起來高端、奢華的二層小別墅設計圖,推薦
占地:130平方米
110平預算20萬內三層別墅設計圖,含效果圖
占地:110平方米
二層樓房圖片及施工圖紙,占地160平米左右,帶車庫
占地:160平方米
帶庭院中式二層四合院別墅設計效果圖片,方方正正
占地:404平方米
南方新農村三層樓房設計圖紙,帶房屋效果圖
占地:110平方米
農村三層帶車庫、帶露臺別墅設計圖,經典自建別墅設計方案
占地:160平方米
160平方米農村二層四合院別墅設計圖及外觀圖片
占地:158平方米
農村房子設計圖三層獨棟別墅方案,占地130平方米
占地:130平方米
農村三層雙拼別墅戶型圖及全套施工圖紙,帶書房,帶衣帽間
占地:260平方米
最新潮的90平方米三層房屋設計圖 ,古樸典雅又不失時尚
占地:90平方米
古典韻味的四層房屋設計圖,占地140平米左右,這樣的外觀配上紅
占地:140平方米
農村一層中式三合院別墅戶型圖,這才是適合中國人建的好房子
占地:218.77平方米
農村小型四合院設計效果圖及施工圖,傳統中式,四面建房
占地:220平方米
新中式小戶型二層別墅效果圖及全套施工設計圖,造價經濟實惠
占地:108平方米
推薦:10套新農村自建房設計圖,2026年最新設計
閱讀次數:4825737次
100套鄉村別墅圖片大全,2026年最新設計
閱讀次數:2492203次
6款農村蓋一層平房的設計圖,10萬元就能建起來
閱讀次數:1852637次
這11個一層農村自建房別墅火爆了朋友圈!我最喜歡戶型十!你呢
閱讀次數:750268次
農村6萬元建一層小別墅圖,你敢相信嗎
閱讀次數:567686次
農村5萬塊就能自建房,6套普通房子設計圖分享,你沒看錯!
閱讀次數:419410次
8套農村漂亮三間平房圖片,非常適合在農村修建!
閱讀次數:411197次
農村自建房化糞池怎么做?附方案及施工過程
閱讀次數:391783次
農村一層三間平房設計圖,告別土氣養老房,讓人忍不住點贊
閱讀次數:350581次
新農村二層樓房圖片造價12萬,挑一套回家建房吧!
閱讀次數:349126次
