
|
楊先生位于安徽省宿松縣九城村 3月15日正式開工
工匠利用經緯儀 確定出地塊與長邊相垂直的短邊
根據圖紙設計尺寸分別確定出 房屋的外圍輪廓線及內墻軸線
開始施工前的水電準備 萬事俱備,明日開建
施工隊遠道而來,楊先生熱情款待 準備了豐盛的佳肴
愉快的晚餐結束后
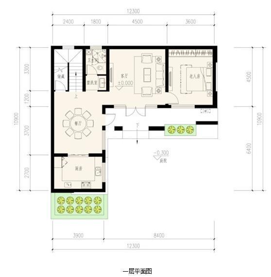
施工隊為了明日的開建早早歇息了 住宅在線 讓家更美 精臻系列·和旭府(2F)
房屋風格:現代歐式風格 房屋構造:4室2廳2衛1廚 建筑面積:181.5㎡ 占地面積:12.5m*11m
設計亮點: 餐廳:獨立的餐廳和廚房靠近,使用很方便;
臥室:所有房間南向采光,二層具有南向貫通陽臺,使臥室冬暖夏涼,居住體驗舒適良好; 南向大露臺:二層南向大露臺,可以當曬臺曬糧食、曬衣服、使用靈活;
和旭府:毛坯22萬, 標準裝修28萬 圖紙之家-專注農村別墅/自建房設計18年,集合國內200余位經驗豐富的設計師,被評為口碑最好的農村建筑設計公司! |

泰式風格三層小別墅設計圖,帶車庫和大露臺
占地:120平方米
三層農村小別墅設計圖,一層帶商鋪,占地110平米,經濟實用
占地:110平方米
二層農村小別墅設計圖,造價經濟實惠,參考價30萬以內
占地:140平方米
農村25萬別墅款式二層自建房設計圖,外觀圖時尚
占地:115平方米
復式別墅新農村二層房屋設計圖紙,屋頂錯落有致
占地:多戶型可選
帶架空層一層農村別墅設計圖,回鄉建房優選,家有豪宅幸福來敲
占地:124.76平方米
農村三層樓房設計圖及圖片,客廳挑空,優化室內采光
占地:140平方米
農村七字型一層別墅圖,獨立廚房設計,鄉村建房優選戶型
占地:159.76平方米
對稱一層農村養老別墅設計方案,室內戶型布局合理,14x12米
占地:141.46平方米
農村三層帶露臺、帶車庫房屋設計圖,含外觀圖片
占地:155平方米
帶開放式車庫二層農村自建別墅設計方案,造價僅15萬
占地:89.412平方米
新農村二層自建房設計圖帶外觀圖片,自建戶型大全
占地:160平方米
農村大氣四層樓房圖片及全套設計圖紙,復式客廳旋轉樓梯
占地:143平方米
平屋頂四間一層農村自建房設計圖紙,經濟時尚
占地:144平方米
一層合院中式小別院設計圖,白墻灰瓦,愜意十足!
占地:219平方米
農村兄弟合建一層雙拼房別墅圖,對稱設計,工整大方!
占地:170平方米
最新12x9米一層平房別墅設計圖,好看不貴居住舒適!
占地:108平方米
2026年新款二層半農村自建小別墅設計圖紙,占地150平方米
占地:150平方米
最美二層樓別墅圖片大全及全套建筑設計圖紙,20萬左右
占地:140平方米
二層平頂別墅設計圖,漂亮經濟實用二層農村小別墅最新房屋設計
占地:多種戶型
推薦:10套新農村自建房設計圖,2026年最新設計
閱讀次數:4825737次
100套鄉村別墅圖片大全,2026年最新設計
閱讀次數:2492203次
6款農村蓋一層平房的設計圖,10萬元就能建起來
閱讀次數:1852637次
這11個一層農村自建房別墅火爆了朋友圈!我最喜歡戶型十!你呢
閱讀次數:750268次
農村6萬元建一層小別墅圖,你敢相信嗎
閱讀次數:567686次
農村5萬塊就能自建房,6套普通房子設計圖分享,你沒看錯!
閱讀次數:419410次
8套農村漂亮三間平房圖片,非常適合在農村修建!
閱讀次數:411197次
農村自建房化糞池怎么做?附方案及施工過程
閱讀次數:391783次
農村一層三間平房設計圖,告別土氣養老房,讓人忍不住點贊
閱讀次數:350581次
新農村二層樓房圖片造價12萬,挑一套回家建房吧!
閱讀次數:349126次
