
|
在農村擁有一處21x12米的宅基地,實際上已經是相當不錯的了。既然都有了這樣的宅基地,當然是不能浪費了,怎么使用才能使它物有所值?因為是在農村,那么就是用來建房子了,如果有錢,可以蓋一棟豪華別墅,如果經濟有限,那么就建一套時尚舒適的自建房住宅。在農村,房子是要住上幾十年以上的,所以在設計房屋戶型圖時,既要符合農村生活的傳統習俗,又要適應當代生活的流行趨勢,這樣的住宅才能夠經久不衰,時尚實用! 今天小編帶來的2款二層農村自建房戶型都帶有神位,符合農村傳統生活習慣,2套帶車庫符合現代人生活的需求。 戶型1: 別墅層數: 二層(地下一層為地下室)結構形式: 框架結構 主體造價: 45-50萬 開間:21.2米進深:11.5米占地面積:213.02平方米建筑面積:580.35平方米
本戶型是豪華型框架結構別墅,帶有地下室,首層占地面積較大,有213.02㎡,客廳極為寬敞,各區劃分緊湊有致,空間利用率極大,能夠滿足大家庭成員的住房需求。也特別適合辦公使用。 平面圖展示:
一層平面圖 地下室:衛生間、洗漱區 一 層:客廳、神位、餐廳、廚房、衛生間×2、洗漱區、臥室
二層平面圖 二 層:客廳、衛生間、主臥(帶衣帽間、衛生間)、次臥、書房、露臺、陽臺 戶型2: 層數:二層 結構形式:磚混結構 主體造價:26-30萬 開間:21.2米 進深:11.5米 占地面積:211.68平方米 總建筑面積:364.96平方米
本戶型外觀上給人強烈的漂亮視覺效果,前后多個玻璃窗戶,采光極佳,多間臥室都附帶了內衛及衣帽間等,使用更加的便利,更顯舒適的家庭生活。 建成案例:
實拍圖 這套戶型的餐廳和廚房與室內其他區域隔開,方便在農村需要燒柴的住戶,二層兩邊的露臺設計觀景效果絕佳,整體顯得大氣對稱美。 平面布局圖:
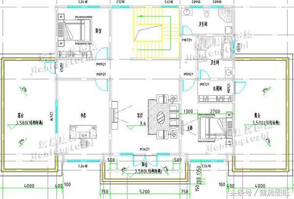
一層平面圖 一 層:客廳、主臥(帶衣帽間)、臥室、廚房、餐廳、主臥(帶衣帽間、帶衛生間)、衛生間、車庫
二層平面圖 二 層:客廳(帶陽臺)、主臥(帶衣帽間、帶衛生間、帶露臺)、臥室、書房、衛生間、露 圖紙之家-專注農村別墅/自建房設計18年,集合國內200余位經驗豐富的設計師,被評為口碑最好的農村建筑設計公司! |

125平方米新農村二層房屋施工設計CAD圖紙加效果圖
占地:125平方米
100平米左右簡單實用的二層樓房設計圖,施工簡單造價低
占地:95平方米
135平復式別墅房屋設計圖,外觀時尚、漂亮
占地:135平方米
120平米左右農村房屋設計圖占地面積適宜,外觀舒適大氣
占地:120平方米
130平方米歐式實用農村二層樓別墅圖紙帶外觀圖12X13米
占地:132平方米
一層中式仿古三合院設計圖,實用又大氣,百年不過時
占地:366.67平方米
農村一層養老別墅設計圖,14.8x17.9米,戶型對稱,實用布局
占地:193平方米
2026農村漂亮的一層平房圖片平面圖與全套施工圖紙,戶型周正
占地:150平方米
一層半中式合院別墅設計圖,帶配房,有庭有院有品位
占地:135平方米左右
12米面寬一層農村別墅設計圖,實用又舒適
占地:110.41平方米
歐式三層樓房設計圖,客廳中空,旋轉樓梯,帶土灶房
占地:206平方米
歐式新農村自建三層建筑施工設計圖紙及效果圖大全
占地:106平方米
農村四層樓房外形設計圖,主臥配有陽臺和衣帽間還有衛生間
占地:126平方米
180平方農村二層別墅施工設計圖紙,15.8x11.7米
占地:180平方米
12米寬三間二層農村自建房設計圖,左右對稱布局緊湊看著就舒服
占地:144.94平方米
私人二層中式四合院別墅建筑設計圖,新農村經濟實用戶型
占地:145平方米
農村平屋頂三層現代風別墅戶型圖,簡約實用經濟顏值高
占地:111.9平方米
一層農村自建房設計,背面不開窗,15乘10米,內部布局實用
占地:多戶型可選
五開間農村豪華三層別墅設計圖,大格局大氣派,大家庭建房首選
占地:227.04平方米
140平方米一層歐式新農村平房設計圖,主體造價僅11萬
占地:141.218平方米
推薦:10套新農村自建房設計圖,2026年最新設計
閱讀次數:4825737次
100套鄉村別墅圖片大全,2026年最新設計
閱讀次數:2492203次
6款農村蓋一層平房的設計圖,10萬元就能建起來
閱讀次數:1852637次
這11個一層農村自建房別墅火爆了朋友圈!我最喜歡戶型十!你呢
閱讀次數:750268次
農村6萬元建一層小別墅圖,你敢相信嗎
閱讀次數:567686次
農村5萬塊就能自建房,6套普通房子設計圖分享,你沒看錯!
閱讀次數:419410次
8套農村漂亮三間平房圖片,非常適合在農村修建!
閱讀次數:411197次
農村自建房化糞池怎么做?附方案及施工過程
閱讀次數:391783次
農村一層三間平房設計圖,告別土氣養老房,讓人忍不住點贊
閱讀次數:350581次
新農村二層樓房圖片造價12萬,挑一套回家建房吧!
閱讀次數:349126次
