
|
只要有錢有地,每個人都想要回老家蓋一棟帶院的別墅,我們可以拿院子來養花種樹、建池養魚、孩子嬉戲娛樂、鄰友交談,過愜意的田園生活…… 這樣的美好生活大家做夢都想擁有,住在里面睡覺估計都會笑醒的。快來看看這2棟帶院子的別墅,是不是你理想的別墅住宅? 花園別墅1:
效果圖2
一層有客廳、餐廳、廚房、公衛、儲藏室、2個客臥,一個父母房,院子晾曬區、休閑區
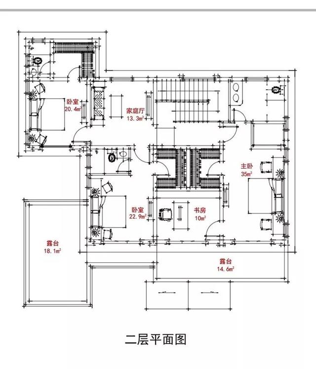
二層客廳挑空、家庭廳、4個臥室、2個露臺、2個衛生間 花園別墅2:
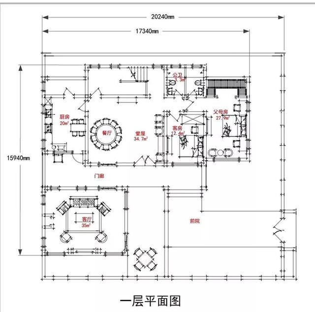
一層前院、客廳、堂屋、廚房、餐廳、家庭廳、父母房帶洗手間和衣帽間、公衛
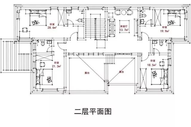
二層2主臥帶洗手間和衣帽間、3臥室、公衛 花園別墅3:
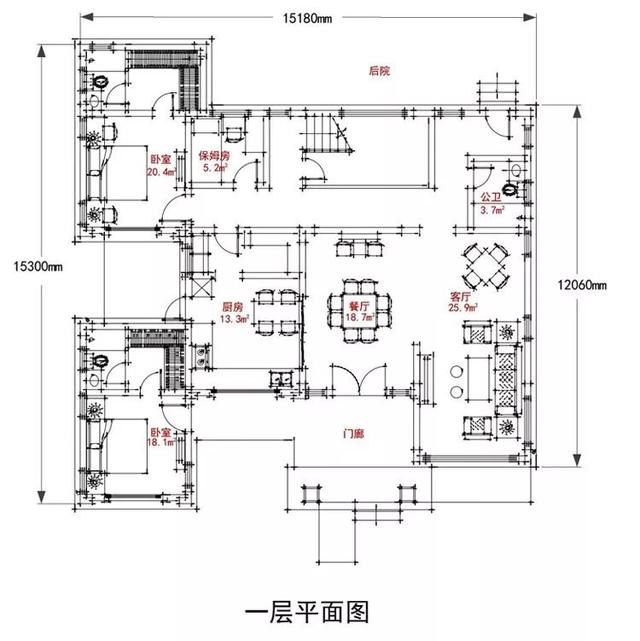
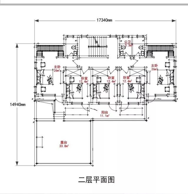
一層客廳、廚房、餐廳、家庭廳、2臥室帶洗手間和衣帽間、公衛
二層家庭廳、3臥室帶洗手間和衣帽間、主臥帶書房、露臺 農村宅基地面積夠大的話,建個帶院子的別墅絕對是富豪級享受,有個寬敞的院子,供小孩子玩樂,邀上三五朋友,坐在院子里看著藍天白云,喝著茶,打著麻將,吹著清風,是最享受不過的事情了。 圖紙之家-專注農村別墅/自建房設計18年,集合國內200余位經驗豐富的設計師,被評為口碑最好的農村建筑設計公司! |

160平方米新農村自建二層樓房設計圖紙及效果圖,15x11米
占地:160平方米
農村二層住宅樓圖紙及效果圖,帶地下室,戶型好
占地:220平方米
面寬15米大氣的農村二層復式戶型別墅設計圖紙及外觀圖片
占地:173.28平方米
最火現代風三層半別墅設計圖,時尚簡約寬敞舒適
占地:169平方米
古典韻味的四層房屋設計圖,占地140平米左右,這樣的外觀配上紅
占地:140平方米
一層農村房子設計圖,含外觀效果圖,自建推薦戶型
占地:200平方米
面寬12米新中式三層別墅設計圖,回家建房就選它,全家人都愛的
占地:180平方米
二層復式雙拼別墅設計圖(客廳中空),含外觀效果圖
占地:195平方米
新中式一層別墅設計圖紙,農村自建平房戶型方案圖
占地:183.7平方
三層帶地下室+旋轉樓梯別墅設計圖紙,復式挑空客廳
占地:多種戶型
三層新農村別墅設計圖片及全套圖紙,外形對稱,帶露臺,這個戶
占地:160平方米
人氣頗高的三層新中式別墅方案,五種戶型,五種尺寸
占地:120-165平方米
歐式大氣三層小別墅設計圖紙,外觀、造型大方,色彩明快
占地:140平方米
2026新農村三層雙拼房屋設計圖紙平面圖與效果圖,帶堂屋
占地:190平方米
六開間三層農村自建別墅設計圖,盡享豪華舒適生活
占地:341.91平方米
160平方米二層小別墅設計圖紙及效果圖大全,12X13米
占地:162平方米
農村中式一層三合院自建房戶型方案圖,帶庭院設計
占地:222平方米
農村10萬元一層小別墅平房設計圖大全,含效果圖
占地:120平方米
150平歐式別墅房屋設計圖,外觀精美、氣派
占地:150平方米
高端大氣三層別墅設計圖,建好就是村里最靚的
占地:120平方米
推薦:10套新農村自建房設計圖,2026年最新設計
閱讀次數:4825737次
100套鄉村別墅圖片大全,2026年最新設計
閱讀次數:2492203次
6款農村蓋一層平房的設計圖,10萬元就能建起來
閱讀次數:1852637次
這11個一層農村自建房別墅火爆了朋友圈!我最喜歡戶型十!你呢
閱讀次數:750268次
農村6萬元建一層小別墅圖,你敢相信嗎
閱讀次數:567686次
農村5萬塊就能自建房,6套普通房子設計圖分享,你沒看錯!
閱讀次數:419410次
8套農村漂亮三間平房圖片,非常適合在農村修建!
閱讀次數:411197次
農村自建房化糞池怎么做?附方案及施工過程
閱讀次數:391783次
農村一層三間平房設計圖,告別土氣養老房,讓人忍不住點贊
閱讀次數:350581次
新農村二層樓房圖片造價12萬,挑一套回家建房吧!
閱讀次數:349126次
