
|
一個大坡屋頂,前面帶上一對相對對稱的小坡屋頂,就像三把大傘一樣的存在,造型溫婉柔美。開放式的車庫,唯美的落地窗,再加上一個綠色的小院與之相融,這可以說是很多人向往的住宅了。沒錯,它也正是我們今天要為大家分享的一套別墅戶型!
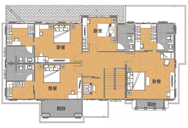
平面布局圖: 房子不僅外觀美,室內布局更是舒適現代。除了寬敞明亮的客廳,還有與之相通的餐廳和休閑區域,將空間的闊度增大,再加上一個時尚的吧臺,和通過落地窗與外面鏈接的生活陽臺,不管是就餐還是和家人朋友開派對,都能享受到一種星級的待遇,如果房子后面有一個小院,或者是一片大海,這樣的生活簡直更加品質、享受。
設計師不僅將這些公共性用間進行現代化設計,獨立私密的臥室也滿足了人們對現代居室的要求。臥室主要以套間設計為主,衛生間、衣帽間、甚至書房、化妝師都設計其中,為家人生活提供最大的便利。
這樣的別墅設計,此乃品質生活之選。 圖紙之家-專注農村別墅/自建房設計18年,集合國內200余位經驗豐富的設計師,被評為口碑最好的農村建筑設計公司! |

農村16萬一層平房小院設計圖,左右對稱布局好,南北方都能建
占地:195.9平方米
120平方米新農村二層自建房屋設計圖紙大全14x9米
占地:120平方米
2026二層農村新款別墅戶型圖,占地不到110平米
占地:110平方米
歐式大戶型三層農村房屋設計圖紙,歐式住宅圖推薦
占地:178平方米
開間8米的小戶型二層別墅設計圖,2開間占地不到60平
占地:56平方米左右
帶車庫現代三層樓房設計圖,外觀效果圖時尚、美觀
占地:160平方米
240平農村二層自建別墅設計圖紙,帶你體驗家的溫馨
占地:240平方米
三層新農村小別墅設計圖紙,占地120平米,客廳中空,帶大露臺
占地:120平方米
經典戶型二層農村小別墅設計圖,造價25萬內
占地:140平方米
農村小別墅一層設計圖紙,全套施工圖兩款戶型可選
占地:多種戶型可選
自建小樓二層農村別墅設計圖,大氣好看,13米乘14米
占地:181.62
兩層農村自建二層樓設計圖紙,面寬12米左右
占地:131.2平方米
氣派的歐式風格三層房子設計圖紙,外觀圖太漂亮了
占地:132平方米
頂配三拼三層別墅設計,獨立入戶+共享庭院,兄弟三家共享奢華
占地:367.44平方米
大氣新中式三層雙拼別墅設計圖及外觀,總面寬20米多
占地:205.76平方米
農村20萬左右三層住房設計圖,小宅基地首選
占地:95平方米
150平米簡單大方的三層農村自建房設計圖,坡層頂,色彩鮮明,布
占地:150平方米
農村二層帶電梯別墅設計圖,歐式風格,避免老人上下樓的麻煩
占地:179.94平方米
農村一層四開間養老別墅設計圖,造型美布局佳
占地:164.27平方米
185平方米二層自建別墅設計施工圖紙及外觀效果圖,15x13米
占地:186平方米
推薦:10套新農村自建房設計圖,2026年最新設計
閱讀次數:4825737次
100套鄉村別墅圖片大全,2026年最新設計
閱讀次數:2492203次
6款農村蓋一層平房的設計圖,10萬元就能建起來
閱讀次數:1852637次
這11個一層農村自建房別墅火爆了朋友圈!我最喜歡戶型十!你呢
閱讀次數:750268次
農村6萬元建一層小別墅圖,你敢相信嗎
閱讀次數:567686次
農村5萬塊就能自建房,6套普通房子設計圖分享,你沒看錯!
閱讀次數:419410次
8套農村漂亮三間平房圖片,非常適合在農村修建!
閱讀次數:411197次
農村自建房化糞池怎么做?附方案及施工過程
閱讀次數:391783次
農村一層三間平房設計圖,告別土氣養老房,讓人忍不住點贊
閱讀次數:350581次
新農村二層樓房圖片造價12萬,挑一套回家建房吧!
閱讀次數:349126次
