
|
自建房最佳戶型是什么?有人說是歐式建筑,有人說是中式大院,但是收集了眾多農村自建房朋友的意見卻發現,最受農村人喜歡,并且最想自建的戶型,卻是四合院;不得不說一下現在我們對于傳統建筑的追隨真的很有力量;四合院三合院,作為最典型的中式建筑,屹立于世間已有千年世間。
這種類型的戶型,占地規模宏大,無不體現出咱們國人寬厚的氣魄,若是自家蓋一棟這樣的房子出來,那真的是羨慕倒一片人;今日就給大家分享兩套中式合院建筑,三合院四合院各來一棟,保證滿足你們的內心需求! 第一套戶型為三合院設計,開放式的設計對農村人而言很是適合,超大的院子晾曬糧食,晾曬衣物,也可以成為孩子游玩的好去處!
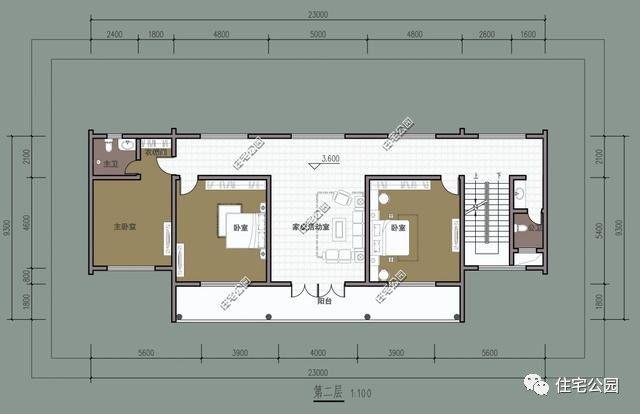
戶型二: 相比較戶型一,這一套戶型更加莊重,更加有氣度;四合院的設計果然非同一般,當然了,也肯定是資本雄厚的家族,才能建得起如此豪氣又不落俗的農村四合院!
平面布局圖: 這棟四合院是二層建筑,占地面積很是遼闊;空間布局上也嚴格按照了農村人的日常生活起居進行了妥善的布置,超大內庭院的設計,滿足了所有人的生活要求!
圖紙之家-專注農村別墅/自建房設計18年,集合國內200余位經驗豐富的設計師,被評為口碑最好的農村建筑設計公司! |

現代風格二層別墅設計圖,外觀時尚、大氣
占地:153平方米
漂亮實用三層自建別墅設計圖紙,超高的性價比
占地:160平方米
農村中式二層4開間別墅圖紙設計方案圖,帶車庫戶型
占地:198平方米
巴洛克風格農村二層別墅設計圖(偏法式),對稱式設計,太講究
占地:210.25平方米
三層新農村小別墅設計圖紙,占地120平米,客廳中空,帶大露臺
占地:120平方米
別致漂亮二層別墅設計圖紙,占地160平米左右,精致的外觀,讓人
占地:160平方米
爆款農村一層別墅圖紙設計,看過的都說漂亮實用
占地:144.91平方米
高端農村三層歐式房屋設計圖紙,帶車庫,帶露臺
占地:163平方米
三層樓房設計圖紙含效果圖,外觀造型高低錯落,別致大方
占地:152.4平方米
新中式一層合院別墅圖,15米×15.8米,主體造價低至15萬
占地:183.08平方米
農村新款二層中式別墅設計圖效果圖,帶堂屋設計
占地:144平方米
現代風格三層別墅設計圖紙和效果圖,農村自建精選
占地:129平方米
面寬10米高品質二層別墅設計方案,造價不高顏值很高,非常適合
占地:137.63平方米
130平方米農村兩層別墅圖紙及效果圖12X11米
占地:133平方米
農村二層住宅樓房設計圖紙,全套方案(施工圖+效果圖)
占地:113平方米
120平方房子設計圖帶效果圖,農村自建房戶型推薦
占地:120平方米
農村四層樓房設計圖,占地120平方米,歐式風格,高端大氣
占地:120平方米
農村一層小別墅設計圖,經濟大氣,16米乘9米
占地:124.12平方米
占地百平農村三層戶型方案,簡約實用,獨具特色,理想新居等你
占地:105.61平方米
推薦:10套新農村自建房設計圖,2026年最新設計
閱讀次數:4825737次
100套鄉村別墅圖片大全,2026年最新設計
閱讀次數:2492203次
6款農村蓋一層平房的設計圖,10萬元就能建起來
閱讀次數:1852637次
這11個一層農村自建房別墅火爆了朋友圈!我最喜歡戶型十!你呢
閱讀次數:750268次
農村6萬元建一層小別墅圖,你敢相信嗎
閱讀次數:567686次
農村5萬塊就能自建房,6套普通房子設計圖分享,你沒看錯!
閱讀次數:419410次
8套農村漂亮三間平房圖片,非常適合在農村修建!
閱讀次數:411197次
農村自建房化糞池怎么做?附方案及施工過程
閱讀次數:391783次
農村一層三間平房設計圖,告別土氣養老房,讓人忍不住點贊
閱讀次數:350581次
新農村二層樓房圖片造價12萬,挑一套回家建房吧!
閱讀次數:349126次
