
|
過去,生活窮困的時候人們都覺察不出農村有宅基地的好處,因為生計問題是第一位的。如今,生活富裕了,農村宅基地的好處一下子就凸顯了出來。實際上,農民在農村有塊宅基地的確真地很好,不論它有多大還是多小。今天 ,我們給大家展示的這套宅基地上蓋別墅的例子,就充分體現了這一點,相信您看了會有所觸動。
如上圖所示,這套小別墅雖然緊緊“依偎”在比它大很多 “高個子”房屋的旁邊,但是人家也是別墅呀!小巧玲瓏,色彩絢麗,別具風格。離近點看,是不是也是很有氣質的?
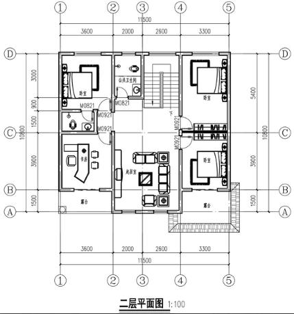
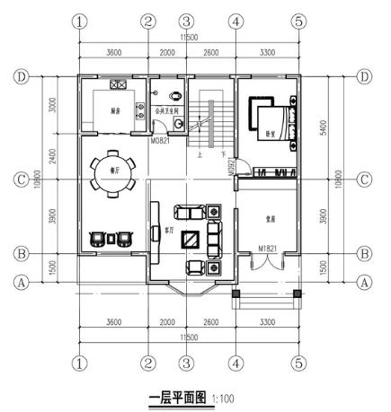
再來看平面圖,這棟占地10.8米*11.5米的小別墅,雖然面積很小,但內部設置還是別有洞天的,齊全又工整。你看,進了門,旁邊是客廳,對門的墻上完全可以設計個神龕什么的。進入屋內,餐廳、廚房、臥室、衛生間、樓梯間一應俱全,沒有一點面積浪費。
再來看二層,還有一個帶獨立衛生間的主臥和兩個次臥,一個公共衛生間以及一個書房、一間起居室。上下樓一共4個臥室,一般家庭,連上父母和兩個孩子,足夠住了。而且,讓人驚喜的是,二層的書房和次臥還各有一個露臺。在農村,晾個衣服,曬個糧食都很方便。
怎么樣,這棟小別墅是不是很棒呀?在農村,只要自家有宅基地,就能建出漂亮合適的房子,真讓人羨慕呀!
農村的明天必將越來越好!. 圖紙之家-專注農村別墅/自建房設計18年,集合國內200余位經驗豐富的設計師,被評為口碑最好的農村建筑設計公司! |

四開間一層半別墅設計圖,帶閣樓設計的戶型方案
占地:190.7平方米
二層小別墅外觀圖片,別墅圖紙,外觀時尚,布局簡單實用,挑空
占地:230平方米
鄉村別墅現代風平屋頂四層自建房設計圖,簡約時尚
占地:144.7平方米
90平小戶型四層房屋設計圖,農村自建別墅推薦
占地:90平方米
50萬左右農村三層別墅設計圖紙,帶大露臺,外觀大氣
占地:150平方米
12x13米豪華三層農村別墅設計圖,宅基地上的貴族人生
占地:156平方米
適合農村建的二層別墅設計圖,簡約美觀,讓人心動不已
占地:153平方米
農村四層復式樓房設計圖,外觀效果圖+全套圖紙
占地:108平方米
帶車庫的三層房屋方案設計圖,帶堂屋全套圖紙
占地:163.8平方米
二層帶地下室樓房設計方案,效果圖+全套施工圖
占地:160平方米
二層新中式小別墅設計圖紙,舒適實用,16米乘12米
占地:189.88平方米
架空層的一層三合院別墅設計圖紙,這樣設計太贊了
占地:172.06平方米
三層歐式自建房別墅設計方案,11x11米洋氣實用,飽受大家好評
占地:127平方米
帶獨立廚房的二層自建房設計圖,大戶型方案
占地:233平方米
120平面三層鄉村樓房設計圖及效果圖,歐式風格
占地:120平方米
125平自建房設計圖二層戶型,建房選這款準沒錯
占地:124.04平方米
方方正正的二層農村別墅設計圖,普通農村人都能建
占地:201.05平方米
農村二層小洋樓設計圖,帶外觀效果圖,外觀新穎,漂亮
占地:130平方米
30萬預算三層別墅設計圖紙及效果圖,新農村自建推薦
占地:110平方米
110平方米新農村二層別墅設計圖及效果圖,12.36x9.36米
占地:115平方米
推薦:10套新農村自建房設計圖,2026年最新設計
閱讀次數:4825737次
100套鄉村別墅圖片大全,2026年最新設計
閱讀次數:2492203次
6款農村蓋一層平房的設計圖,10萬元就能建起來
閱讀次數:1852637次
這11個一層農村自建房別墅火爆了朋友圈!我最喜歡戶型十!你呢
閱讀次數:750268次
農村6萬元建一層小別墅圖,你敢相信嗎
閱讀次數:567686次
農村5萬塊就能自建房,6套普通房子設計圖分享,你沒看錯!
閱讀次數:419410次
8套農村漂亮三間平房圖片,非常適合在農村修建!
閱讀次數:411197次
農村自建房化糞池怎么做?附方案及施工過程
閱讀次數:391783次
農村一層三間平房設計圖,告別土氣養老房,讓人忍不住點贊
閱讀次數:350581次
新農村二層樓房圖片造價12萬,挑一套回家建房吧!
閱讀次數:349126次
