
|
這款三層新農村自建房設計圖開間進深14.42×12.62米,一層占地面積169㎡,總建筑面積有456㎡,采用框架結構形式,毛坯房造價45萬左右可以建成。
效果圖 功能設計
一層平面圖 一層:客廳、堂屋、臥室(帶衛生間)、廚房、餐廳、公衛
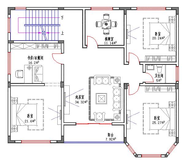
二層平面圖 二層:起居室(帶陽臺)、棋牌室、書房/衣帽間、臥室×3、公衛
三層平面圖 三層:起居室、主人房(主衛)、書房、陽臺、露臺 給大家分享其他款漂亮的圖紙:
1
2
3 ![]() 圖紙之家-專注農村別墅/自建房設計18年,集合國內200余位經驗豐富的設計師,被評為口碑最好的農村建筑設計公司! |

好看又簡單的二層樓房設計圖紙,戶型還實用
占地:150平方米
對稱型歐式別墅設計圖,穩重實用,開間18米,適合全國農村建
占地:228.2 平方米
二層平頂別墅設計圖,漂亮經濟實用二層農村小別墅最新房屋設計
占地:多種戶型
現代田園風格一層農村別墅設計圖效果圖,帶閣樓設計
占地:220平方米
140平米二層半帶露臺別墅圖片及圖紙,戶型極佳
占地:140平方米
農村實用型一層半樓房圖片效果圖,占地140平米左右
占地:140平方米
二層雙拼別墅外觀效果圖及施工圖,帶露臺,14乘12米
占地:168平方米
占地110平米兩層半農村房子設計圖,簡單實用
占地:110.25平方米
130平左右三層樓房設計圖,新農村住宅自建推薦
占地:128平方米
帶車庫徽派風格三層別墅房屋設計圖,新農村住宅設計推薦
占地:140平方米
歐式兩層別墅樓房設計圖紙施工方案,高端豪華外觀圖片
占地:138平方米
帶開放式車庫的二層別墅!配土灶、室外樓梯,新穎還顯品味
占地:127.2平方米
120平方米農村經典二層房屋設計圖紙,造型精致好看
占地:121平方米
經典一層帶閣樓三合院別墅設計圖,18米乘9.5米
占地:118.63平方米
兄弟共建一層雙拼平房設計圖,省錢省心又可相互照應
占地:177.27平方米
120平方兩層房子設計圖及圖片,外觀大方好看,內部結構合理
占地:120平方米
二層自建房子最新款設計圖,平屋頂簡約經濟,美觀不失大方。
占地:115.64平方米
新農村二層自建房設計圖帶外觀圖片,自建戶型大全
占地:160平方米
110平農村二層房屋設計圖,戶型特別接地氣,造價經濟還實用
占地:110.05平方米
帶車庫新農村二層四間別墅設計效果圖帶全套建筑施工圖,217平方
占地:217.21平方米
推薦:10套新農村自建房設計圖,2026年最新設計
閱讀次數:4825737次
100套鄉村別墅圖片大全,2026年最新設計
閱讀次數:2492203次
6款農村蓋一層平房的設計圖,10萬元就能建起來
閱讀次數:1852637次
這11個一層農村自建房別墅火爆了朋友圈!我最喜歡戶型十!你呢
閱讀次數:750268次
農村6萬元建一層小別墅圖,你敢相信嗎
閱讀次數:567686次
農村5萬塊就能自建房,6套普通房子設計圖分享,你沒看錯!
閱讀次數:419410次
8套農村漂亮三間平房圖片,非常適合在農村修建!
閱讀次數:411197次
農村自建房化糞池怎么做?附方案及施工過程
閱讀次數:391783次
農村一層三間平房設計圖,告別土氣養老房,讓人忍不住點贊
閱讀次數:350581次
新農村二層樓房圖片造價12萬,挑一套回家建房吧!
閱讀次數:349126次
