
|
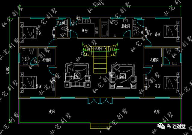
別墅編號:SZ-2089 占地尺寸:19.8X12.9米 占地面積:255.42平方米 建筑面積:377平方米 結構類型:框架結構 主體參考造價:38萬左右
別墅效果圖
別墅效果圖
一層設有:2堂屋、4臥室、4獨衛、2衣帽間、廚房、公衛、樓梯間
二層設有:堂屋上空、走廊、3臥室、2獨衛、2衣帽間、公衛、陽臺、樓梯間 圖紙之家-專注農村別墅/自建房設計18年,集合國內200余位經驗豐富的設計師,被評為口碑最好的農村建筑設計公司! |

130平方米農村兩層別墅圖紙及效果圖12X11米
占地:133平方米
鄉下建房一層半戶型圖,占地160平米,帶閣樓
占地:多種戶型
帶地下室的農村自建三層半歐式別墅設計圖,看著真豪氣!
占地:142.45平方米
240平方米新農村漂亮的兄弟雙拼別墅設計圖紙,單戶120平
占地:239平方米
120平二層別墅房屋設計圖,造型美觀、現代
占地:120平方米
2026最火的現代別墅設計圖農村三層戶型,帶地下室
占地:119.79平方米
三層農村自建別墅設計圖紙及效果圖,占地110平米,外觀精致又大
占地:110平方米
帶車庫徽派風格三層別墅房屋設計圖,新農村住宅設計推薦
占地:140平方米
帶堂屋二層小別墅設計圖紙帶外觀圖,13.6米x9米
占地:122.4平方米
大氣農村一層自建別墅方案,絕對讓人羨慕的“平房”
占地:158.39平方米
一層雙拼別墅獨立入戶+共用墻,兄弟合建,施工隊直呼太省料
占地:269.43平方米
120平方米帶地下室三層復式別墅戶型圖,現代風格
占地:120.78平方米左
120平米三層30萬別墅圖片大全及全套施工圖,外觀簡潔大方
占地:120平方米
簡單實用的二層雙拼別墅設計圖,總占地150平米左右,雙拼房屋
占地:150平方米MB
適合農村建造的二層房屋設計圖紙及效果圖,帶悶頂層,占地15
占地:150平方米
農村四層樓房設計圖,含外觀圖片,自建四層房屋推薦
占地:140平方米
140平方米新農村二層自建平屋頂房屋設計圖紙帶外觀效果圖
占地:140平方米左右
農村三間兩層樓房設計圖,帶外觀效果圖
占地:140平方米
?13.5x9米這尺寸火了!好多人家照著建這款二層別墅,簡單實用
占地:115.11平方米
180平方別墅房屋設計圖,外觀效果圖美觀
占地:180平方米
推薦:10套新農村自建房設計圖,2026年最新設計
閱讀次數:4825737次
100套鄉村別墅圖片大全,2026年最新設計
閱讀次數:2492203次
6款農村蓋一層平房的設計圖,10萬元就能建起來
閱讀次數:1852637次
這11個一層農村自建房別墅火爆了朋友圈!我最喜歡戶型十!你呢
閱讀次數:750268次
農村6萬元建一層小別墅圖,你敢相信嗎
閱讀次數:567686次
農村5萬塊就能自建房,6套普通房子設計圖分享,你沒看錯!
閱讀次數:419410次
8套農村漂亮三間平房圖片,非常適合在農村修建!
閱讀次數:411197次
農村自建房化糞池怎么做?附方案及施工過程
閱讀次數:391783次
農村一層三間平房設計圖,告別土氣養老房,讓人忍不住點贊
閱讀次數:350581次
新農村二層樓房圖片造價12萬,挑一套回家建房吧!
閱讀次數:349126次
