
|
三層占地140㎡現代實用農村自建房全套Cad施工圖,主體25萬建成!
效果圖 層數:三層 開間:13.2米 進深:11.4米 首層占地面積:139.04平方米 總建筑面積:302.26平方米 結構形式:磚混結構 主體造價:25萬 功能設計
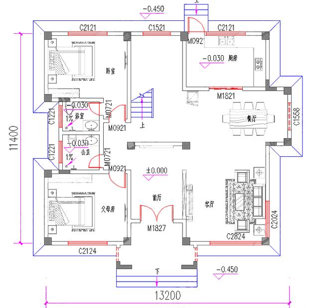
一層平面圖 一層:前廳、客廳、廚房、餐廳、父母房、臥室、公衛、浴室
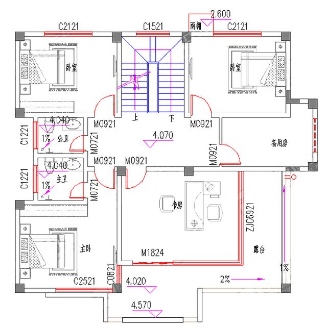
二層平面圖 二層:主臥(帶主衛)、次臥×2、書房(帶露臺)、備用房、公衛
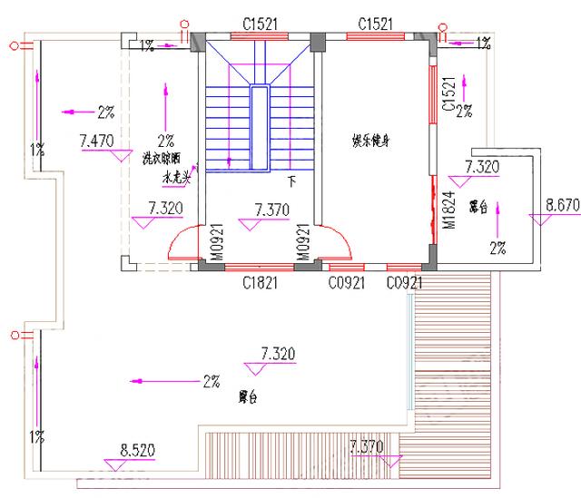
三層平面圖 三層:娛樂健身房(帶露臺)、大露臺、洗衣晾曬房 圖紙之家-專注農村別墅/自建房設計18年,集合國內200余位經驗豐富的設計師,被評為口碑最好的農村建筑設計公司! |

私人二層歐式別墅建筑設計圖(效果圖+全套別墅設計方案)
占地:144平方米
120平米三層別墅房屋設計圖,帶車庫,帶閣樓
占地:120平方米
30萬農村小別墅設計圖片,30萬別墅設計戶型推薦
占地:130平方米
二層半房子設計圖及效果圖,客廳中空,南北通透
占地:160平方米
超現代風格平頂別墅設計圖,外觀時尚,80、90很喜歡
占地:112.18平方米
經典中式三合院設計,一層空間實用大氣,輕松實現理想家園!
占地:160.53平方米
占地130平三層現代別墅設計圖方案,帶電梯和地下室設計
占地:134.75平方米
2026年新款別墅外觀圖及全套施工圖紙,占地面積13×10米
占地:130平方米
三層別墅設計施工圖紙(含外觀效果圖)帶大露臺
占地:160平方米
二開間小戶型設計三層農村自建房方案,經濟型適合小宅基地建房
占地:107.02平方米
農村養老房還是一層好,帶閣樓的一層房子設計圖
占地:135平方米
150平方米自建現代二層別墅施工設計圖帶外觀圖,15x10米
占地:多戶型可選
155平方米自建二層CAD房屋設計圖紙及效果圖,13X12米
占地:156平方米
一層農村小平房設計圖,功能齊全造價低,兩款戶型可選
占地:多戶型可選
自建帶電梯的三層豪華別墅設計圖,建好有面子,面寬16米
占地:194平方米左右
13×16米農村自建樓房三層別墅戶型設計圖,大氣
占地:168平方米
不帶廚房的一層別墅設計圖,三臥二廳超巴適,室外獨立廚房
占地:120平方米
新中式農村三層四合院別墅設計圖,四合院風格的別墅圖
占地:177平方米
帶電梯的農村歐式雙拼三層豪宅別墅設計圖,樓梯電梯共用
占地:268.448平方米
小戶型二層四合院別墅設計圖,含外觀效果圖,小宅基地選擇
占地:134平方米
推薦:10套新農村自建房設計圖,2026年最新設計
閱讀次數:4825737次
100套鄉村別墅圖片大全,2026年最新設計
閱讀次數:2492203次
6款農村蓋一層平房的設計圖,10萬元就能建起來
閱讀次數:1852637次
這11個一層農村自建房別墅火爆了朋友圈!我最喜歡戶型十!你呢
閱讀次數:750268次
農村6萬元建一層小別墅圖,你敢相信嗎
閱讀次數:567686次
農村5萬塊就能自建房,6套普通房子設計圖分享,你沒看錯!
閱讀次數:419410次
8套農村漂亮三間平房圖片,非常適合在農村修建!
閱讀次數:411197次
農村自建房化糞池怎么做?附方案及施工過程
閱讀次數:391783次
農村一層三間平房設計圖,告別土氣養老房,讓人忍不住點贊
閱讀次數:350581次
新農村二層樓房圖片造價12萬,挑一套回家建房吧!
閱讀次數:349126次
