
|
老家有一棟房子,愛的家人都在身旁。這就是真正的幸福生活,當然前提是你有一顆愛的心。今天給大家帶來的是3款最適合農村建的開間都為11.5m別墅——無可厚非的好,必不可少的舒服。 第一棟:清新風格農村三層別墅,開間11.5m,進深13.1m,占地面積140m²,建筑面積363m²,建筑高度12.418m(各層為3.8m、3.2m、3.2m、屋頂2.218m),磚混結構,外觀上屋頂為藍灰色瓦鋪蓋,主墻外墻面為白色真石漆搭配灰色瓷磚,原屬湖北荊州定制設計。
平面布局:1層140m²(廚房、3臥室、儲藏室、客廳、衛);2層134m²(3臥室、衣帽間、書房、衛、小客廳、陽臺);3層89m²(2臥室、露臺、陽臺、衛生間、書房、走廊)。
第二棟:簡單實用風格三層別墅,11.5mx10.5m,占地面積121m²,磚混結構,建筑面積306m²,建筑高度11.84m(各層建筑高度分別為3.6m、3.3m、3.0m、屋頂1.946m),主體造價30萬左右。屋頂面采用青紅色瓷瓦,三層外墻面采用白色外墻涂料加分隔線,一二層外墻面采用灰色外墻面磚,底部墻面采用蘑菇石貼面,原屬福建福州定制設計。
平面布局:1層(廚房、餐廳、2臥室、堂屋、倉庫、2衛、客廳);2層(4臥室、陽臺、衛生間、客廳);3層(3臥室、陽臺、露臺、公衛)。
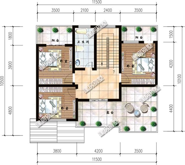
第三棟:大氣歐式四層別墅,11.5mx13.8m,四層戶型,占地153.85m²,建筑面積504.76m²,建筑高度10.8m(各層分別為3.8m、3.3m、3.3m、3.3m、屋頂2.0m),框架結構。紅色釉面瓷瓦鋪蓋的屋頂,外墻面為珍珠白色真石漆+米黃色真石漆+黃褐色文化石+浮雕裝飾,主體約52萬,原屬湖南永州定制設計。
平面布局:1層148.86m²(廚房、餐廳、客廳、門廳、老人房、娛樂室、洗衛);2層154.18m²(3臥室、3主衛、小客廳、陽臺);3層121.16m²(3臥室、3主衛、小客廳、陽臺、書房、露臺);4層80.56m²(露臺、家庭KTV、臥室、2衛)。
![]()
圖紙之家-專注農村別墅/自建房設計18年,集合國內200余位經驗豐富的設計師,被評為口碑最好的農村建筑設計公司! |

小占地三層現代時尚風別墅設計圖,平屋頂占地不足100平
占地:98.35平方米
復式客廳挑空三層別墅設計圖,帶外觀效果圖片,推薦
占地:150平方米
一層雙拼別墅獨立入戶+共用墻,兄弟合建,施工隊直呼太省料
占地:269.43平方米
一層農村三合院平房設計圖,可以倆兄弟或和父母兒女一起住
占地:202.79平方米
堂屋共用的三層雙拼別墅設計圖,總占地面積245平米
占地:245平方米
8×12米農村三層別墅自建房設計圖,小開間精選方案
占地:103平方米
三層平屋頂別墅房屋設計圖及外觀效果圖
占地:150平方米
18×15米新中式高檔農村三層別墅設計圖,低調奢華又實用
占地:195.91平方米
15萬左右新中式二層別墅設計圖平面圖,占地110平米左右
占地:110平方米
最漂亮的農村二層小樓圖,平屋頂的設計對于農村來說尤為便利
占地:170平方米
140平中式徽派一層別墅設計圖,一層照樣建這樣漂亮
占地:140平方米
120多平米三層農村別墅設計圖,把實用做到極致,造價適中
占地:126.85平方米
帶地下車庫的三層別墅設計圖,160平復式戶型
占地:159.03平方米
歐式三層小洋樓設計圖,外觀氣派,典雅、高貴
占地:145平方米
230平米歐式帶地下室三層自建別墅設計施工圖紙及效果圖
占地:230平米
新農村住宅設計圖集,三層房屋設計圖紙展示
占地:110平方米
平頂新中式三層農村別墅設計圖,最適合鄉村自建占地150平米
占地:150.35平方米
大開間小進深的一層別墅設計圖,進深僅8.7米,獨立餐廚照樣美觀
占地:130.32平方米
20萬以內二層歐式小別墅設計方案,全套施工圖+效果圖
占地:115平方米
鄉下一層自建養老平房戶型圖及全套圖紙,占地面積200左右
占地:200平方米
推薦:10套新農村自建房設計圖,2026年最新設計
閱讀次數:4825737次
100套鄉村別墅圖片大全,2026年最新設計
閱讀次數:2492203次
6款農村蓋一層平房的設計圖,10萬元就能建起來
閱讀次數:1852637次
這11個一層農村自建房別墅火爆了朋友圈!我最喜歡戶型十!你呢
閱讀次數:750268次
農村6萬元建一層小別墅圖,你敢相信嗎
閱讀次數:567686次
農村5萬塊就能自建房,6套普通房子設計圖分享,你沒看錯!
閱讀次數:419410次
8套農村漂亮三間平房圖片,非常適合在農村修建!
閱讀次數:411197次
農村自建房化糞池怎么做?附方案及施工過程
閱讀次數:391783次
農村一層三間平房設計圖,告別土氣養老房,讓人忍不住點贊
閱讀次數:350581次
新農村二層樓房圖片造價12萬,挑一套回家建房吧!
閱讀次數:349126次
