
|
15×10米37萬3廳7室帶健身區+臥室套間+飄窗三層豪華別墅設計圖
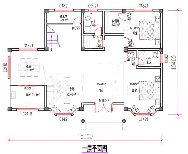
戶型簡介 層數:三層 開間:15米 進深:10.4米 首層占地面積:140.32平方米 總建筑面積:373.82平方米 結構形式:框架結構 主體造價:37萬 功能設計
一層:門廳、客廳、臥室(帶衛生間)、臥室(帶衣帽間)、廚房、餐廳、儲藏室、公衛
二層:起居室(帶陽臺)、臥室(帶衛生間)、臥室(帶衣帽間)、臥室、陽臺、公衛
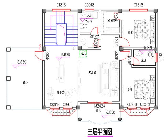
三層:起居室(帶陽臺)、健身區、臥室(帶衛生間)、臥室(帶衣帽間)、公衛、露臺 圖紙之家-專注農村別墅/自建房設計18年,集合國內200余位經驗豐富的設計師,被評為口碑最好的農村建筑設計公司! |

兄弟四間三層雙拼別墅設計圖,造價40萬左右
占地:210平方米
最實用中式一層三合院別墅設計圖,簡約精致布局實用
占地:162.49平方米
140平方米一層歐式新農村平房設計圖,主體造價僅11萬
占地:141.218平方米
偏中式徽派的二層房屋農村別墅設計圖,馬頭墻小青瓦
占地:123.36平方米
165平方米農村帶陽光房的二層小別墅設計圖紙帶外觀圖18.16米*9.
占地:166平方米
新中式復式三層別墅設計圖紙,最美的新中式別墅
占地:130平方米
農村三層雙拼別墅戶型圖設計圖,整體外觀氣派
占地:220平方米
高端大氣三層雙拼自建房設計圖,外觀漂亮,240平左右
占地:240平方米
一層農村自建房設計,背面不開窗,15乘10米,內部布局實用
占地:多戶型可選
農村20萬左右三層住房設計圖,小宅基地首選
占地:95平方米
進深14米的二層小別墅設計圖,農村自建房好方案
占地:144平方米左右
農村一層7字型平房別墅設計圖,“L”自行戶型,外觀簡約低調
占地:213.39平方米
新農村帶陽臺三層樓房圖紙,占地180平米左右,豪華大氣
占地:180平方米
現代風格三拼別墅設計圖紙,三兄弟回村自建房戶型
占地:324平方米
最新農村20萬元二層半別墅設計圖,占地僅110多平
占地:110平方米
開間14米!農村養老一層別墅神戶型,爸媽住得安心,施工隊狂贊太
占地:160.86平方米
漂亮的農村三層小樓房設計圖,簡單大氣,帶車庫
占地:150平方米
帶車庫的新中式風格一層別墅設計圖,鳥語花香回家建房
占地:184平方米
小開間三層新中式小別墅設計圖,外觀圖優雅大氣,讓人心動!
占地:103.18平方米
三層獨棟別墅設計圖紙帶效果圖,全套施工方案(建筑圖+結構圖
占地:144平方米
推薦:10套新農村自建房設計圖,2026年最新設計
閱讀次數:4825737次
100套鄉村別墅圖片大全,2026年最新設計
閱讀次數:2492203次
6款農村蓋一層平房的設計圖,10萬元就能建起來
閱讀次數:1852637次
這11個一層農村自建房別墅火爆了朋友圈!我最喜歡戶型十!你呢
閱讀次數:750268次
農村6萬元建一層小別墅圖,你敢相信嗎
閱讀次數:567686次
農村5萬塊就能自建房,6套普通房子設計圖分享,你沒看錯!
閱讀次數:419410次
8套農村漂亮三間平房圖片,非常適合在農村修建!
閱讀次數:411197次
農村自建房化糞池怎么做?附方案及施工過程
閱讀次數:391783次
農村一層三間平房設計圖,告別土氣養老房,讓人忍不住點贊
閱讀次數:350581次
新農村二層樓房圖片造價12萬,挑一套回家建房吧!
閱讀次數:349126次
