
|
這款三層農村自建房設計簡單大方,有超大聯體通窗玻璃,陽臺、露臺、臥室套房,家庭活動室等功能,主體造價30萬,共設有3廳7室。
效果圖 層數:三層 開間:10.8米 進深:11.7米 總建筑面積:332.45平方米 建筑工高度:10.8米 結構形式:磚混結構 主體造價:30萬
俯視圖 功能設計
一層平面圖 一層:客廳、廚房、餐廳、臥室(帶衛生間)、臥室(帶衣帽間)、公衛
二層平面圖 二層:客廳(帶陽臺)、臥室(帶衛生間)、臥室×2、公衛
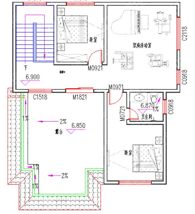
三層平面圖 三層:家庭活動室、臥室(帶衛生間)、臥室、露臺 其他漂亮的圖紙展示,哪一款能入你的眼:
1
2
3
4
5 圖紙之家-專注農村別墅/自建房設計18年,集合國內200余位經驗豐富的設計師,被評為口碑最好的農村建筑設計公司! |

挑空客廳戶型歐式二層別墅設計圖紙,高端大氣帶車庫
占地:236.09平方米
新農村二層房屋設計圖紙(全套建筑施工圖紙+外觀效果圖)
占地:85平方米
新款三層農村自建別墅設計圖,中式風復式客廳
占地:158.96平方米
二層農村小別墅自建房設計圖,布局實用,占地150平
占地:149.05平方米
80平方米三層農村自建民房設計圖,小戶型別墅方案
占地:81平方米
爆火農村養老房設計:16 米面寬一層戶型,自住養老全拿捏
占地:169.87平方米
高端二層新中式四合院別墅設計圖,含全套CAD施工圖
占地:217平方米
農村自建房10萬以下兩層別墅設計圖含外觀效果圖片
占地:105平方米
二層農村小別墅設計圖,造價經濟實惠,參考價30萬以內
占地:140平方米
兩間二層農村自建房設計圖,面積雖小功能齊全,布局緊湊。
占地:118.75平方米
最新農村20萬元二層半別墅設計圖,占地僅110多平
占地:110平方米
12x10米農村建房圖紙,客廳中空,讓你后半輩子在稱贊聲中度過
占地:120平方米
145平方米新農村二層別墅設計效果圖及施工圖,12.6米x11.4米
占地:147平方米
帶架空層的三層農村別墅設計火了!雨季不怕返潮
占地:147.15平方米
150平左右新農村自建房設計圖,含外觀效果圖
占地:150平方米
120平方兩層房子設計圖及圖片,外觀大方好看,內部結構合理
占地:120平方米
農村三間四層樓房設計圖,農村輕奢型四層別墅
占地:160平方米
對稱設計二層歐式別墅設計圖,優雅時尚有品位
占地:151.85平方米
農村實用型一層半樓房圖片效果圖,占地140平米左右
占地:140平方米
110平農村二層房屋設計圖,新農村自建房戶型推薦
占地:110平方米
推薦:10套新農村自建房設計圖,2026年最新設計
閱讀次數:4825737次
100套鄉村別墅圖片大全,2026年最新設計
閱讀次數:2492203次
6款農村蓋一層平房的設計圖,10萬元就能建起來
閱讀次數:1852637次
這11個一層農村自建房別墅火爆了朋友圈!我最喜歡戶型十!你呢
閱讀次數:750268次
農村6萬元建一層小別墅圖,你敢相信嗎
閱讀次數:567686次
農村5萬塊就能自建房,6套普通房子設計圖分享,你沒看錯!
閱讀次數:419410次
8套農村漂亮三間平房圖片,非常適合在農村修建!
閱讀次數:411197次
農村自建房化糞池怎么做?附方案及施工過程
閱讀次數:391783次
農村一層三間平房設計圖,告別土氣養老房,讓人忍不住點贊
閱讀次數:350581次
新農村二層樓房圖片造價12萬,挑一套回家建房吧!
閱讀次數:349126次
