
|
12×13米50萬四層4廳10室帶挑空客廳+老人房+套房農村別墅設計圖
層數:三層 開間:12.06米 進深:13.06米 首層占地面積:156.77㎡ 總建筑面積:506.52㎡ 結構形式:框架結構 主體造價:50萬
俯視圖 功能設計
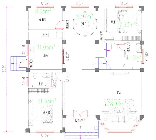
一層平面圖 一層:挑空客廳、老人房(帶主衛)、廚房、餐廳、儲藏室、公衛
二層平面圖 二層:小廳、主臥(帶主衛)、次臥(帶私衛)、次臥、公衛
三層平面圖 三層:小廳、臥室(帶衛生間)、臥室(帶陽臺)、臥室(帶衛生間)、臥室、公衛
四層:起居室、臥室×2、公衛 圖紙之家-專注農村別墅/自建房設計18年,集合國內200余位經驗豐富的設計師,被評為口碑最好的農村建筑設計公司! |

100平方米新農村住宅二層小別墅設計CAD圖紙及效果圖,10x10米
占地:96平方米
小戶型三層別墅房屋設計圖紙,占地80多平米,麻雀雖小五臟俱全
占地:80平方米
最新高端四層別墅外觀效果圖及全套設計圖,真土豪就這樣建
占地:174.08平方米
100平簡單三層房屋設計圖紙,新農村自建推薦圖紙
占地:100平方米
古典韻味的四層房屋設計圖,占地140平米左右,這樣的外觀配上紅
占地:140平方米
小面寬大進深三層別墅圖紙設計,戶型非常實用經典
占地:171.39平方米
200平米左右二層樓房設計圖,外觀看著舒服、布局住著坦然
占地:190平方米
開間9到10米簡約別墅設計圖紙帶效果圖,全套別墅設計方案
占地:122平方米
兄弟四間三層雙拼別墅設計圖,造價40萬左右
占地:210平方米
簡單平房農村自建一層別墅設計圖,時尚大氣,造價經濟
占地:166平方米
農村一層養老別墅設計圖,兩個戶型方案可選
占地:多種戶型
適合7字型宅基地蓋的一層別墅,中式風格設計
占地:163平方米
農村二層中式三合院設計圖,這才是國人該建的房子
占地:175.58平方米
新農村二層自建房設計圖帶外觀圖片,自建戶型大全
占地:160平方米
經典簡約三層農村自建房設計圖,功能實用簡單大氣,比城里鴿子
占地:144平方米
230平(單戶115平)雙拼別墅房屋設計圖及效果圖大全
占地:230平方米
2026最新兄弟簡歐雙拼別墅設計圖紙,單戶130平米左右
占地:260平方米
好看又簡單的二層小樓設計圖,農村自建20萬元左右
占地:130平方米
95平方米農村四層房屋設計圖,8米X11米 ,預算37萬
占地:95平方米
12×11米兩層農村建房圖紙,農村建房最佳戶型,簡單的風格
占地:140平方米
推薦:10套新農村自建房設計圖,2026年最新設計
閱讀次數:4825737次
100套鄉村別墅圖片大全,2026年最新設計
閱讀次數:2492203次
6款農村蓋一層平房的設計圖,10萬元就能建起來
閱讀次數:1852637次
這11個一層農村自建房別墅火爆了朋友圈!我最喜歡戶型十!你呢
閱讀次數:750268次
農村6萬元建一層小別墅圖,你敢相信嗎
閱讀次數:567686次
農村5萬塊就能自建房,6套普通房子設計圖分享,你沒看錯!
閱讀次數:419410次
8套農村漂亮三間平房圖片,非常適合在農村修建!
閱讀次數:411197次
農村自建房化糞池怎么做?附方案及施工過程
閱讀次數:391783次
農村一層三間平房設計圖,告別土氣養老房,讓人忍不住點贊
閱讀次數:350581次
新農村二層樓房圖片造價12萬,挑一套回家建房吧!
閱讀次數:349126次
