
|
有房才有家,這是中國人骨子里的傳統隨著年紀的增長越來越希望在自己的家鄉建一棟房子。在農村建房子,不需要過多的裝飾,過大過多的追求豪華,反而少了鄉村民居獨有的韻味,也浪費資金,增加施工難度,簡單樸素、戶型方正實用就很好了。以下小編推薦五款最美一層房屋效果圖以及平面戶型圖。 第一款:簡歐式尖頂一層別墅設計圖占地面積:166平方米左右 開間:15.23m 進深:10.63m 建筑高度:6.82米(含屋頂) 設計功能:客廳、餐廳、廚房、主臥(帶衛生間)、臥室x3、衛生間
第二款:新中式簡約一層自建房設計圖,造價10萬 占地面積:145平方米左右 開間:14.0m 進深:9.8m 建筑高度:6.59米(含屋頂); 設計功能:客廳、餐廳、廚房、、臥室×4、衛生間×2
第三款:現代田園風一層農村別墅設計圖,造價18萬占地面積:220平方米左右 開間:18.36m 進深:12.86m 建筑高度:9.1米(含屋頂) 設計功能: 一層戶型:入戶大廳、玄關、客廳、餐廳、廚房、臥室x3、書房、衛生間; 閣樓戶型:臥室、衛生間
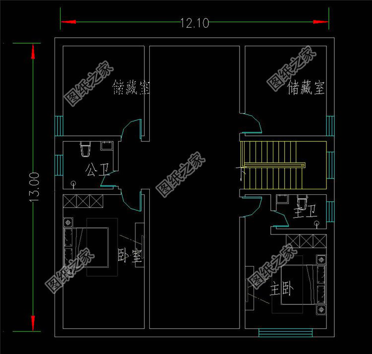
第四款:帶閣樓現代一層別墅設計圖,造價17萬占地面積:170.1平方米左右 開間:12.1m 進深:13m 建筑高度:6.3米(含屋頂) 設計功能: 一層戶型:客廳、廚房、餐廳、臥室X2、臥室(帶衛生間)衛生間、雜物間 閣樓戶型:臥室(帶衛生間)、臥室、衛生間、雜物間X2
第五款:簡單實用一層別墅設計圖,造價15萬占地面積:138.82平方米左右 開間:13.5m 進深:10.8m 建筑高度:7.987米(含屋頂) 設計功能:玄關、客廳、臥室x4、廚房、餐廳
以上就是小編推薦的5款農村一層最美房屋設計圖和平面戶型圖,有需要的可以搜索圖紙之家進行查找。 圖紙之家-專注農村別墅/自建房設計18年,集合國內200余位經驗豐富的設計師,被評為口碑最好的農村建筑設計公司! |

一層共用,二層兄弟雙拼的二層別墅設計圖
占地:182.48平方米
農村建房的“面子天花板”!新中式簡歐結合三層別墅,進門就被
占地:225.98平方米
150平米農村兩層樓房設計圖,簡單大氣時尚
占地:150平方米
新農村住宅設計圖集,三層房屋設計圖紙展示
占地:110平方米
農村4開間二層別墅設計圖,帶堂屋帶露臺,進深9米
占地:126平方米左右
10萬農村別墅設計圖小戶型,經濟、耐看、實用
占地:多種戶型
私人自建三層別墅設計圖紙帶效果圖,歐式風格、外觀大氣
占地:209.44平方米
戶型簡單實用的三層農村房屋設計圖紙,復式結構,大面積開窗,
占地:170平方米
2026二層農村新款別墅新式二層樓房設計圖,非常時尚
占地:多種戶型
115平方米農村三層別墅設計圖,預算30萬左右
占地:115平方米
三層新農村住宅設計圖及效果圖,三層樓房設計圖展示
占地:140平方米
160平方米歐式一層半別墅施工設計圖紙13X13米
占地:160平方米
三層獨棟別墅設計圖紙帶效果圖,全套施工方案(建筑圖+結構圖
占地:144平方米
農村15萬元二層小樓圖,經濟實用小別墅設計圖
占地:105平方米
豪華二層別墅設計圖紙及別墅圖片,旋轉樓梯,內設佛堂,大大落
占地:260平方米
帶車庫四層別墅外觀效果圖及設計圖紙,戶型方正通透
占地:115平方米
帶車庫帶露臺二層農村小別墅設計圖,宅基地大小適中,外觀造型
占地:180平方米
2026二層農村新款別墅戶型圖,占地不到110平米
占地:110平方米
適合小面寬宅基地的兩開間別墅設計圖,8.5米乘13.5米
占地:107.66平方米
三層平頂現代別墅設計圖,實用不花冤枉錢,建好倍有面子
占地:113.02平方米
推薦:10套新農村自建房設計圖,2026年最新設計
閱讀次數:4825737次
100套鄉村別墅圖片大全,2026年最新設計
閱讀次數:2492203次
6款農村蓋一層平房的設計圖,10萬元就能建起來
閱讀次數:1852637次
這11個一層農村自建房別墅火爆了朋友圈!我最喜歡戶型十!你呢
閱讀次數:750268次
農村6萬元建一層小別墅圖,你敢相信嗎
閱讀次數:567686次
農村5萬塊就能自建房,6套普通房子設計圖分享,你沒看錯!
閱讀次數:419410次
8套農村漂亮三間平房圖片,非常適合在農村修建!
閱讀次數:411197次
農村自建房化糞池怎么做?附方案及施工過程
閱讀次數:391783次
農村一層三間平房設計圖,告別土氣養老房,讓人忍不住點贊
閱讀次數:350581次
新農村二層樓房圖片造價12萬,挑一套回家建房吧!
閱讀次數:349126次
