
|
這款三層獨棟別墅設計圖屬于歐式風格建筑,外立面設計非常豐富,落地窗、地下車庫、挑空客廳、豪華主臥,二三層的臥室每間均帶有陽臺,共設有2廳8臥,戶型大氣美觀,一起來看看本套圖紙詳細介紹。
效果圖 層數:三層(不含地下室) 開間:12.30米 進深:10.20米 首層占地面積:134.58平方米 總建筑面積:491.69平方米 結構形式:磚混結構 主體造價:45萬 功能設計
地下室 地下室:車庫
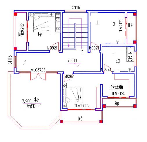
一層平面圖 一層:玄關、客廳(挑空)、2臥室、公衛、廚房、餐廳
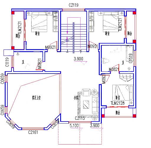
二層平面圖 二層:客廳上空、小客廳、主臥(帶陽臺、衛生間)、2次臥(帶陽臺)
三層平面圖 三層:主臥(帶雙陽臺、衣帽間、衛生間)、2次臥(帶陽臺) 圖紙之家-專注農村別墅/自建房設計18年,集合國內200余位經驗豐富的設計師,被評為口碑最好的農村建筑設計公司! |

帶車庫的三層房屋方案設計圖,帶堂屋全套圖紙
占地:163.8平方米
農村4間2層樓房設計圖,戶型方正,四平八穩的二層農村別墅
占地:180平方米
小戶型農村三層房屋設計圖,占地120平米,布局非常合理,外表典
占地:120平方米
雙戶168平方米小戶型新農村雙拼樓房設計建筑圖紙帶外觀圖
占地:168平方米
新農村帶陽臺三層樓房圖紙,占地180平米左右,豪華大氣
占地:180平方米
農村4間2層樓房設計圖,帶車庫,外觀時尚,帶屋頂花園
占地:210平方米
農村三層雙拼別墅戶型圖設計圖,整體外觀氣派
占地:220平方米
經典美式二層小別墅設計圖,回鄉建房不可不看的經典之作
占地:109.33平方米
農村四層復式樓房設計圖,外觀效果圖+全套圖紙
占地:108平方米
好看又簡單的二層小樓設計圖,農村自建20萬元左右
占地:130平方米
120平米三層30萬別墅圖片大全及全套施工圖,外觀簡潔大方
占地:120平方米
廚房在前,簡約歐式二層農村自建別墅設計圖,戶型個性
占地:143.69平方米
新款鄉村二層半別墅設計圖紙帶效果圖,三層別墅外觀圖片大全
占地:108.795平方米
時尚典雅歐式三層自建房設計圖,美觀大氣簡單舒適,好看到沒得
占地:153.12平方米
小青瓦一層中式小院三合院設計施工圖,白墻青瓦古色古香
占地:155.3平方米
超大氣的農村一層雙拼自建別墅設計方案,絕對讓人羨慕的“平房
占地:424平方米
140平四層復式別墅房屋設計圖,帶外觀效果圖
占地:140平方米
二層新農村自建房設計圖,帶外觀效果圖
占地:140平方米
別致漂亮二層別墅設計圖紙,占地160平米左右,精致的外觀,讓人
占地:160平方米
小L型新款二層別墅設計圖,復式客廳旋轉樓梯,14米乘13米
占地:182平方米
推薦:10套新農村自建房設計圖,2026年最新設計
閱讀次數:4825737次
100套鄉村別墅圖片大全,2026年最新設計
閱讀次數:2492203次
6款農村蓋一層平房的設計圖,10萬元就能建起來
閱讀次數:1852637次
這11個一層農村自建房別墅火爆了朋友圈!我最喜歡戶型十!你呢
閱讀次數:750268次
農村6萬元建一層小別墅圖,你敢相信嗎
閱讀次數:567686次
農村5萬塊就能自建房,6套普通房子設計圖分享,你沒看錯!
閱讀次數:419410次
8套農村漂亮三間平房圖片,非常適合在農村修建!
閱讀次數:411197次
農村自建房化糞池怎么做?附方案及施工過程
閱讀次數:391783次
農村一層三間平房設計圖,告別土氣養老房,讓人忍不住點贊
閱讀次數:350581次
新農村二層樓房圖片造價12萬,挑一套回家建房吧!
閱讀次數:349126次
