
|
43萬14×14米2廳4臥帶奢華套房+雙落地窗復式三層私家別墅設計圖 這款三層私家別墅設計圖以享受為主題,設有豪華臥室套房,還有雙落地窗、挑空客廳等特色功能,主題預算43萬左右,戶型方正,共設有2廳4臥,一起來看圖紙詳細介紹。
請輸入描述 層數:三層 開間:13.70米 進深:13.60米 首層占地面積:182.67平方米 總建筑面積:438.16平方米 結構形式:框架結構 主體造價:43萬 功能設計
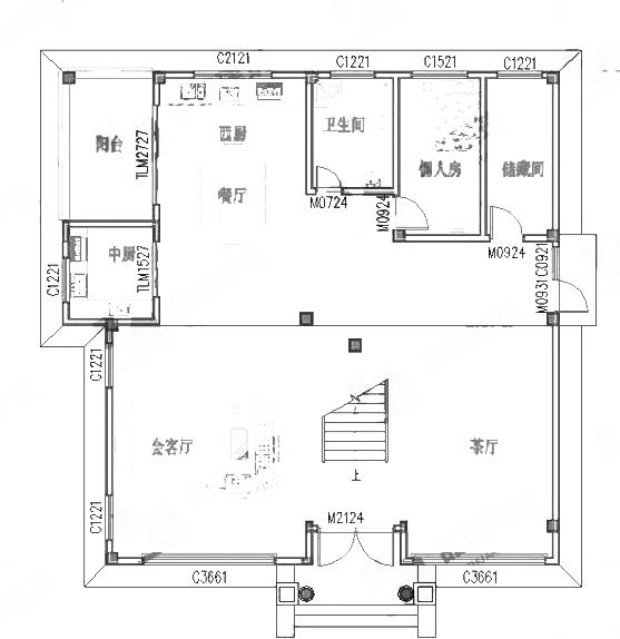
一層平面圖 一層:會客廳(挑空)、茶廳(挑空)、中廚、西廚、餐廳、陽臺、公衛、傭人房、儲藏間
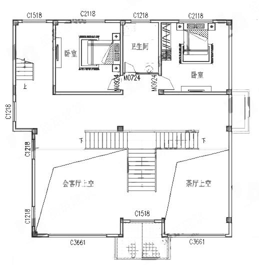
二層平面圖 二層:臥室×2、公衛
三層平面圖 三層:臥室(帶書房、衛生間、可步入式衣柜、雙陽臺)、露臺 圖紙之家-專注農村別墅/自建房設計18年,集合國內200余位經驗豐富的設計師,被評為口碑最好的農村建筑設計公司! |

二層新中式別墅設計施工圖,廚房在配房,占地140平米
占地:141平方米
外觀看起來高端、奢華的二層小別墅設計圖,推薦
占地:130平方米
兄弟雙拼別墅設計戶型圖及設計方案圖,帶外觀效果圖,外觀好看
占地:185平方米(單棟)
35萬內三層自建別墅設計圖,外觀美觀,戶型舒適
占地:135平方米
帶車庫三間復式三層樓房設計圖,外觀精致、大方
占地:150平方米
160平方米新農村三層半別墅設計圖11X16米65萬以內
占地:160平方米
大氣豪華四層別墅設計圖紙,占地180平米左右
占地:180平方米
農村小戶型二層房屋別墅設計圖,帶外觀效果圖
占地:95平方米
美式二層別墅設計圖,含外觀效果圖,造型精美
占地:144平方米
新款農村四層復式別墅設計圖紙及效果圖,外立面清新別致
占地:207平方米
農村10萬元一層小別墅平房設計圖大全,含效果圖
占地:120平方米
農村二層帶車庫四合院別墅設計圖,新中式外觀圖片,戶型實用方
占地:247平方米
四開間二層別墅設計圖,造型精美經典舒適,火爆全村的戶型
占地:150.882平方米
90平方米農村二層房屋設計圖紙(施工圖+效果圖)
占地:90平方米
114平方米農村四層別墅設計圖紙及效果圖,11X11米
占地:114平方米
新農村田園風格兩層半別墅設計圖,外觀造型非常漂亮
占地:147.8平方米
小戶型兄弟雙拼別墅房屋設計圖,帶外觀效果圖
占地:150平方米
預算10萬的簡單二層半別墅房屋設計圖,外觀簡單,造價低
占地:90平方米
260平方米仿歐式二層別墅設計圖紙及效果圖,22X12米
占地:260平方米
農村二層住宅別墅設計圖,貼心實用,12.8米乘14.5米
占地:156.16平方米
推薦:10套新農村自建房設計圖,2026年最新設計
閱讀次數:4825737次
100套鄉村別墅圖片大全,2026年最新設計
閱讀次數:2492203次
6款農村蓋一層平房的設計圖,10萬元就能建起來
閱讀次數:1852637次
這11個一層農村自建房別墅火爆了朋友圈!我最喜歡戶型十!你呢
閱讀次數:750268次
農村6萬元建一層小別墅圖,你敢相信嗎
閱讀次數:567686次
農村5萬塊就能自建房,6套普通房子設計圖分享,你沒看錯!
閱讀次數:419410次
8套農村漂亮三間平房圖片,非常適合在農村修建!
閱讀次數:411197次
農村自建房化糞池怎么做?附方案及施工過程
閱讀次數:391783次
農村一層三間平房設計圖,告別土氣養老房,讓人忍不住點贊
閱讀次數:350581次
新農村二層樓房圖片造價12萬,挑一套回家建房吧!
閱讀次數:349126次
