
|
現在啊,許多人年紀輕輕就過上了還房貸還車貸的生活,被貸款支配的生活真的是敢怒不敢言啊,一個月生活費就那么多,還了貸款,剩下的日子就得精打細算,那與其這樣,不如回老家蓋一棟農村自建房來得實在,余下的錢買一輛小車也是綽綽有余,那既然提到農村自建房,小編就給大家介紹幾款時下最流行的幾款房型吧! 款式一
基本信息: 占地尺寸:10.2X9.7米 占地面積:96.6平方米 建筑面積:193.2平方米 結構類型:磚混結構 建筑層數:2層 這是一款兩層的小別墅,整體風格偏田園風,二樓凸出來的陽臺,即可晾曬衣物又可觀賞風景,落地窗的設計,是不少人喜歡的款式。
一層平面示意圖:客廳,餐廳,廚房,3臥室,3衛生間
二層平面示意圖:書房,4臥室,客廳,3衛生間 臥室數量較多,可留幾間作為客房使用,方便招待。 款式二
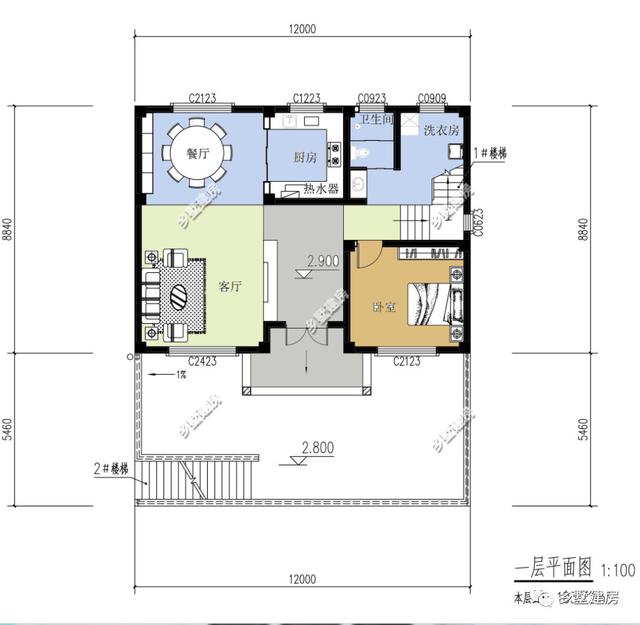
基本信息: 占地尺寸:11.76X14.3米 占地面積:171.6平方米 建筑面積:440.71平方米 結構類型:框架結構 建筑高度:11.85米 建筑層數:2層 這款房型就比較大氣了,一樓直接作為車庫處理,如果家里車輛較多的話,也完全不用擔心車的停放問題,二樓才正式作為形式上的一樓,大門的設計也很有特點,上方還嵌有一個小露臺,門前有一塊區域,放一些綠植也是很漂亮了!
一層平面示意圖:餐廳,客廳,廚房,衛生間,洗衣房,臥室
二層平面示意圖:4臥室,2衛生間,休息廳,陽臺,衣帽間 款式三
基本信息: 開間:12米,進深:14.7米 占地面積:134.97平方米 建筑面積:384.93平方米 建筑高度:12.62平方米 結構類型:框架結構 主體造價參考:46萬左右 這款別墅造型精美,造價實惠,門前的兩根羅馬柱也是別出心裁了,墻面采用土黃色的文化石裝飾,屋頂再覆上一層紅色的磚瓦,總而言之,就是高端大氣上檔次!
一層平面示意圖:客廳,餐廳,廚房,2衛生間,臥室,娛樂室 一層設計一個老人房,娛樂室放在一層,一方面方便熱鬧,另一方面不影響二三層的安靜氛圍。
二層平面示意圖:2衛生間,3臥室,書房,3陽臺,起居室 二層兩個臥室和起居室都帶有小陽臺,可觀景。
三層平面示意圖:活動室,書房,臥室,露臺,陽臺,衛生間 三層布局水對齊,方便施工,又可節省開支,設有娛樂室,閑暇的時候可以叫上幾個好友一起搓搓麻將,娛樂娛樂,二三層都設有書房,夜深人靜的時候可以靜下心來看看書,思考思考。 圖紙之家-專注農村別墅/自建房設計18年,集合國內200余位經驗豐富的設計師,被評為口碑最好的農村建筑設計公司! |

簡單大方四間二層小樓房設計圖,帶車庫,帶大露臺
占地:180平方米
四層豪華別墅設計圖及效果圖,高端房屋設計方案
占地:250平方米
農村三間兩層樓房設計圖,帶外觀效果圖
占地:140平方米
二層農村房屋設計圖紙,帶效果圖和全套施工方案圖
占地:多種戶型
農村4間3層樓房設計圖,帶車庫,挑空客廳,坡屋頂設計
占地:160平方米
二層歐式小別墅設計方案,全套建筑設計圖紙+外觀效果圖
占地:146平方米
四層豪華歐式別墅自建樓房設計圖紙,帶效果圖和全套施工圖
占地:300平方米
2026年新款二層半農村自建小別墅設計圖紙,占地150平方米
占地:150平方米
農村三層帶地下室住宅設計圖及圖片,房內設計了兩個套間
占地:210平方米
面寬8米兩開間四層歐式風別墅,布局實用,小占地大精彩!
占地:100.86平方米
農村一層半房屋設計圖,帶外觀效果圖,外觀時尚
占地:155平方米
現代二層農村別墅全套設計圖,大旋轉露臺+超大中空客廳
占地:133平方米
130平四間二層小洋樓設計圖,含外觀圖片
占地:130平方米
最漂亮的農村二層小樓圖,平屋頂的設計對于農村來說尤為便利
占地:170平方米
農村兄弟倆雙拼別墅房屋設計圖,外觀質樸
占地:195平方米
140平米平屋頂二層新農村自建房設計圖,極簡主義設計 ,實用優
占地:143平方米
18×15米新中式高檔農村三層別墅設計圖,低調奢華又實用
占地:195.91平方米
230平(單戶115平)雙拼別墅房屋設計圖及效果圖大全
占地:230平方米
農村三室二廳一層小平房設計圖,簡單實用型
占地:113.4平方米
50萬以內的歐式三層房屋別墅施工設計圖紙及效果圖
占地:169平方米
推薦:10套新農村自建房設計圖,2026年最新設計
閱讀次數:4825737次
100套鄉村別墅圖片大全,2026年最新設計
閱讀次數:2492203次
6款農村蓋一層平房的設計圖,10萬元就能建起來
閱讀次數:1852637次
這11個一層農村自建房別墅火爆了朋友圈!我最喜歡戶型十!你呢
閱讀次數:750268次
農村6萬元建一層小別墅圖,你敢相信嗎
閱讀次數:567686次
農村5萬塊就能自建房,6套普通房子設計圖分享,你沒看錯!
閱讀次數:419410次
8套農村漂亮三間平房圖片,非常適合在農村修建!
閱讀次數:411197次
農村自建房化糞池怎么做?附方案及施工過程
閱讀次數:391783次
農村一層三間平房設計圖,告別土氣養老房,讓人忍不住點贊
閱讀次數:350581次
新農村二層樓房圖片造價12萬,挑一套回家建房吧!
閱讀次數:349126次
