
|
在農村都喜歡拿建房子的事情來說事!自己建房就一定不能比別人家的房子矮,所以造就了村里全都是3-4層的房屋;本期,我們推薦一款開間11米的鄉村別墅設計方案,在城市打拼的你如果錢攢的差不多了,那就不妨照這個建起來吧。 外觀效果圖: 采用坡屋面的形式,具有傳統建筑的特色,用簡單的粉刷和面磚相結合的裝飾,鏤空欄桿以及八角窗的運用,既能體現現代生活方式和現代建筑的氣息,又有別于城市住宅的復雜和豪華。結合庭院和周邊綠化創造出清新自然,純樸的鄉村氛圍。總用地面積:110㎡ 總建筑面積:327㎡
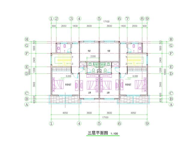
平面布局圖:
一層布置廚房餐廳和客廳,以及車庫
二、三層為臥室及書房
四層為客人臥室、儲藏間及露臺 立面圖:
![]() 圖紙之家-專注農村別墅/自建房設計18年,集合國內200余位經驗豐富的設計師,被評為口碑最好的農村建筑設計公司! |

185平米自建三層別墅房屋施工設計圖紙及效果圖
占地:187平方米
130平方米歐式實用農村二層樓別墅圖紙帶外觀圖12X13米
占地:132平方米
經濟型實用歐式一層小樓房別墅平房設計圖,11X10米
占地:103平方米
農村一層自建房子設計圖紙及效果圖,戶型方正
占地:多戶型可選
2026新款戶型三層新農村別墅房屋設計圖紙,外觀對稱
占地:160平方米
高端大氣中式四合院二層別墅小樓設計圖,外觀古香古色
占地:213平方米
經濟小戶型二層中式四合院(三合院)設計圖紙,帶堂屋和庭院
占地:143.544平方米
100平內的三層豪華歐式別墅房屋設計圖紙 ,簡歐風格
占地:94平方米左右
2026帶車庫三層雙拼別墅房屋設計圖,配色淡雅低調
占地:224平方米
小戶型三層別墅房屋設計圖紙,占地80多平米,麻雀雖小五臟俱全
占地:80平方米
爆款農村一層別墅圖紙設計,看過的都說漂亮實用
占地:144.91平方米
新農村二層帶庭院的小別墅設計圖及效果圖
占地:137平方米
歐式漂亮農村三層自建房設計圖紙,兩個戶型方案可選
占地:多戶型可選
性價比超高一層農村自建別墅設計圖,戶型耐看不用爬樓
占地:158.6平方米
新農村二層帶露臺經濟型小別墅設計圖紙,含外觀效果圖
占地:120平方米
90平小戶型四層房屋設計圖,農村自建別墅推薦
占地:90平方米
農村一層平房別墅設計施工圖效果圖,外觀簡約時尚,17萬到19萬
占地:168平方米
帶車庫的農村四合院別墅設計圖,富貴人家的象征,日子越過越興
占地:219.24平方米
20萬左右歐式二層小別墅設計圖,100平米和130兩個戶型
占地:多種戶型
造價30萬多的三層簡歐新農村別墅設計施工圖紙及效果圖
占地:133平方米左右
推薦:10套新農村自建房設計圖,2026年最新設計
閱讀次數:4825737次
100套鄉村別墅圖片大全,2026年最新設計
閱讀次數:2492203次
6款農村蓋一層平房的設計圖,10萬元就能建起來
閱讀次數:1852637次
這11個一層農村自建房別墅火爆了朋友圈!我最喜歡戶型十!你呢
閱讀次數:750268次
農村6萬元建一層小別墅圖,你敢相信嗎
閱讀次數:567686次
農村5萬塊就能自建房,6套普通房子設計圖分享,你沒看錯!
閱讀次數:419410次
8套農村漂亮三間平房圖片,非常適合在農村修建!
閱讀次數:411197次
農村自建房化糞池怎么做?附方案及施工過程
閱讀次數:391783次
農村一層三間平房設計圖,告別土氣養老房,讓人忍不住點贊
閱讀次數:350581次
新農村二層樓房圖片造價12萬,挑一套回家建房吧!
閱讀次數:349126次
