
|
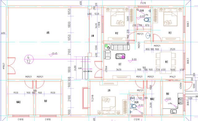
20萬一層帶庭院12×20米2廳3臥農村別墅全套施工圖 今天給大家分享這款一層別墅施工圖,是帶有庭院的戶型,副樓有獨立廚房和儲藏室,主體也有廚房和餐廳,可以將副樓的廚房改造成娛樂室、健身房等等,本戶型共設有2廳3臥,主體預算20萬左右,采用坡屋頂,雅觀精致。
層數:一層 開間:12米 進深:19.5米 首層占地面積:145.14㎡ 結構形式:磚混結構 主體造價:20萬
平面圖 功能設計:客廳、餐廳、廚房×2、儲藏室×2、主臥(帶衛生間)、次臥×2、公衛 圖紙之家-專注農村別墅/自建房設計18年,集合國內200余位經驗豐富的設計師,被評為口碑最好的農村建筑設計公司! |

農村一層四開間養老別墅設計圖,造型美布局佳
占地:164.27平方米
12米面寬一層農村別墅設計圖,實用又舒適
占地:110.41平方米
農村一層7字型平房別墅設計圖,“L”自行戶型,外觀簡約低調
占地:213.39平方米
140平一層平房別墅設計圖,兩客廳兩衛四臥室
占地:140平方米
豪華三層別墅設計圖紙,全套施工方案帶效果圖
占地:130平方米
帶架空層車庫/地下室自建一層別墅設計圖,隔潮又能儲物
占地:91.32平方米
二層簡歐風格自建房別墅戶型設計圖,造價26萬
占地:132.4平方米
帶地下室三間二層農村自建房設計圖,現代平屋頂設計
占地:99.98平方米
農村三間二層別墅設計圖,外觀簡約左右對稱
占地:170.06平方米
面寬9米的三層農村自建房設計圖,適合鄉下地區自建
占地:121.94平方米
新農村二層房屋設計圖紙(全套建筑施工圖紙+外觀效果圖)
占地:85平方米
高端豪華三層別墅住宅設計方案圖,歐式外觀風格
占地:170平方米
經典三層別墅設計圖紙(全套施工圖+效果圖),新農村自建推薦
占地:123平方米
好看又簡單的二層樓房設計,經濟實用型的農村小別墅
占地:135平方米
獨棟小別墅設計圖,造價30萬左右的獨棟小別墅設計推薦
占地:150平方米
160平方米新農村自建二層樓房設計圖紙及效果圖,15x11米
占地:160平方米
帶地下室設計三層自建房別墅設計圖,復式挑空客廳
占地:192平方米
簡單實用的二層雙拼別墅設計圖,總占地150平米左右,雙拼房屋
占地:150平方米MB
中式二層對稱別墅設計圖,帶地下室設計,整體造價經濟
占地:171.6平方米
農村宅基地建房二層別墅設計圖,適合回鄉自建!
占地:137.5平方米
推薦:10套新農村自建房設計圖,2026年最新設計
閱讀次數:4825737次
100套鄉村別墅圖片大全,2026年最新設計
閱讀次數:2492203次
6款農村蓋一層平房的設計圖,10萬元就能建起來
閱讀次數:1852637次
這11個一層農村自建房別墅火爆了朋友圈!我最喜歡戶型十!你呢
閱讀次數:750268次
農村6萬元建一層小別墅圖,你敢相信嗎
閱讀次數:567686次
農村5萬塊就能自建房,6套普通房子設計圖分享,你沒看錯!
閱讀次數:419410次
8套農村漂亮三間平房圖片,非常適合在農村修建!
閱讀次數:411197次
農村自建房化糞池怎么做?附方案及施工過程
閱讀次數:391783次
農村一層三間平房設計圖,告別土氣養老房,讓人忍不住點贊
閱讀次數:350581次
新農村二層樓房圖片造價12萬,挑一套回家建房吧!
閱讀次數:349126次
