
|
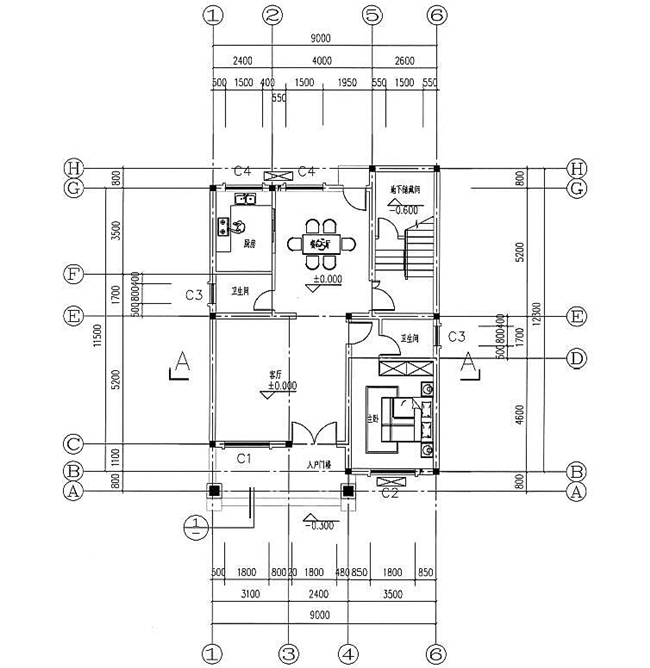
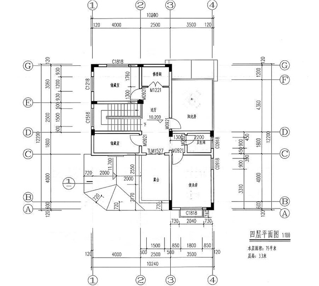
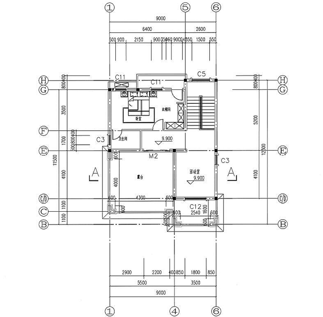
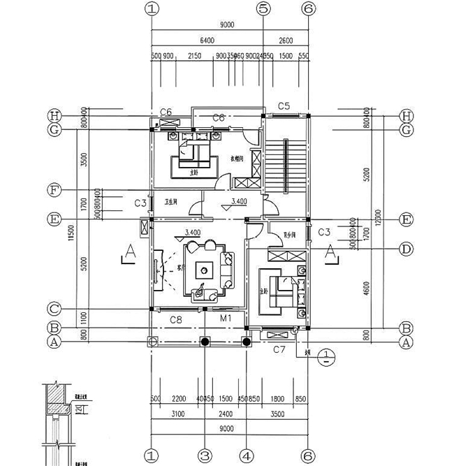
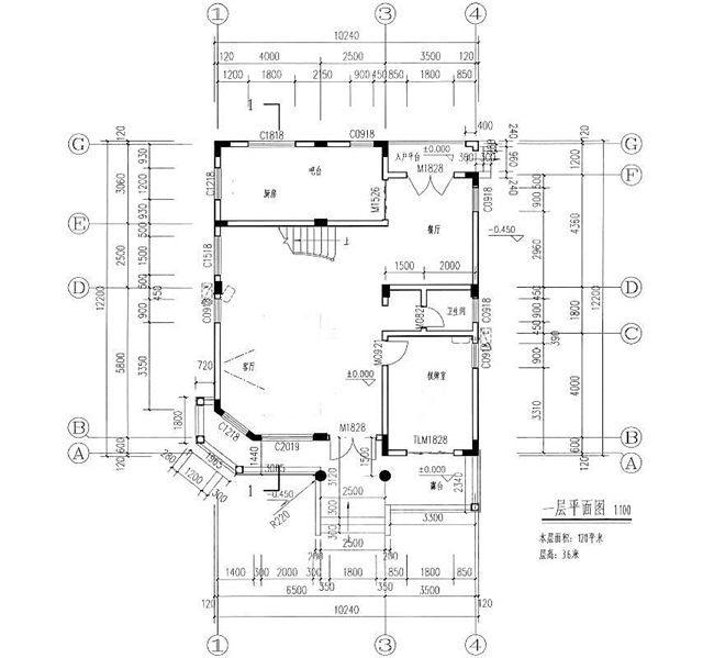
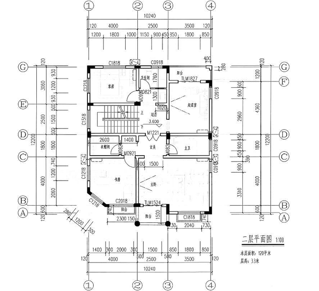
近年回家蓋房成了一種熱潮,據小編了解,很多地區,對于宅基地一般都是有限制的,不是你想蓋多大就蓋多大的,超面積了,也審批不過。 雖說面積受限,但是不少地區的高度是沒有限制的,因為很多地區農村建房,都是獨門獨院,尤其是南方。所以很多家庭為了面積做大一些,都是往高了蓋,而且蓋得越高,越顯大氣,在農村也有面子。 小編今天為大家分享3棟最新款三層半別墅圖片,這三款別墅每款都非常精致豪華,并且圖紙都是甲級設計院的設計師力作打造,每處細節都能體現別墅的高品味和高檔次,而且都包含施工圖哦,一起來看看吧! 款式一:農村四層樓房設計圖圖紙介紹: 本戶型為四層樓房設計圖,客廳挑空,帶多個露臺,外觀時尚、漂亮,色彩搭配協調,在鄉村自建一套,都可以成為一道亮麗的風景線,內部布局合理,復式結構讓客廳顯得高端、敞亮。 占地面積:14.0m*10.0m,140平方米左右; 建筑高度:16.20米(含屋頂);
款式二:120平方米新農村四層房屋設計圖紙圖紙介紹: 該款別墅設計在整體的空間布局上不僅很實用,而且在功能的需求上也是設計的十分合理。真正的做到了小戶型大功能的戶型設計。 占地尺寸:面寬12.2米x進深11.4米 占地面積:125.7平方左右 建筑總面積/總層高:446平米(不含入戶平臺、陽臺、露臺)/總高14.4米,屋檐口高12.9米
款式三:農村四層復式房屋設計圖紙圖紙介紹: 該款總占地100多平,無論是采光還是通風都非常良好,外墻顏色搭配低調奢華,戶型功能分區合理,房間尺度設計適宜,空間利用率高。 占地尺寸:面寬9米x進深12.3米 占地面積:105.1平方 建筑總面積/總層高:383.2平米(不含入戶平臺、陽臺、露臺)/總高14.7米,屋檐口高13米
三層半之前并不是熱門戶型,因為很多人覺得比較浪費,但是近年很多家庭對這種款式都很喜歡關注日益增多。 并且大家看完小編今天分享的這三棟三層半別墅設計,是不是很喜歡呢?如果想看更多戶型展示,請點擊下方(更多圖紙展示) 圖紙之家-專注農村別墅/自建房設計18年,集合國內200余位經驗豐富的設計師,被評為口碑最好的農村建筑設計公司! |

200平米二層自建房別墅設計圖,外觀漂亮布局實用
占地:207.09平方米
共用樓梯二層雙拼自建別墅設計圖,簡單大氣方正
占地:153.88平方米,
140平方米兩層別墅CAD設計圖紙及效果圖,13x11米
占地:138平方米
175平大客廳三層別墅房屋設計圖,含外觀造型現代,美觀
占地:175平方米
農村二層住宅樓圖紙及效果圖,帶地下室,戶型好
占地:220平方米
小戶型三層現代風別墅設計圖,可別再說農村不適合現代風了
占地:92.34平方米
時尚大方的農村二層自建房屋設計圖紙,占地120平米左右
占地:120平米
三層現代平頂別墅設計圖,簡約時尚百看不厭,外觀令人驚艷!
占地:125.142平方米
復式別墅農村四層霸氣豪宅設計圖紙,建好你就是村里第一
占地:136.356平方米
農村兩層新中式別墅圖紙設計圖,外觀圖片大氣,21萬左右
占地:108平方米
農村小型四合院設計效果圖及施工圖,傳統中式,四面建房
占地:220平方米
網紅款兩層別墅圖紙設計圖,外觀簡單好看,后面不開窗
占地:171平方米左右
二層美式自建別墅設計圖,全套施工圖+外觀效果圖
占地:145平方米
最美農村一層合院設計圖紙,自建一棟火遍十里八鄉
占地:190平方米左右
一層共用,二層兄弟雙拼的二層別墅設計圖
占地:182.48平方米
120平方米帶地下室三層復式別墅戶型圖,現代風格
占地:120.78平方米左
廚房在前,簡約歐式二層農村自建別墅設計圖,戶型個性
占地:143.69平方米
新農村三層小別墅設計圖紙,占地160平左右,好看不貴
占地:160平方米
農村120平三層樓房設計圖,造型現代,帶屋頂花園
占地:120平方米
11×10米農村二層別墅圖,百平占地經典實用舒適大氣
占地:103.47平方米
推薦:10套新農村自建房設計圖,2026年最新設計
閱讀次數:4825737次
100套鄉村別墅圖片大全,2026年最新設計
閱讀次數:2492203次
6款農村蓋一層平房的設計圖,10萬元就能建起來
閱讀次數:1852637次
這11個一層農村自建房別墅火爆了朋友圈!我最喜歡戶型十!你呢
閱讀次數:750268次
農村6萬元建一層小別墅圖,你敢相信嗎
閱讀次數:567686次
農村5萬塊就能自建房,6套普通房子設計圖分享,你沒看錯!
閱讀次數:419410次
8套農村漂亮三間平房圖片,非常適合在農村修建!
閱讀次數:411197次
農村自建房化糞池怎么做?附方案及施工過程
閱讀次數:391783次
農村一層三間平房設計圖,告別土氣養老房,讓人忍不住點贊
閱讀次數:350581次
新農村二層樓房圖片造價12萬,挑一套回家建房吧!
閱讀次數:349126次
