
|
本套三層別墅設計圖占地尺寸開間進深9.6*10.8米,一層占地面積103.23㎡,總建筑面積287.88㎡,采用磚混結構,主體成本預算30萬。本戶型外墻采用紅、黃兩色搭配,溫馨自然,白色羅馬柱時尚有質感,二層陽臺拱形窗設計獨特美觀,一層外墻文化石裝飾古樸自然,整體外觀簡約而氣質流露,坡屋頂設計增加美感。
效果圖 本套三層別墅設計圖室內布局:
一層平面圖 一層:客廳、臥室、廚房、餐廳、衛生間、樓梯間 一層有入戶平臺,進門右邊是大客廳,左邊有一間空間較大的臥室,北面是廚房和餐廳以及衛生間,都是明廚明衛,四面采光,通風效果佳。
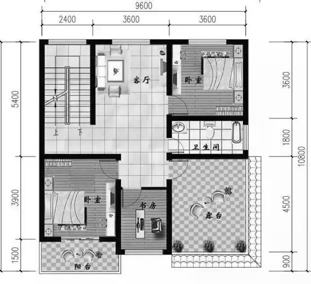
層平面圖 二層:客廳、書房(附露臺)、臥室(附陽臺)、臥室*2、衛生間 二層共設有3間臥室1個客廳1個書房1個衛生間1個陽臺1個露臺,書房的位置在南面正中,且帶有陽臺,環境舒適明亮,書房左邊是主臥,帶有陽臺,另外兩間次臥分別布局在東北、東南角。客廳設在樓梯間的旁邊,起到過度休息的作用。
層平面圖 三層:客廳、臥室(附露臺)、臥室、衛生間、書房、大露臺 本層共有2間臥室1個書房1個客廳1個露臺1個衛生間,其中一間臥室帶有獨立衛生間,書房布局在南面,采光通風效果佳,書房的右邊是大露臺,適合觀賞美景,晾曬東西,栽種花草。北面是客廳和一間臥室,尺寸適宜。 圖紙之家-專注農村別墅/自建房設計18年,集合國內200余位經驗豐富的設計師,被評為口碑最好的農村建筑設計公司! |

兄弟兩戶雙拼房屋設計圖及外觀圖片,戶型合理
占地:185平方米
農村中式一層三合院自建房設計圖,古典大氣白墻黛瓦
占地:177.62平方米
13x13米簡單二層帶閣樓最新別墅設計圖,精致美觀
占地:158.5平方米
農村簡易二層樓設計圖,外觀簡單漂亮,經典時尚
占地:140平方米
鄉村仿古一層別墅圖片及設計圖,經典實用,占地170平
占地:170平方米
兄弟雙拼三層小戶型別墅設計圖紙,160平方米(單戶80平)
占地:163平方米
美觀大氣二層歐式別墅設計圖,外觀效果圖高端上檔次
占地:189.8平方米
180平方現代風三層別墅設計圖,經典大氣,百看不厭
占地:180.48平方米
新款漂亮農村三層別墅建筑設計圖紙帶效果圖片,3種戶型
占地:125平方米
12x13米豪華三層農村別墅設計圖,宅基地上的貴族人生
占地:156平方米
復式三層別墅設計圖片及全套圖紙,客廳中空,外觀為歐式建筑的
占地:175平方米
私人二層歐式別墅建筑設計圖(效果圖+全套別墅設計方案)
占地:144平方米
平頂三層別墅設計方案,簡潔舒適大氣通透,12乘9米,打造理想住
占地:98.21平方米
最新歐式三層別墅設計圖紙,超漂亮,預算30到40萬
占地:160平方米
農村二層中式三合院設計圖,這才是國人該建的房子
占地:175.58平方米
五十萬二層半鄉村別墅,客廳挑空設計,占地200平米左右
占地:200平方米
最新農村三層樓房設計圖紙,客廳中空,采用暖黃色為主色
占地:160平方米
農村二層半別墅圖片大全,二層半別墅設計圖推薦
占地:160平方米
爆款二層自建房別墅設計圖,不追求奢華,建個溫馨實用的家
占地:100平方米
農村二層住宅樓房設計圖紙,全套方案(施工圖+效果圖)
占地:113平方米
推薦:10套新農村自建房設計圖,2026年最新設計
閱讀次數:4825737次
100套鄉村別墅圖片大全,2026年最新設計
閱讀次數:2492203次
6款農村蓋一層平房的設計圖,10萬元就能建起來
閱讀次數:1852637次
這11個一層農村自建房別墅火爆了朋友圈!我最喜歡戶型十!你呢
閱讀次數:750268次
農村6萬元建一層小別墅圖,你敢相信嗎
閱讀次數:567686次
農村5萬塊就能自建房,6套普通房子設計圖分享,你沒看錯!
閱讀次數:419410次
8套農村漂亮三間平房圖片,非常適合在農村修建!
閱讀次數:411197次
農村自建房化糞池怎么做?附方案及施工過程
閱讀次數:391783次
農村一層三間平房設計圖,告別土氣養老房,讓人忍不住點贊
閱讀次數:350581次
新農村二層樓房圖片造價12萬,挑一套回家建房吧!
閱讀次數:349126次
