
|
現在農村生活好了,每家每戶都有了新房子或者正準備建房的,建房子對于大部分老百姓來說,除了美觀實用,還有一點很重要的就是要控制成本,小編今天帶你來看看經典的兩層百來米內簡約實用經濟自建鄉村別墅,希望有你想要的。 01
本戶型經濟實用,配備的大陽臺設計,使日常生活更便利,通風采光佳。 房屋介紹 層數: 二層 結構形式: 磚混結構 主體造價: 11-15萬 開間: 10.44米 進深: 9.24米 占地面積: 88.2平方米 建筑面積: 162.5平方米 功能設計
一層平面圖 一 層:客廳、臥室、雜物間、廚房、餐廳、衛生間 二 層:起居室、臥室、主臥室、衛生間、曬臺 02
本戶型是經濟型的房屋,含大露臺,戶型方正,四面都有窗戶,通風采光效果好。 戶型基本信息 層數: 二層 結構形式: 框架結構 主體造價: 15-20萬 開間: 10.8米 進深: 9.3米 占地面積: 100.44平方米 建筑面積: 200.88平方米 功能設計
一層平面圖 一 層:大堂、廚房、餐廳、儲物室、臥室、衛生間 二 層:起居室、主臥室、臥室、書房、儲物室、衛生間 03
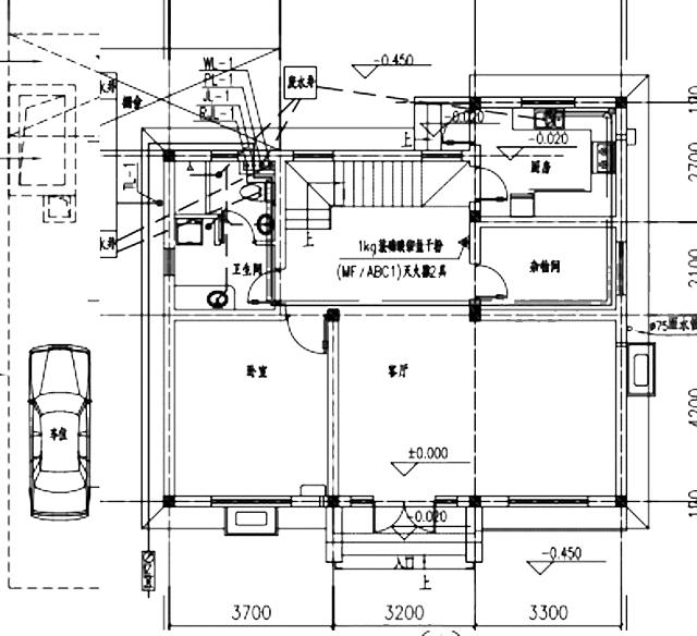
本戶型上下兩層分工明確,餐廚合理,更具有隱私空間,居住舒適。 戶型基本信息 層數: 二層 結構形式: 磚混結構 主體造價: 11-15萬 開間: 9.64米 進深: 11.34米 占地面積: 82.9平方米 建筑面積: 157.2平方米 平面布局圖:
一層平面圖 一 層:客廳、臥室、雜物間、廚房、餐廳、洗衣房、衛生間 二 層:起居室、主臥(附儲藏間,露臺)、臥室、衛生間 04
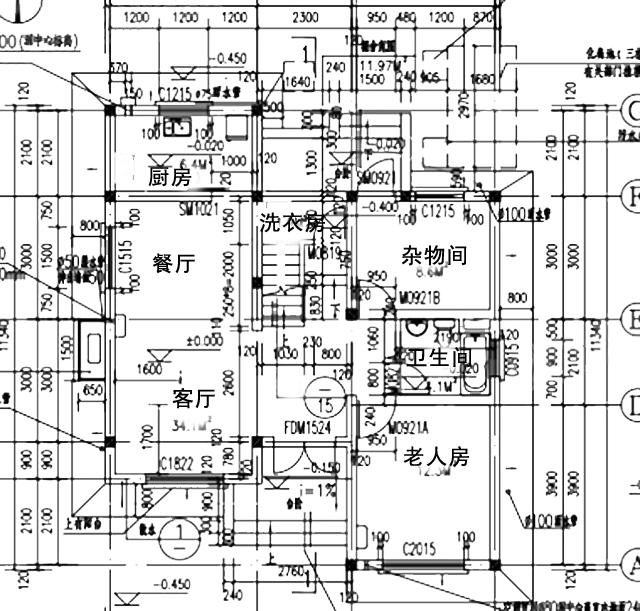
本戶型帶有閣樓,空間分配合理,滿足新農村房屋建設要求。 房屋介紹 層數: 二層 結構形式: 磚混結構 主體造價: 13-15萬 開間: 8.44米 進深: 11.24米 占地面積: 76.6平方米 建筑面積: 185.11平方米 平面圖:
一層平面圖 一 層:起居室、餐廳、儲藏間、衛生間、廚房、化糞池、農具間、雜物間 二 層:陽臺、主臥室、臥室、儲藏間(書房)、衛生間 05
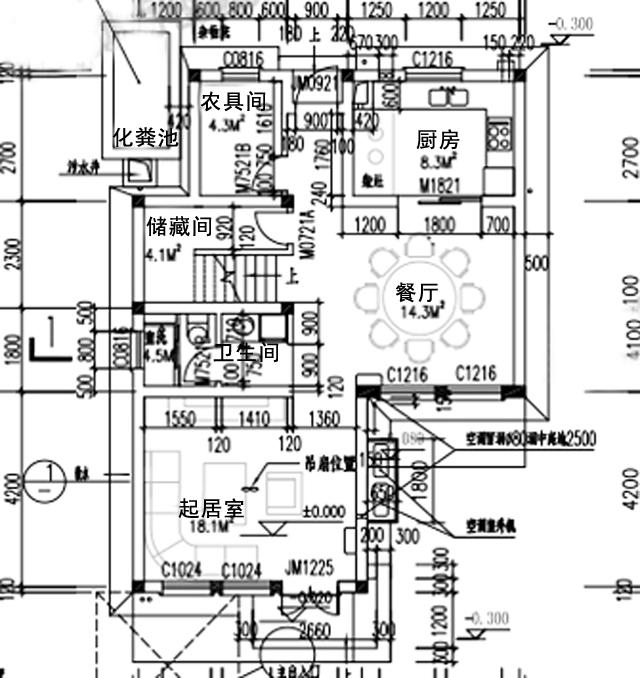
本戶型外觀方正,采光透氣佳,主臥帶獨立衛生間與露臺,便捷之中盡顯優越與尊崇。 房屋介紹 層數: 二層 結構形式: 磚混結構 主體造價: 8-15萬 開間: 8米 進深: 11.6米 占地面積: 92.8平方米 建筑面積: 119.7平方米 平面圖展示:
一層平面圖 一 層:客廳、臥室、廚房、餐廳、儲藏間、衛生間 二 層:主人房(附衛生間,露臺)、臥室、書房、貯衣間、衛生間 圖紙之家-專注農村別墅/自建房設計18年,集合國內200余位經驗豐富的設計師,被評為口碑最好的農村建筑設計公司! |

140平方米兩層別墅CAD設計圖紙及效果圖,13x11米
占地:138平方米
2026年新款別墅外觀圖及全套施工圖紙,占地面積13×10米
占地:130平方米
經典中式三合院設計,一層空間實用大氣,輕松實現理想家園!
占地:160.53平方米
后面帶小院的農村房屋設計圖,適合鄉村自建
占地:300平方米
農村18萬元二層小樓圖紙,漂亮實用的農村二層樓房設計圖
占地:140平方米
農村簡單雙拼小戶型,簡單適用,客廳中空,總占地210平方米
占地:210平方米
農村二層樓簡單大氣的樓房設計圖紙,帶車庫,帶露臺
占地:150平方米
簡單二層農村別墅設計圖,占地適中,簡約造型,實用又經濟!
占地:128.4平方米
豪華農村帶露臺三層樓房別墅設計圖紙,占地200平方米左右
占地:200平方米
對稱一層農村養老別墅設計方案,室內戶型布局合理,14x12米
占地:141.46平方米
簡單農村自建二層樓房設計圖,南北通透
占地:140平方米
一層農家雙拼自建房設計圖,左右對稱四平八穩
占地:219.05平方米
12x12農村三層別墅設計圖,自建房屋推薦戶型
占地:148平方米
造價33萬左右超漂亮的三層別墅圖紙設計圖,旋轉樓梯戶型設計
占地:121.59平方米
90平方米新農村住宅設計二層小別墅設計圖紙11x9米
占地:90平方米
農家中式小院一層三合院自建房,布局寬敞大氣又舒適
占地:186.07平方米
12x9米自建一層小別墅設計圖,占地不大造價低,簡單舒適人人夸
占地:108.36平方米
最美建筑四合院別墅設計方案,大氣經典,開間19米
占地:168.61平方米
帶車庫現代三層房屋別墅設計圖,占地110平米左右,功能齊全
占地:110平米
預算10萬左右新農村自建房屋設計圖紙,帶效果圖
占地:82平方米
推薦:10套新農村自建房設計圖,2026年最新設計
閱讀次數:4825737次
100套鄉村別墅圖片大全,2026年最新設計
閱讀次數:2492203次
6款農村蓋一層平房的設計圖,10萬元就能建起來
閱讀次數:1852637次
這11個一層農村自建房別墅火爆了朋友圈!我最喜歡戶型十!你呢
閱讀次數:750268次
農村6萬元建一層小別墅圖,你敢相信嗎
閱讀次數:567686次
農村5萬塊就能自建房,6套普通房子設計圖分享,你沒看錯!
閱讀次數:419410次
8套農村漂亮三間平房圖片,非常適合在農村修建!
閱讀次數:411197次
農村自建房化糞池怎么做?附方案及施工過程
閱讀次數:391783次
農村一層三間平房設計圖,告別土氣養老房,讓人忍不住點贊
閱讀次數:350581次
新農村二層樓房圖片造價12萬,挑一套回家建房吧!
閱讀次數:349126次
