
|
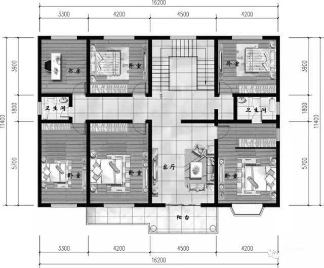
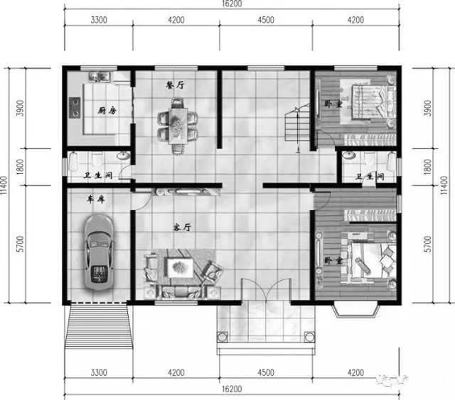
本套農村二層房屋設計圖開間進深16.2×11.4米,建筑基底占地面積191.36㎡,總建筑面積382.72㎡,房屋高度10.1米,采用磚混結構類型,主體預算大概35萬。
效果圖 這款農村二層房屋設計圖設計亮點: 1.面積足夠大,各功能區域寬敞明亮,流暢性高。 2.門廊羅馬柱高大上,延伸二層的陽臺空間。 3.有凸窗設計,立面更豐富,室內空間更開闊。 4.入門客廳面價非常大,可以做隔斷設玄關,提高私密性。 5.二層設有多個房間,滿足農村大家庭住房需求,空間利用率高。 6.閣樓設計方便儲物、還能隔熱采光,增加外觀美感。 平面圖展示
一層平面圖 一層:車庫、客廳、臥室(帶衛生間)、臥室、廚房、餐廳、衛生間、樓梯間 一層有兩個入戶門,一個是正門,另外一個是從車庫進入,正門處有入戶平臺,進門是大客廳,客廳右邊有一間臥室套房,帶有獨立衛生間,進去還有一間臥室(也就是次臥),次臥左邊是漏填,樓梯間的空間比較大,可以利用起來做一個儲藏室,樓梯間左邊是餐廳和廚房,廚房前面是公用衛生間,功能明確,尺寸劃分合理。
二層平面圖 二層:客廳(帶陽臺)、臥室(帶衛生間)、臥室*4、書房、衛生間 二層正對樓梯處是小客廳,客廳通向陽臺,延伸空間又采光,南面和北面分別設有3個房間,其中有5間室臥室,剩下的一間是書房,主臥在南面帶有獨立衛生間。 圖紙之家-專注農村別墅/自建房設計18年,集合國內200余位經驗豐富的設計師,被評為口碑最好的農村建筑設計公司! |

適合回鄉建的三合院平房設計圖,舒適又接地氣
占地:213.96平方米
農村兩間兩層樓房設計圖,造價15萬左右,獨立的廚房設計,干凈
占地:95平方米
120平方米新農村二層自建房屋設計圖紙大全14x9米
占地:120平方米
二開間二層別墅設計圖,面寬9米,不可多得的好選擇!
占地:93.24平方米
二層氣質現代小洋樓設計圖,堪比城市別墅,全村最美沒商量
占地:121.07
回村蓋一層養老房別墅設計圖紙,面寬16米四開間戶型圖
占地:127平方米左右
一層半帶閣樓別墅設計圖,悠閑舒適,養老度假皆可
占地:161.94平方米
兩層半樓房設計圖及效果圖,農村二層房屋設計圖推薦
占地:135平方米
開間20米雙拼別墅三層設計圖,兄弟合建省時省力又省心
占地:205.8平方米
簡潔大氣140平方三層房子設計圖,帶車庫戶型極佳
占地:140平方米
高顏值農村二層別墅設計圖,顏值在線造價不高,建房好選擇!
占地:216.93平方米
農村一層大別墅施工圖,18米乘12米,讓生活充滿儀式感
占地:216平方米
造價65萬左右的三層歐式別墅房屋設計施工CAD圖紙及效果圖
占地:178平方米
小戶型三層別墅房屋設計圖紙,占地80多平米,麻雀雖小五臟俱全
占地:80平方米
面寬20多米二層新中式雙拼別墅設計圖,外觀漂亮時尚
占地:246.66平方米左
農村18萬元二層小樓圖,占地120平面,戶型緊湊合理
占地:120平方米
極簡大氣二層別墅設計圖,15米面寬,簡約大氣,年輕人的最愛!
占地:150平方米
最好看的農村三層樓房設計圖,占地113平米,小平米大格局
占地:110平方米
最實用一層小別墅設計方案,造價不高顏值高,家家都喜歡!
占地:143.48平方米
新農村中式一層三合院效果圖及全套設計圖,喜歡合院的有福了
占地:118平方米
推薦:10套新農村自建房設計圖,2026年最新設計
閱讀次數:4825737次
100套鄉村別墅圖片大全,2026年最新設計
閱讀次數:2492203次
6款農村蓋一層平房的設計圖,10萬元就能建起來
閱讀次數:1852637次
這11個一層農村自建房別墅火爆了朋友圈!我最喜歡戶型十!你呢
閱讀次數:750268次
農村6萬元建一層小別墅圖,你敢相信嗎
閱讀次數:567686次
農村5萬塊就能自建房,6套普通房子設計圖分享,你沒看錯!
閱讀次數:419410次
8套農村漂亮三間平房圖片,非常適合在農村修建!
閱讀次數:411197次
農村自建房化糞池怎么做?附方案及施工過程
閱讀次數:391783次
農村一層三間平房設計圖,告別土氣養老房,讓人忍不住點贊
閱讀次數:350581次
新農村二層樓房圖片造價12萬,挑一套回家建房吧!
閱讀次數:349126次
