
|
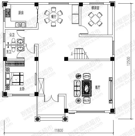
回農村老家蓋別墅的越來越多了,尤其是簡歐式風格的別墅,要想讓自家的別墅在眾多別墅中顯得別具一格,肯定還是需要花費一些心思的,今天要介紹的是一款三層歐式農村別墅,它三層開窗、南北通透,客廳中空,并且采用弧形采光窗,室內亮堂,內部設計也多樣化,有棋牌室、多功能廳,一起來看看!? 層數: 三層 結構形式: 框架結構 主體造價: 35-42萬 開間: 11.8米 進深: 12.5米 占地面積: 134.94平方米 建筑面積: 360.63平方米
一 層:客廳(中空)、臥室(附衛生間)、棋牌室、廚房、餐廳、衛生間 二 層:會客廳(附露臺)、多功能廳、臥室(附衛生間)、2臥室、衛生間 三 層:多功能廳、棋牌室、臥室(附衛生間)、2臥室、衛生間、露臺 建房實拍圖一
暗紅色的墻磚,搭配淺黃色的涂料,搭配出來非常的經典,耐看,有一種復古氣息,此款案例線條分明,很適合農村的審美和生活追求。 建房實拍圖二
灰色的墻磚與真石漆的搭配,非常大氣,線條的裝飾也非常流暢,時尚感和設計感十足,墻上的壁畫和線條讓此款房子極富有特色,此款案例在農村絕對算的上是豪宅了。 建房實拍圖三
外墻用了棕色的墻磚、白色的真石漆來裝飾,層次分明,時尚感十足。所以說一個房子外觀好不好看,設計和配色同樣重要。到目前為止,房子花費50萬。是不是看起來很不錯呢? 以上三款案例都是來自客戶的真實實拍案例,那么哪款最符合你的審美呢? 圖紙之家-專注農村別墅/自建房設計18年,集合國內200余位經驗豐富的設計師,被評為口碑最好的農村建筑設計公司! |

五開間農村豪華三層別墅設計圖,大格局大氣派,大家庭建房首選
占地:227.04平方米
農村高端中式三層雙拼全套房屋施工設計圖,效果圖很大氣
占地:340平方米
農村養老房還是一層好,帶閣樓的一層房子設計圖
占地:135平方米
140平方米新農村三層房屋設計圖,磚混結構帶地下室
占地:138平方米左右
新農村三層房屋住宅設計圖紙大全(含效果圖)
占地:122平方米
鄉村高檔四層別墅樓設計圖,二三層復式挑空客廳
占地:148.992平方米
歐式小別墅設計圖紙帶效果圖,二層歐式小別墅設計方案展示
占地:166平方米
平屋頂現代風格三層蓋別墅設計圖紙,面寬18米
占地:235.34平方米
15萬左右一層農村自建房設計圖,一家住剛剛好
占地:131.33平方米
兄弟四間三層雙拼別墅設計圖,造價40萬左右
占地:210平方米
兩層三間農村房屋設計圖,新農村住宅方案推薦
占地:155平方米
經典戶型二層農村小別墅設計圖,造價25萬內
占地:140平方米
120平農村三層自建房屋設計圖,旋轉樓梯復式別墅戶型方案
占地:119.23平方米
農村三層私人住宅設計圖紙及效果圖,帶車庫,帶露臺
占地:150平方米
100平方米實用二層半小別墅設計圖紙(帶閣樓層),住著安逸
占地:100平方米左右
150平方米農村二層房屋建筑設計圖,15.2x9.4米
占地:148平方米
面寬不到8米的農村二層半別墅建筑圖紙及效果圖
占地:96平方米左右
帶地下室的一層別墅設計圖,農村自建很實用
占地:192平方米
雙拼豪華高端三層別墅設計圖,外觀效果圖大氣
占地:300平方米
地中海風格二層別墅設計圖方案,含外觀效果圖
占地:130平方米
推薦:10套新農村自建房設計圖,2026年最新設計
閱讀次數:4825737次
100套鄉村別墅圖片大全,2026年最新設計
閱讀次數:2492203次
6款農村蓋一層平房的設計圖,10萬元就能建起來
閱讀次數:1852637次
這11個一層農村自建房別墅火爆了朋友圈!我最喜歡戶型十!你呢
閱讀次數:750268次
農村6萬元建一層小別墅圖,你敢相信嗎
閱讀次數:567686次
農村5萬塊就能自建房,6套普通房子設計圖分享,你沒看錯!
閱讀次數:419410次
8套農村漂亮三間平房圖片,非常適合在農村修建!
閱讀次數:411197次
農村自建房化糞池怎么做?附方案及施工過程
閱讀次數:391783次
農村一層三間平房設計圖,告別土氣養老房,讓人忍不住點贊
閱讀次數:350581次
新農村二層樓房圖片造價12萬,挑一套回家建房吧!
閱讀次數:349126次
