
|
本套農村別墅戶型設計圖共有三層,占地尺寸開間進深12.2×14米,主體造價50萬。一層設有2廳2臥2廚2衛,二層設有3臥1陽臺1衛,三層設有3臥1露臺。蓋別墅戶型外觀色調搭配清新明亮,采用粉色和黃色以及暗紅色搭配,視覺效果清爽大氣,平面布局合理緊湊,功能區分明確,互補干擾,獨立性較強,但具有流暢性。
效果圖 室內平面圖
一層平面圖 一層:玄關、客廳、廚房、餐廳、臥室(帶衛生間、衣帽間)、臥室(帶衣帽間)、公衛 正門進去有玄關,右邊是客廳,客廳兩面墻均帶有落地窗大窗,采光效果極佳,寬敞明亮。 玄關左右設有一個次臥,帶有衣帽間,方便收納衣物,讓臥室看起來更寬敞整潔。 其它功能區域均與上面說的區域存在一定高差,采用錯層設計,二三臺階上去,增強空間層次感。 北面的主臥帶有獨立衛生間還有衣帽間,空間較大,休息環境舒適。
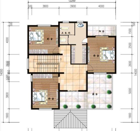
二層平面圖 二層:走道、陽臺、臥室*2(帶衛生間)、臥室(帶陽臺)、公衛 二層共設有3個臥室,每間臥室均是套間,其中2間帶有獨立衛生間,一間帶有陽臺,此外在走道處還有一個陽臺,客廳上空空間開闊,整體視覺效果佳,且保證了二層室內采光通風。
三層平面圖 三層:臥室(帶陽臺、衛生間、衣帽間)、臥室*2、露臺 三層共3個臥室,東北角的主臥豪華配套,獨享一個陽臺,且帶有寬大的衛生間,可以擺放浴缸,工作疲勞之后可以在浴缸里泡澡,洗去煩惱,放松自己。衣帽間的設計可以收納衣物,更是女士的最愛。 L型大露臺提供多角度賞景,可以根據喜好打造一個舒適愜意的花園露臺,呼吸鮮花綠葉帶來的新鮮空氣和芳香味道。 圖紙之家-專注農村別墅/自建房設計18年,集合國內200余位經驗豐富的設計師,被評為口碑最好的農村建筑設計公司! |

130平左右三層樓房設計圖,新農村住宅自建推薦
占地:128平方米
2026新中式農村三層別墅圖,外觀漂亮,看一眼就愛上
占地:240平方米
兩層中式三合院別墅設計圖紙,堂屋套臥全都有,蓋一棟面子十足
占地:181.93平方米
超實用超現代兩層自建小樓圖,純粹極簡風格
占地:184平方米左右
經典簡約三層農村自建房設計圖,功能實用簡單大氣,比城里鴿子
占地:144平方米
背面不開窗二層別墅設計圖,對稱設計簡單好看,眾多建房者的選
占地:183.79平方米
農村三層樓房設計圖及圖片,客廳挑空,優化室內采光
占地:140平方米
三層獨棟帶露臺房屋設計圖,含外觀圖片大全
占地:110平方米
最新款二層鄉下別墅設計圖,新中式風格,24萬建好主體
占地:150.94平方米
時尚的農村二層別墅圖紙設計,現代風格,簡約的外觀
占地:152平方米左右
農村最好看18萬左右兩層小樓圖,外觀、造型簡潔大方
占地:120平方米
戳中年輕人喜好!時尚三層自建房,簡約時尚設計,住著舒適自然
占地:169.76平方米
農村二層住宅別墅設計圖,貼心實用,12.8米乘14.5米
占地:156.16平方米
160平米三層別墅設計圖,功能齊全,外觀漂亮,適合和父母同住
占地:160平方米
自建小樓二層農村別墅設計圖,大氣好看,13米乘14米
占地:181.62
大面積農村一層房子設計圖,戶型實用、合理
占地:190平方米
實用型二層別墅設計方案,占地120平米簡單大方最耐看
占地:120平方米
二層農村自建四合院設計圖,中式外觀古樸有質感200-300平方米
占地:270平方米左右
鄉村典型自建房中式二層四合院別墅設計圖,左右對稱設計
占地:430平方米
農村二層中式小三合院別墅全套設計圖,民族特色風格
占地:122平方米
推薦:10套新農村自建房設計圖,2026年最新設計
閱讀次數:4825737次
100套鄉村別墅圖片大全,2026年最新設計
閱讀次數:2492203次
6款農村蓋一層平房的設計圖,10萬元就能建起來
閱讀次數:1852637次
這11個一層農村自建房別墅火爆了朋友圈!我最喜歡戶型十!你呢
閱讀次數:750268次
農村6萬元建一層小別墅圖,你敢相信嗎
閱讀次數:567686次
農村5萬塊就能自建房,6套普通房子設計圖分享,你沒看錯!
閱讀次數:419410次
8套農村漂亮三間平房圖片,非常適合在農村修建!
閱讀次數:411197次
農村自建房化糞池怎么做?附方案及施工過程
閱讀次數:391783次
農村一層三間平房設計圖,告別土氣養老房,讓人忍不住點贊
閱讀次數:350581次
新農村二層樓房圖片造價12萬,挑一套回家建房吧!
閱讀次數:349126次
