
|
近幾年,農村建房已經掀起了一場建房熱潮,而且房子是建的一棟比一棟豪華,鄉村自建房基本已經成了別墅和豪宅的天下,不過對于兒女長期在外,家里只有老人居住的家庭,面對空蕩蕩的大房子,反而成了負擔,覺得還不如大瓦房來的實在,。本期,我們推薦三款農家小院,實用又省錢,非常適合老人小孩生活。 效果圖1:
帶前后院的自建房設計方案,廚房和餐廳隔離在主體建筑之外,這也是我們傳統民居的一貫做法,除了小院,還設有寬敞的屋檐,休憩納涼再好不過,主建筑設計尺寸:開間13米,進深19.14米,建筑占地160平米; 設計功能:廚房、餐廳和衛生間位于小院西側,通過走廊和主建筑相連,之間有小型陽光房,主體建筑入戶是客廳,正對位置是廳堂和神位,設計有三間臥室,其中一間是套房,另設有棋牌區和儲藏室;
效果圖2:
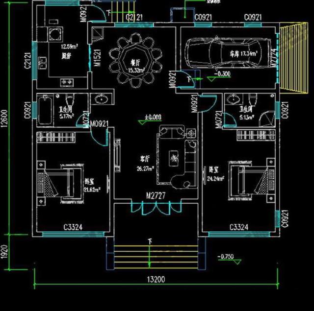
相較于普通的品宅,這種一層自建房略顯大氣奢華,看上去給人一種厚重感,超大的落地大窗不僅讓室內透亮,讓建筑本身也多了些許時尚感,建筑自帶車庫,廚房設土煙囪并開后門,再圍個小院,這個房子就完美了;建筑設計尺寸:開間13.2米,進深12.6米,建筑占地152平米; 設計功能:建筑入戶是客廳,左右各設計一間臥室,其中一間是套房,正對位置是餐廳,餐廳兩側分別是廚房和車庫;
單層建筑結構簡單,布局合理,基本沒有施工難點,而且房間改造便利,比如第二款的車庫改成臥室,將車輛停在小院,非常簡單方便,絕對是很實用的選擇。
圖紙之家-專注農村別墅/自建房設計18年,集合國內200余位經驗豐富的設計師,被評為口碑最好的農村建筑設計公司! |

新農村一層小別墅設計方案,四臥二廳耐看實用,方便打掃更便捷
占地:153.55平方米
農村二層別墅優選設計圖,戶型小巧精致,顏值與實用并存!
占地:95.25平方米
鄉村一層平房設計圖,面寬13米平面圖及造型圖
占地:170平方米
對稱型歐式別墅設計圖,穩重實用,開間18米,適合全國農村建
占地:228.2 平方米
預算20萬的農村三層房屋設計圖方案,帶外觀效果圖
占地:115平方米
農村三層兄弟雙拼別墅設計圖及效果圖片,14X12米自建戶型
占地:154平方米
現代一層(帶悶頂)別墅住宅設計圖,外觀現代時尚
占地:160平方米
2026年最新三層房屋設計圖紙,12米×11米,實用接地氣
占地:130平方米
鄉村最美四合院設計圖及外觀效果圖片,國人的理想住宅
占地:280.62平方米
私人自建三層別墅設計圖紙帶效果圖,歐式風格、外觀大氣
占地:209.44平方米
農村4開間二層別墅設計圖,帶堂屋帶露臺,進深9米
占地:126平方米左右
農村二層中式戶型設計圖,造型古香古色,建好絕對是地標
占地:245.39平方米
150平農村二層復式別墅房屋設計方案圖,帶外觀效果圖片
占地:150平方米
戶型獨特的、二層臥室挑高的別墅房屋設計圖,外觀簡歐風格
占地:250平方米
偏徽派風格民居三層農村住宅設計圖,白墻黛瓦的古雅簡潔
占地:101.01平方米
適合農村自建四合院圖片,中式二層四合院別墅設計施工圖紙
占地:232平方米
現代別墅設計圖紙帶效果圖,85平、100平、145平三個戶型方案
占地:多種戶型
鄉村中式四合院二層別墅設計圖,中式韻味十足
占地:223平方米左右
三層平頂現代別墅設計圖,實用不花冤枉錢,建好倍有面子
占地:113.02平方米
帶配房的二層農村小別墅設計圖,大方適用,耐看經濟
占地:152.28平方米
推薦:10套新農村自建房設計圖,2026年最新設計
閱讀次數:4825737次
100套鄉村別墅圖片大全,2026年最新設計
閱讀次數:2492203次
6款農村蓋一層平房的設計圖,10萬元就能建起來
閱讀次數:1852637次
這11個一層農村自建房別墅火爆了朋友圈!我最喜歡戶型十!你呢
閱讀次數:750268次
農村6萬元建一層小別墅圖,你敢相信嗎
閱讀次數:567686次
農村5萬塊就能自建房,6套普通房子設計圖分享,你沒看錯!
閱讀次數:419410次
8套農村漂亮三間平房圖片,非常適合在農村修建!
閱讀次數:411197次
農村自建房化糞池怎么做?附方案及施工過程
閱讀次數:391783次
農村一層三間平房設計圖,告別土氣養老房,讓人忍不住點贊
閱讀次數:350581次
新農村二層樓房圖片造價12萬,挑一套回家建房吧!
閱讀次數:349126次
