
|
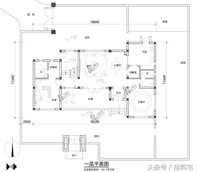
在綠水青山間,配上這樣一棟白墻黛瓦的中式別墅,鄉間恬淡生活躍然眼前,好不羨慕! 項目基本信息建筑面積:總建筑面積408.5平方米,一層建筑面積為150.2平方米,二層建筑面積為145.4平方米,三層建筑面積112.9平方米。 建筑風格:中式風格 建筑結構:混合結構 參考造價:主體45萬(未含內外裝xiu及其他費用) 設計機構:杭州田口建筑設計工作室 建 筑 師:時工、王工 結 構 師:陳工
整體建筑效果鳥瞰圖
西南角度透視圖 宅地現狀
老宅現狀
宅地南側道路現狀
宅地北側現狀
老宅西北側后門現狀
宅地南向視野 ▲一層平面功能:庭院分為三部分南側為前院,南院門為主入口;北側為后院,設北院門,為次入口,主要用作室外停車位;東側為菜園和果園。別墅主體從南側入戶,設玄關;進入玄關,是客廳與小餐廳組成的大空間,東北角是廚房,設門通向蔬果園,廚房帶有獨立的儲藏室;東南角是大餐廳;西側是臥室套房;玄關右側設南向外廊,用作休閑空間平臺;樓梯間也設門通往后院,整體流線貫通。
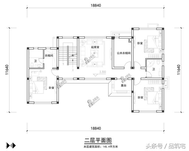
▲二層平面功能:南側入戶門東側兩間臥室、公衛;西側臥室套房;中間樓梯間旁是起居室、公共衣帽間,南向小露臺。
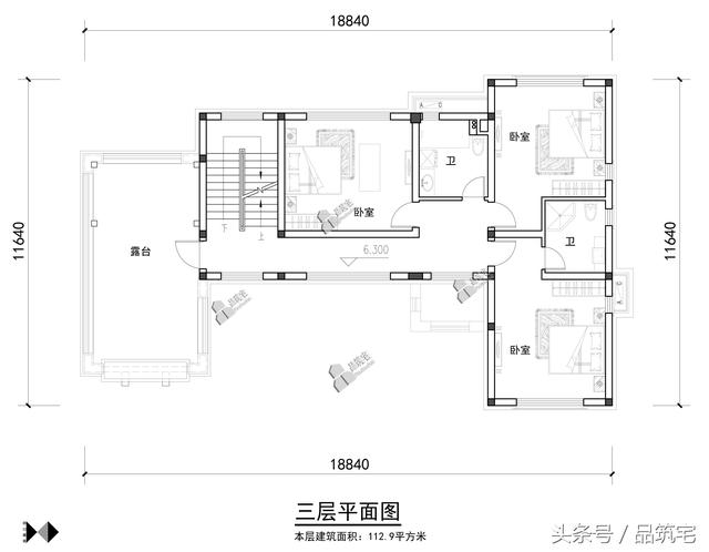
▲三層平面功能:一間臥室套房、兩間臥室、西側大露臺。 建筑立面
南立面圖
北立面圖
東立面圖
西立面圖
剖面圖 我們另外還做了一稿立面加入灰色面磚的方案,一并展示給大家,做個對比~
西南角度鳥瞰
東北角度鳥瞰
頂視圖
西南角度透視
西北角度透視
東北角度透視
東南角度透視
從三層露臺看向一層前院
前院透視
后院透視 圖紙之家-專注農村別墅/自建房設計18年,集合國內200余位經驗豐富的設計師,被評為口碑最好的農村建筑設計公司! |
西南角度鳥瞰
東南角度鳥瞰
西北角度鳥瞰
西南角度人視圖
西北角度人視圖
東北角度人視圖
東南角度人視圖

偏中式徽派的二層房屋農村別墅設計圖,馬頭墻小青瓦
占地:123.36平方米
80平方米鄉村一層半帶閣樓自建別墅設計圖,帶車庫
占地:80平方米
三層帶車庫農村別墅設計圖紙(含外觀效果圖)
占地:147.7平方米
一層農村三合院別墅設計方案圖,秀氣優美,大氣又實用
占地:191.18平方米
四層農村別墅設計圖,一二層都有廚房和餐廳的戶型方案
占地:128.52平方米
120平方米現代新農村二層自建房設計圖,造型時尚好看
占地:120平方米
二層美式自建別墅設計圖,全套施工圖+外觀效果圖
占地:145平方米
190平方米新農村三層(二層半)雙拼房屋設計圖紙,兄弟合建
占地:192平方米左右
農村兩層新中式別墅圖紙設計圖,外觀圖片大氣,21萬左右
占地:108平方米
兄弟四間三層雙拼別墅設計圖,造價40萬左右
占地:210平方米
2026兩層半20多萬農村自建房圖,簡歐風格,美觀大氣
占地:120平方米
二層雙拼別墅外觀效果圖及施工圖,帶露臺,14乘12米
占地:168平方米
農村中式兩層雙拼別墅房屋設計圖,含效果圖片
占地:200平方米
農村平屋頂中式合院設計圖,帶車庫帶庭院
占地:210平方米
農村30萬別墅款式三層設計圖紙,帶地下儲藏室,挑空客廳
占地:110平方米
農村三層雙拼別墅設計圖,兄弟建房開間20米,單戶80平方
占地:160平方米
歐式三層樓房設計圖,客廳中空,旋轉樓梯,帶土灶房
占地:206平方米
一層農村自建房別墅設計圖,簡潔時尚的設計,給父母建養老房
占地:144平方米
120平面三層鄉村樓房設計圖及效果圖,歐式風格
占地:120平方米
農村三間三層豪宅設計圖,自建別墅推薦戶型,帶地下室
占地:170平方米
推薦:10套新農村自建房設計圖,2026年最新設計
閱讀次數:4825737次
100套鄉村別墅圖片大全,2026年最新設計
閱讀次數:2492203次
6款農村蓋一層平房的設計圖,10萬元就能建起來
閱讀次數:1852637次
這11個一層農村自建房別墅火爆了朋友圈!我最喜歡戶型十!你呢
閱讀次數:750268次
農村6萬元建一層小別墅圖,你敢相信嗎
閱讀次數:567686次
農村5萬塊就能自建房,6套普通房子設計圖分享,你沒看錯!
閱讀次數:419410次
8套農村漂亮三間平房圖片,非常適合在農村修建!
閱讀次數:411197次
農村自建房化糞池怎么做?附方案及施工過程
閱讀次數:391783次
農村一層三間平房設計圖,告別土氣養老房,讓人忍不住點贊
閱讀次數:350581次
新農村二層樓房圖片造價12萬,挑一套回家建房吧!
閱讀次數:349126次
