
|
不知道大多數農民朋友在建房時,有沒有為家里基地小或者建房資金緊張的問題而煩惱呢?因為宅基地面小或者兩邊緊挨著鄰居的原因,不知道該如何建一棟外觀造型美觀,室內布局舒適的自建房。今天小編主推薦占地面積小且外觀造型大氣的別墅給大家做參考,希望能給大家帶來幫助。 款式一 本款戶型為歐式風格別墅,整體四平八穩,采用小瓷磚和真石漆做裝飾,經久耐臟,坡屋頂采用紅色琉璃瓦做裝飾,讓整棟別墅更具活力。大門的羅馬柱連接樓層,美觀大氣。一層下方墻體采用文化石裝飾,質地輕盈,與自然相融合,透著田園的氣息。
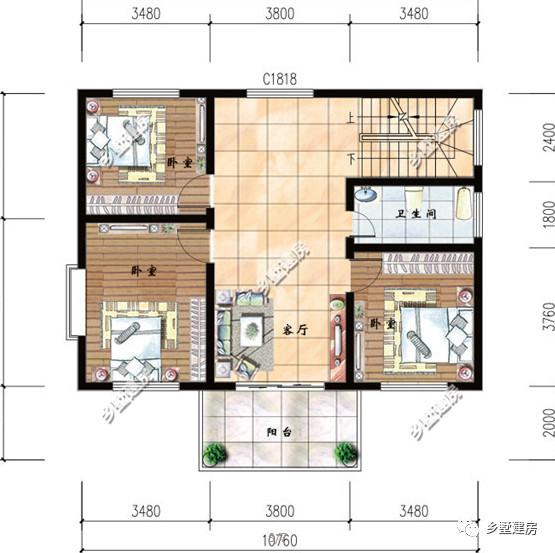
占地尺寸:10.76X7.96米;占地面積:90.2平方米;建筑面積:196.92平方米;結構類型:磚混結構;建筑層數:2層;
一層設有客廳,廚房,餐廳,衛生間,臥室。整個布局合理利用,客廳寬敞,可容納家人日常生活娛樂。
二層設有3間臥室,客廳,衛生間,陽臺。客廳面積寬敞相連著陽臺,方便采光及通風,臥室如果覺得多,也可以改為書房,方便學習和工作。
款式二 本款戶型為現代風格別墅,外墻采用米黃色和淡灰色做搭配,清新不俗,令人心曠神怡。坡屋頂采用英紅琉璃瓦做裝飾,突顯喜慶,挑高落地窗設計,便于采光通風,為別墅增姿添彩。
占地尺寸:12X11.1米;占地面積:125.03平方米;建筑面積:125.03平方米;結構類型:磚混結構;建筑層數:2層;
一層設有工具房,衛生間,廚房,餐廳,客廳,臥室。現在大部分家庭都有自己的私家車,單獨的工具房可以作為車庫使用,能夠保護愛車,方便生活。
二層設有3間臥室,書房,起居室,儲藏室,露臺。主臥與書房及儲藏室相連,方便生活起居,獨立的儲藏室也可以改成衣帽間使用。大露臺可以放些綠植茶幾,閑暇時可以在上面喝茶賞景,別有一番風味。
小編精心挑選的小戶型別墅,大家覺得如何? 圖紙之家-專注農村別墅/自建房設計18年,集合國內200余位經驗豐富的設計師,被評為口碑最好的農村建筑設計公司! |

帶堂屋二層小別墅設計圖紙帶外觀圖,13.6米x9米
占地:122.4平方米
適合農村自建四合院圖片,中式二層四合院別墅設計施工圖紙
占地:232平方米
135平復式別墅房屋設計圖,外觀時尚、漂亮
占地:135平方米
歐式兩層別墅設計圖及歐式效果圖,造價25萬左右
占地:150平方米
230平(單戶115平)雙拼別墅房屋設計圖及效果圖大全
占地:230平方米
好看又簡單的二層小樓設計圖,農村自建20萬元左右
占地:130平方米
130平米最新氣派農村四層樓房設計圖,四層樓房圖片
占地:130平方米
現代風格三層別墅設計圖紙和效果圖,農村自建精選
占地:129平方米
小戶型現代新農村三層房屋設計建筑圖及效果圖
占地:108平方米
帶商鋪挑高的三層別墅房屋設計圖,商鋪挑高,層高比較高
占地:118平方米
新款漂亮農村三層別墅建筑設計圖紙帶效果圖片,3種戶型
占地:125平方米
帶車庫的農村四合院別墅設計圖,富貴人家的象征,日子越過越興
占地:219.24平方米
歐式三層小洋樓設計圖,歐式最美三層別墅外觀效果圖
占地:124.28平方米
農村四間一層房屋設計圖,160平方米,用來養老正合適!
占地:160平方米
農村一層四開間自建別墅,美麗住宅如詩如畫里15米乘10米
占地:142平方米
二層門面房自建小樓設計圖紙及效果圖,占地150平
占地:151.83平方米
一層帶地下室雙拼別墅設計圖,理想鄉村生活的標配
占地:416平方米
簡約偏現代三層別墅設計圖紙及效果圖,鄉村蓋房推薦方案
占地:130平方米左右
仿古中式三合院設計圖紙,帶堂屋,適合農村自建
占地:173平方米
歐式三層農村別墅設計圖,占地130平方米自建房,低調又奢華鄉村
占地:129.8平方米
推薦:10套新農村自建房設計圖,2026年最新設計
閱讀次數:4825737次
100套鄉村別墅圖片大全,2026年最新設計
閱讀次數:2492203次
6款農村蓋一層平房的設計圖,10萬元就能建起來
閱讀次數:1852637次
這11個一層農村自建房別墅火爆了朋友圈!我最喜歡戶型十!你呢
閱讀次數:750268次
農村6萬元建一層小別墅圖,你敢相信嗎
閱讀次數:567686次
農村5萬塊就能自建房,6套普通房子設計圖分享,你沒看錯!
閱讀次數:419410次
8套農村漂亮三間平房圖片,非常適合在農村修建!
閱讀次數:411197次
農村自建房化糞池怎么做?附方案及施工過程
閱讀次數:391783次
農村一層三間平房設計圖,告別土氣養老房,讓人忍不住點贊
閱讀次數:350581次
新農村二層樓房圖片造價12萬,挑一套回家建房吧!
閱讀次數:349126次
