
|
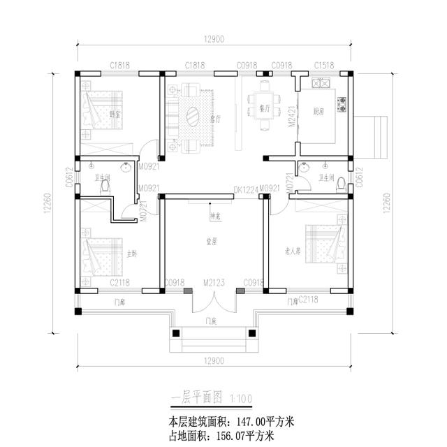
15萬建農村自建房屋小別墅設計圖紙一層平房歐式全套施工效果圖紙
開間12.9米、進深12.26米、建筑總高度7.28米,占地面積156平米,建筑面積147平米,一共三室兩廳,一廚兩衛,一堂屋 圖紙之家-專注農村別墅/自建房設計18年,集合國內200余位經驗豐富的設計師,被評為口碑最好的農村建筑設計公司! |

高端農村三層歐式房屋設計圖紙,帶車庫,帶露臺
占地:163平方米
大氣農村一層自建別墅方案,絕對讓人羨慕的“平房”
占地:158.39平方米
農村五開間大平層設計圖,主體15萬就能建。
占地:182.43平方米
2026最美三層別墅設計圖紙及效果圖,十佳最美農村別墅
占地:151平方米
農村四層樓房設計圖及外觀效果圖,造價60萬左右
占地:163.84平方米
一層半復式帶閣樓別墅設計圖,含外觀圖片
占地:150平方米
經濟實惠一層戶型圖,農村養老房舒適至上,簡約而不失溫馨
占地:147.5平方米
100平米兩間三層樓房設計圖,農村蓋房舒服實用最重要
占地:100平方米
小占地的農村別墅設計圖,占地僅72平米,參考造價不到15萬
占地:多戶型可選
農村4間3層樓房設計圖,帶車庫,挑空客廳,坡屋頂設計
占地:160平方米
全新農村簡歐風格三層房屋別墅效果圖,110和210兩個戶型,帶電梯
占地:多種戶型
農村三層半自建房子效果圖及設計圖,戶型占地90平方米左右
占地:92.17平方米
鄉村房屋改建三層房屋設計圖紙,農村樓房設計圖推薦
占地:90平方米
簡約現代的二層別墅自建房設計圖,13米乘9米
占地:124平方米
農村二層小洋樓設計圖,帶外觀效果圖,外觀新穎,漂亮
占地:130平方米
農村10萬自建一層平房設計圖,占地面積120平米
占地:120平方米
漂亮時尚二層樓房設計圖紙,經濟實用,戶型通透
占地:150平方米
農村自建房三間設計圖,花錢少效果好12米乘9米,經濟適用性價比
占地:108.9平方米
農村別墅220-240平米的雙拼自建房設計圖,屋頂帶老虎窗
占地:220平方米
面寬13米二層鄉村自建別墅戶型圖,帶堂屋和露臺
占地:135.47平方米
推薦:10套新農村自建房設計圖,2026年最新設計
閱讀次數:4825737次
100套鄉村別墅圖片大全,2026年最新設計
閱讀次數:2492203次
6款農村蓋一層平房的設計圖,10萬元就能建起來
閱讀次數:1852637次
這11個一層農村自建房別墅火爆了朋友圈!我最喜歡戶型十!你呢
閱讀次數:750268次
農村6萬元建一層小別墅圖,你敢相信嗎
閱讀次數:567686次
農村5萬塊就能自建房,6套普通房子設計圖分享,你沒看錯!
閱讀次數:419410次
8套農村漂亮三間平房圖片,非常適合在農村修建!
閱讀次數:411197次
農村自建房化糞池怎么做?附方案及施工過程
閱讀次數:391783次
農村一層三間平房設計圖,告別土氣養老房,讓人忍不住點贊
閱讀次數:350581次
新農村二層樓房圖片造價12萬,挑一套回家建房吧!
閱讀次數:349126次
