
|
俗話說,一千個讀者眼中有一千個哈姆雷特,這句話是說在面對同一件事的時候,每個人都有不同的看法。但是在中國,每每討論房屋這個話題,大家都是出奇的保持著一致,一定要有屬于自己的房子。城市的房價一直居高不減,我也很絕望啊,我能怎么辦,但毛主席說過:自己動手,豐衣足食。所以作為社會主義接班人,不如自己來建一棟別墅吧。 建成后的效果
設計圖紙
設計圖 平面圖
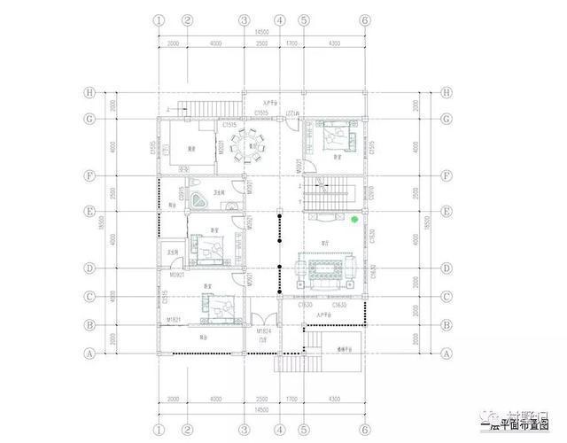
設計圖 一層設有廚房、餐廳、客廳、衛生間、臥室、陽臺。
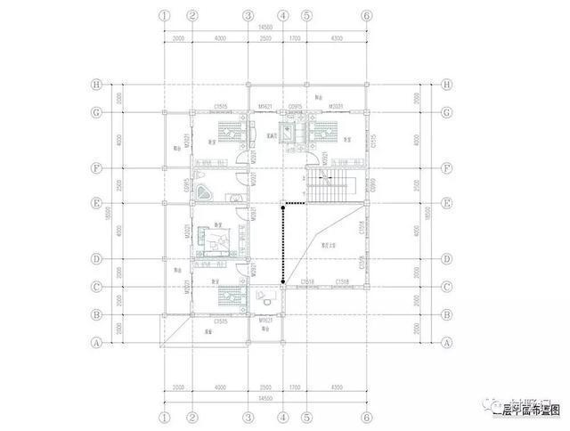
設計圖 二層設有臥室、家庭廳、陽臺、客廳上空、衛生間。
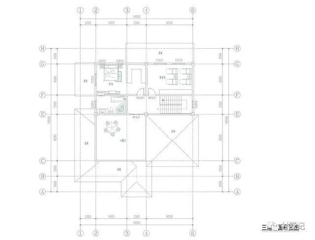
設計圖 三層設有臥室、大露臺、影音室。 實拍圖 施工實拍
裝修實拍
這個網友的別墅家具裝修主要以黑白色為主,耐臟實用,但顏色太單調了,看上去總覺得空落落的,要是能擺上幾個盆栽是不是會好點呢? 圖紙之家-專注農村別墅/自建房設計18年,集合國內200余位經驗豐富的設計師,被評為口碑最好的農村建筑設計公司! |

95平經濟適用三層農村小別墅設計圖,二開間推薦爆款戶型
占地:95.31平方米
一層農家雙拼自建房設計圖,左右對稱四平八穩
占地:219.05平方米
歐式三層雙拼別墅設計圖,精致大氣布局實用,兄弟建房上上之選
占地:234平方米
簡歐漂亮農村二層別墅設計方案圖紙,12米乘9米
占地:多戶型可選
三層帶車庫樓中樓建房別墅圖紙,占地130平米左右,戶型室內布局
占地:130平方米
150平米簡單大方的三層農村自建房設計圖,坡層頂,色彩鮮明,布
占地:150平方米
110平方米新農村二層別墅設計圖及效果圖,12.36x9.36米
占地:115平方米
歐式獨棟二層小別墅設計圖,客廳中空,占地126平米
占地:120平方米
170平方米農村二層小別墅設計圖及效果圖
占地:170平方米
農村實用三層樓房圖片,占地140平米左右,客廳中空
占地:140平方米
農村一層小別墅設計圖,經濟大氣,16米乘9米
占地:124.12平方米
小型四合院二層別墅設計圖方案,對稱設計,頂層大露臺
占地:114平方米
鄉下三層大氣房子設計圖,外觀挺高大上的,主體29萬多
占地:132.48平方米
一層半帶閣樓別墅設計圖,悠閑舒適,養老度假皆可
占地:161.94平方米
中國最美建筑四合院設計圖紙及效果圖,顏值爆棚
占地:152平方米左右
簡歐二層別墅設計圖紙含效果圖片,寶家鄉墅經典風格
占地:137.34平方米
三層新農村住宅房屋設計圖,溫馨美觀的戶型
占地:180平方米
140平中式徽派一層別墅設計圖,一層照樣建這樣漂亮
占地:140平方米
后面帶小院的農村房屋設計圖,適合鄉村自建
占地:300平方米
仿古中式四合院別墅設計戶型圖,外觀圖古典風格
占地:524平方米
推薦:10套新農村自建房設計圖,2026年最新設計
閱讀次數:4825737次
100套鄉村別墅圖片大全,2026年最新設計
閱讀次數:2492203次
6款農村蓋一層平房的設計圖,10萬元就能建起來
閱讀次數:1852637次
這11個一層農村自建房別墅火爆了朋友圈!我最喜歡戶型十!你呢
閱讀次數:750268次
農村6萬元建一層小別墅圖,你敢相信嗎
閱讀次數:567686次
農村5萬塊就能自建房,6套普通房子設計圖分享,你沒看錯!
閱讀次數:419410次
8套農村漂亮三間平房圖片,非常適合在農村修建!
閱讀次數:411197次
農村自建房化糞池怎么做?附方案及施工過程
閱讀次數:391783次
農村一層三間平房設計圖,告別土氣養老房,讓人忍不住點贊
閱讀次數:350581次
新農村二層樓房圖片造價12萬,挑一套回家建房吧!
閱讀次數:349126次
