
|
三層自建房在農村非常多,主要是因為弄很多家庭人口數量多,一二層不夠居住,四層空間又剩余,三層最合適,如果有多出來的房間還可以當客房,今天自建別墅網給大家分享2款主體造價約30萬二層別墅設計圖。 【戶型1】
戶型1效果圖 這款二層別墅設計圖開間進深12×8.5米,占地面積110平方米,主體造價30萬左右。建筑總面積284.9平米,房屋總高度11.2米,屋檐口高9.7米,磚混結構。層設有2廳1臥1衛,二層設有1廳2臥1衛,三層設有1臥1衛1露臺1儲藏間。 戶型1室內布局
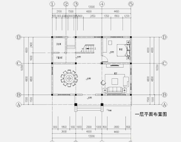
一層平面圖 一層:客廳(挑空)、餐廳、衛生間、臥室
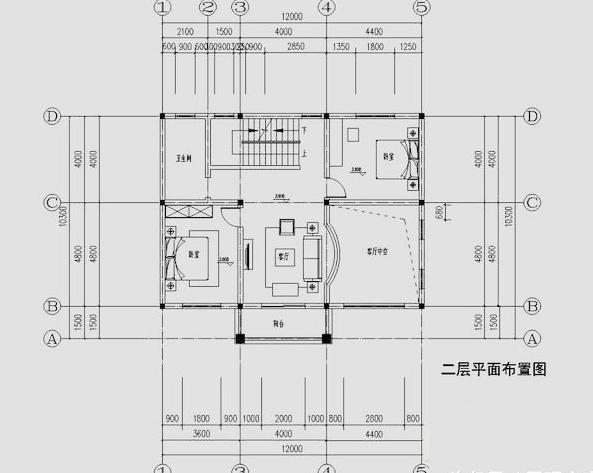
二層平面圖 二層:客廳(帶陽臺)、臥室、臥室、衛生間
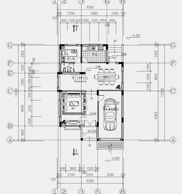
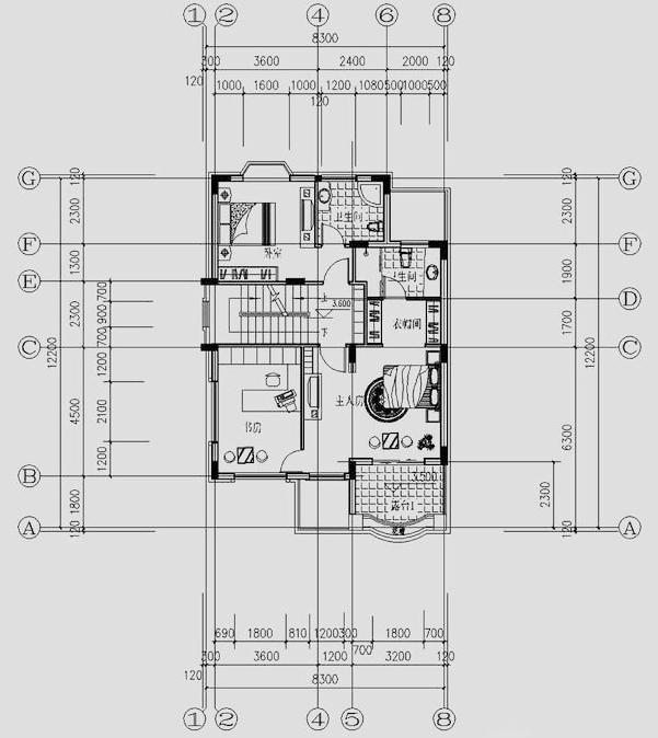
三層平面圖 三層:臥室、衛生間、露臺、儲藏間 【戶型2】 本套二層別墅設計圖開間進深8.3×12.2米,一層建筑面積90.7平方米,二層建筑面積82.1平方米,三層建筑面積65.2平方米,磚混結構,主體造價30萬左右。一層設有2廳1臥1衛1廚1車庫,二層設有2臥2衛1露臺1書房1衣帽間,三層設有2臥2衛1露臺1衣帽間。
效果圖 這款二層別墅設計圖一二層外墻采用棕黃色瓷磚裝飾,一層采用白色真石漆噴涂,灰色坡屋頂與平屋頂結合,活動空間充足,室內布局合理,有車庫,還有豪華主人臥房等功能,施工難度低。 戶型2室內布局
一層平面圖 一層:車庫、客廳、餐廳、廚房、老人房、衛生間
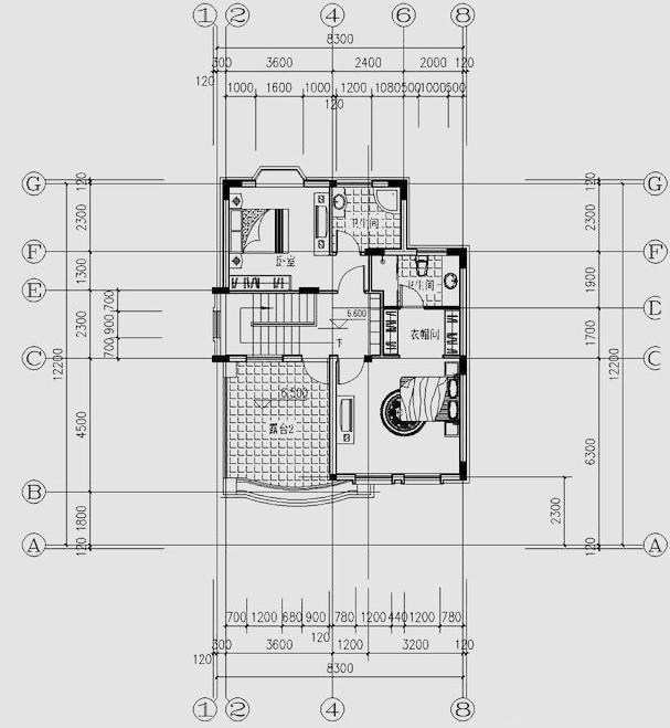
二層平面圖 二層:主人房(帶露臺、書房、衣帽間、衛生間)、臥室(帶衛生間)
三層平面圖 三層:臥室(帶衣帽間、衛生間)、臥室(帶衛生間)、露臺 圖紙之家-專注農村別墅/自建房設計18年,集合國內200余位經驗豐富的設計師,被評為口碑最好的農村建筑設計公司! |

時尚典雅歐式三層自建房設計圖,美觀大氣簡單舒適,好看到沒得
占地:153.12平方米
300平大戶型豪華三層別墅設計圖,帶總統套房
占地:300平方米
帶車庫的新中式風格一層別墅設計圖,鳥語花香回家建房
占地:184平方米
農村15萬元二層小樓設計圖,造價低,簡潔、好看
占地:90平方米
新中式農村三層四合院別墅設計圖,四合院風格的別墅圖
占地:177平方米
架空層設計的農村自建房別墅設計圖,既做車庫又做儲物間,太實
占地:230.62平方米
帶車庫帶露臺二層農村小別墅設計圖,宅基地大小適中,外觀造型
占地:180平方米
造價65萬左右的三層歐式別墅房屋設計施工CAD圖紙及效果圖
占地:178平方米
徽派120平新農村住宅設計方案,帶外觀效果圖
占地:120平方米
160平方米經典鄉村二層房屋設計圖紙
占地:160平方米
經濟實惠一層戶型圖,農村養老房舒適至上,簡約而不失溫馨
占地:147.5平方米
90平農村自建房二層新款,占地不大但很實用,
占地:88平方米
新農村三層樓房住宅設計方案,戶型圖、效果圖、全套施工圖
占地:180平方米
三層現代簡約農村雙拼小別墅圖,好看精致,開間17米
占地:187平方米
2026新款農村15萬元二層小樓圖,占地90平米左右
占地:多種戶型
2026最美三層別墅設計圖紙及效果圖,十佳最美農村別墅
占地:151平方米
旋轉樓梯挑空獨棟二層簡歐小別墅設計圖,大氣時尚
占地:189.26平方米
復式大客廳帶旋轉樓梯二層別墅設計圖,大廳很闊氣
占地:193平方米左右
鄉村三層別墅設計圖紙,帶屋頂花園(含效果圖)
占地:150平方米
古典韻味的四層房屋設計圖,占地140平米左右,這樣的外觀配上紅
占地:140平方米
推薦:10套新農村自建房設計圖,2026年最新設計
閱讀次數:4825737次
100套鄉村別墅圖片大全,2026年最新設計
閱讀次數:2492203次
6款農村蓋一層平房的設計圖,10萬元就能建起來
閱讀次數:1852637次
這11個一層農村自建房別墅火爆了朋友圈!我最喜歡戶型十!你呢
閱讀次數:750268次
農村6萬元建一層小別墅圖,你敢相信嗎
閱讀次數:567686次
農村5萬塊就能自建房,6套普通房子設計圖分享,你沒看錯!
閱讀次數:419410次
8套農村漂亮三間平房圖片,非常適合在農村修建!
閱讀次數:411197次
農村自建房化糞池怎么做?附方案及施工過程
閱讀次數:391783次
農村一層三間平房設計圖,告別土氣養老房,讓人忍不住點贊
閱讀次數:350581次
新農村二層樓房圖片造價12萬,挑一套回家建房吧!
閱讀次數:349126次
