
|
強推4款12開間的別墅設計,有2層,3層,還有4層的設計,你會中意那一套呢? 戶型一
樓層:兩層 開間:12米 進深:10.7米 占地面積:130.91平方米 建筑面積:317.81平方米 結構形式:磚混 建筑風格:歐式
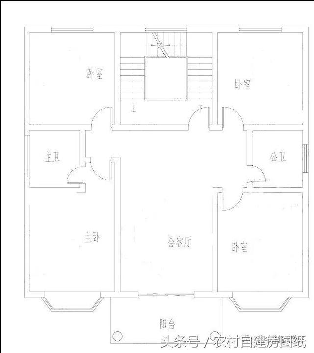
別墅外觀設計對稱工整,樸素不浮夸,客廳設計在正中并且設計了5個臥室,體現了房主的熱情好客,待人和善的為人,廚房帶有柴火灶,并配有上下2個帶私衛的主臥,可以根據需求將一樓主臥改成老人房,方便老人生活起居。 戶型二
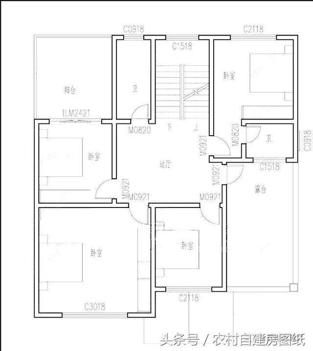
樓層:三層 開間:12米 進深:11.7米 占地面積:157.91平方米 建筑面積:389.11平方米 結構形式:框架 建筑風格:歐式
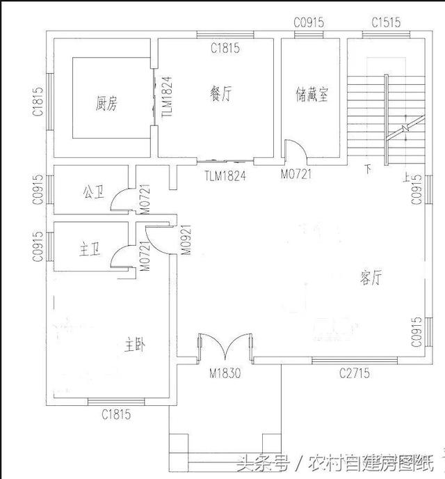
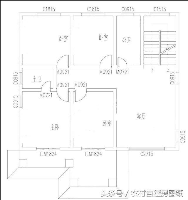
這是一款較為實用的別墅設計,帶有農村慣有的堂屋設計,可用于舉行家庭祭祀和重大禮儀活動,帶有與室內相連的車庫,大窗設計的客廳,同時提供客廳和餐廳的采光,由于是框架結構,所以具有可改性,廚房和臥室分開,做到干濕分離,一樓擁有帶私衛的臥室,可設計為老人房,二樓則有4個臥室,滿足平時生活和招待親友,擁有兩個方位不同的露臺,可進行晾曬或者改造成空中花園。 戶型三
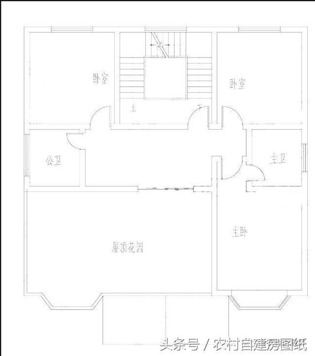
樓層:三層 開間:12米 進深:11.4米 占地面積:151.97平方米 建筑面積:430.97平方米 結構形式:磚混 建筑風格:歐式
這一款設計從外觀上,八面窗設計,增加采光的同時,使房屋更顯空間感,一層用傳統的紅磚,二層則用米黃色的墻色,兩相對比,更凸顯出層次感,花瓶護欄加上羅馬石柱點綴,以及屋檐上的花紋,盡顯美感,而在屋內的設計,是由方形中空式的樓梯設計,并且從中間,動靜分隔,廚房餐廳客廳的一線設計,整齊嚴謹,三樓又設計有屋頂花園,利用植物再增添其美感,華麗而又務實。 戶型四
樓層:四層 開間:12米 進深:11.6米 占地面積:144.18平方米 建筑面積:467.04平方米 結構形式:磚混 建筑風格:歐式
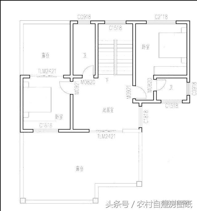
為了滿足一些人對于高樓的追求,這款四層別墅,擁有高貴的外形,復式客廳的設計,寬敞舒適,房間數量眾多,可用于任何日常起居,二樓擁有帶私衛以及獨立陽臺的主臥,充滿情趣和風味,屋頂的超大露臺,滿足閑暇時的玩樂和日常勞作。 圖紙之家-專注農村別墅/自建房設計18年,集合國內200余位經驗豐富的設計師,被評為口碑最好的農村建筑設計公司! |

新農村小洋樓三層別墅戶型設計圖,開間9米,造價25萬
占地:94平方米
農村新款二層中式別墅設計圖效果圖,帶堂屋設計
占地:144平方米
小開間三層新中式小別墅設計圖,外觀圖優雅大氣,讓人心動!
占地:103.18平方米
私人自建三層別墅設計圖紙帶效果圖,歐式風格、外觀大氣
占地:209.44平方米
2026戶型方正三層農村小別墅設計圖紙(含外觀圖片)
占地:150平方米
二層半大客廳復式別墅房屋設計圖,客廳寬闊明亮
占地:125平方米
簡歐復式四層別墅房屋設計圖,外觀圖高端、大氣
占地:143平方米
2026最好看的農村三層樓房圖片及施工圖紙,客廳寬敞
占地:120平方米
簡單質樸三層新農村小別墅設計圖紙,別墅圖片,戶型簡單合理實
占地:120平方米
農村30萬別墅款式三層設計圖紙,帶地下儲藏室,挑空客廳
占地:110平方米
七字型一層平房別墅設計圖紙,15X16米
占地:177.9平方米
五間二層別墅設計圖紙,樓梯設計的無比大氣
占地:300平方米
農家中式小院一層三合院自建房,布局寬敞大氣又舒適
占地:186.07平方米
180平方米漂亮大氣三層雙拼別墅設計圖,自建房圖片
占地:186平方米
115平漂亮的三層別墅設計方案,外觀圖片大氣、精致
占地:115平方米
鄉下二層樓房住宅設計圖紙及效果圖,農村二層小洋樓
占地:140平方米
兄弟三層雙拼房屋設計圖,帶效果圖,戶型好
占地:256平方米
210平米新農村自建二層施工圖紙,預留電梯位,美觀大氣舒適實用
占地:208.5平方米
帶車庫徽派風格三層別墅房屋設計圖,新農村住宅設計推薦
占地:140平方米
人字坡房屋一層別墅設計圖,簡約低調超實用,、
占地:101.17平方米
推薦:10套新農村自建房設計圖,2026年最新設計
閱讀次數:4825737次
100套鄉村別墅圖片大全,2026年最新設計
閱讀次數:2492203次
6款農村蓋一層平房的設計圖,10萬元就能建起來
閱讀次數:1852637次
這11個一層農村自建房別墅火爆了朋友圈!我最喜歡戶型十!你呢
閱讀次數:750268次
農村6萬元建一層小別墅圖,你敢相信嗎
閱讀次數:567686次
農村5萬塊就能自建房,6套普通房子設計圖分享,你沒看錯!
閱讀次數:419410次
8套農村漂亮三間平房圖片,非常適合在農村修建!
閱讀次數:411197次
農村自建房化糞池怎么做?附方案及施工過程
閱讀次數:391783次
農村一層三間平房設計圖,告別土氣養老房,讓人忍不住點贊
閱讀次數:350581次
新農村二層樓房圖片造價12萬,挑一套回家建房吧!
閱讀次數:349126次
