
|
這款三層自建房外觀簡約大方,共設有2廳6臥,空間設計合理,廚房獨立設計,潔污分區,二三層均設有大露臺,活動空間充足,前后多窗戶設計,室內采光通透。施工難度不高,主體造價25萬左右。
效果圖 圖紙詳情 層數: 三層 結構形式: 磚混結構 主體造價:25萬 開間: 8.5米 進深: 12.9米 占地面積: 103平方米 總建筑面積: 226平方米 設計功能
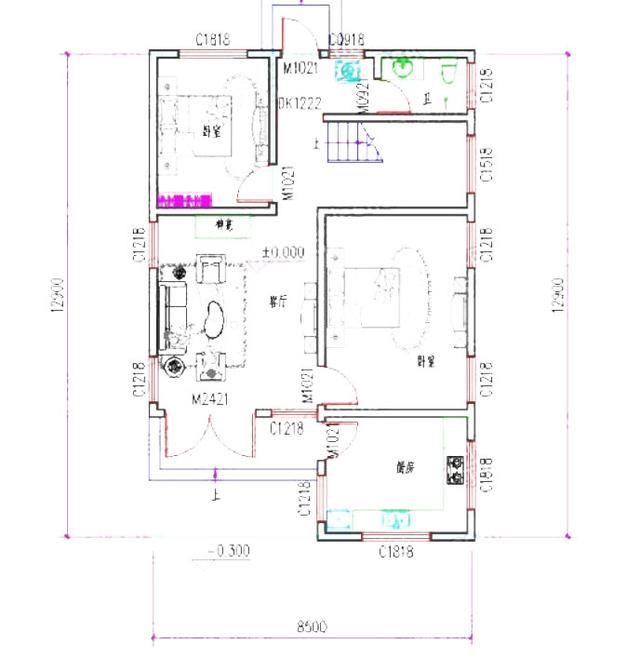
一層平面圖 一 層: 客廳(農村與餐廳共用)、廚房、主臥室、次臥室、衛生間 客廳處可以擺放神龕,符合農村風俗習慣。 廚房單獨入門,與室內分隔,臟凈分區。 主臥室空間比次臥寬敞,給老人居住更舒適。 設有后門,方便入后院,同時能增加室內空氣流通。
二層平面圖 二 層:休息廳、主臥室帶露臺、次臥室帶陽臺、客臥、衛生間 本層共設有3間臥室,南面的臥室均是套間,一間帶露臺,一間帶陽臺,休息廳提供日常交流空間。
三層平面圖 三 層: 臥室、陽臺、大露臺 三層設有一間臥室,南面有大露臺,北面有陽臺,采光透風,大露臺可以做空中花園,也是農家晾曬的好地方。 圖紙之家-專注農村別墅/自建房設計18年,集合國內200余位經驗豐富的設計師,被評為口碑最好的農村建筑設計公司! |

2026最好看的農村三層樓房圖片及施工圖紙,客廳寬敞
占地:120平方米
20萬農村一層半小洋樓圖,自建別墅設計方案推薦
占地:155平方米
人氣頗高的三層新中式別墅方案,五種戶型,五種尺寸
占地:120-165平方米
歐式三層豪宅樓設計圖紙及外觀效果圖,占地180平左右
占地:177.82平方米
2026年獨棟三層雙拼別墅戶型圖,總占地面積300平方米左右
占地:300平方米
農村帶地下室二層半自建房屋設計圖,樓中樓設計,歐式風格
占地:140平方米
歐式復式型三層別墅施工設計圖紙及效果圖大全
占地:164平方米
漂亮的農村三層小樓房設計圖,簡單大氣,帶車庫
占地:150平方米
農村兄弟倆雙拼別墅房屋設計圖,外觀質樸
占地:195平方米
三間三層樓房設計圖紙,復試的設計,漂亮的一塌糊涂
占地:175平方米
占地120平米清新脫俗簡單二層別墅設計方案,含效果圖
占地:119.01平方米
三層新農村自建房屋設計圖紙,占地120平米左右
占地:120平方米
農村三層樓房設計圖及圖片,客廳挑空,優化室內采光
占地:140平方米
三層小別墅40萬造價,大氣農村三層新中式自建房設計圖紙
占地:171.656平方米
新款現代一層小別墅設計圖,農村自建平房推薦戶型
占地:多戶型可選
鄉下建房一層平房設計圖紙及戶型圖,占地150平米左右
占地:150平方米
120平方房子設計圖帶效果圖,農村自建房戶型推薦
占地:120平方米
小宅基地自建房設計圖,占地不到90平三層別墅圖紙
占地:87平方米左右
160平方米三層帶大露臺的復式別墅設計圖紙
占地:155平方米
私人自建三層別墅設計圖紙帶效果圖,歐式風格、外觀大氣
占地:209.44平方米
推薦:10套新農村自建房設計圖,2026年最新設計
閱讀次數:4825737次
100套鄉村別墅圖片大全,2026年最新設計
閱讀次數:2492203次
6款農村蓋一層平房的設計圖,10萬元就能建起來
閱讀次數:1852637次
這11個一層農村自建房別墅火爆了朋友圈!我最喜歡戶型十!你呢
閱讀次數:750268次
農村6萬元建一層小別墅圖,你敢相信嗎
閱讀次數:567686次
農村5萬塊就能自建房,6套普通房子設計圖分享,你沒看錯!
閱讀次數:419410次
8套農村漂亮三間平房圖片,非常適合在農村修建!
閱讀次數:411197次
農村自建房化糞池怎么做?附方案及施工過程
閱讀次數:391783次
農村一層三間平房設計圖,告別土氣養老房,讓人忍不住點贊
閱讀次數:350581次
新農村二層樓房圖片造價12萬,挑一套回家建房吧!
閱讀次數:349126次
