
|
本套農村自建房設計圖開間進深10.8×10.8米,采用磚混結構,主體造價35萬。一層設有2廳3臥1廚2衛,二層設有1廳3臥2衛1陽臺1露臺,三層設有3臥1露臺2衛。
效果圖 戶型點評:該戶型采用歐式設計風格,簡潔大氣的外觀給人一種爽朗明快的感覺,外墻色彩采用淺色處理,搭配灰色坡屋頂,低調中不失奢華,多陽臺多露臺設計提供多個活動空間,超大拱形窗為室內增加采光,護欄采用鐵藝欄桿,安全穩定又美觀。室內布局經過合理優化,充分考慮住戶的居住舒適度而設計。 二三層設有主臥套間,均帶有陽臺,還有露臺設計,有了晾曬之處,擺上一兩桌椅,午后閑時飲茶看書,聽音樂,度過休閑曼妙時光,舒適愜意。 建筑平面圖展示
一層平面圖 一層功能布局:客廳、主臥(帶衛生間)、次臥、餐廳、廚房、公衛 一層進門是客廳,采用中空設計,還有落地窗戶裝點,采光效果極佳。主臥室帶有獨立衛生間,布置在東南面,適合家里的老人居住,老人腿腳不便,住二樓自然不太好。東北角還有一間臥室,做客房和兒童房均可。廚房餐廳均設在北面,兩者相鄰,使用起來更方便。
二層平面圖 二層功能布局:客廳上空、會客廳(帶露臺)、主臥(帶主衛、陽臺)、次臥*2、公衛 會客廳帶有小露臺,為室內增加采光,拓展小客廳的空間。 主臥室帶有主衛和陽臺并設在南面,次臥均設在北面,公衛在2次臥之間,方便使用。
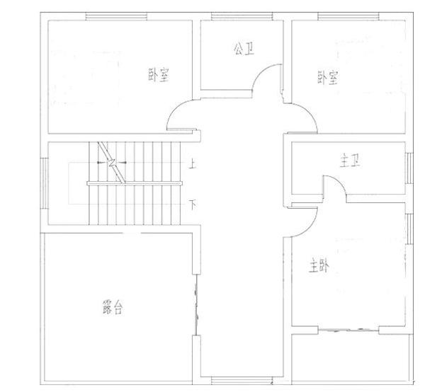
三層平面圖 三層功能布局:主臥(帶主衛)、次臥×2、露臺、公衛 本層共設有3間臥室,布局與二層相同,不同的是本層設有大露臺,為住戶提供晾曬和賞景的地方。 圖紙之家-專注農村別墅/自建房設計18年,集合國內200余位經驗豐富的設計師,被評為口碑最好的農村建筑設計公司! |

平屋頂二層自建房帶商鋪別墅設計圖紙及外觀圖
占地:225平方米
面寬20多米二層新中式雙拼別墅設計圖,外觀漂亮時尚
占地:246.66平方米左
12x10米帶閣樓的農村一層半別墅設計圖,外觀洋氣
占地:110.54平方米
面寬20米四開間二層別墅,火爆全村的戶型,美好生活的起點
占地:245.73平方米
帶車庫的別墅設計圖紙,外觀效果圖二層半設計,全套建筑施工圖
占地:174平方米左右
農村五間房子設計圖,大戶型別墅設計圖推薦
占地:240平方米
歐式三層雙拼別墅設計圖,精致大氣布局實用,兄弟建房上上之選
占地:234平方米
平頂三層別墅設計方案,簡潔舒適大氣通透,12乘9米,打造理想住
占地:98.21平方米
新農村實用三層帶露臺房屋設計圖紙,占地110平方米
占地:109平方米
農村三合院設計圖及效果圖,自建三合院圖紙
占地:470平方米
12.8x10米二層自建房別墅設計圖,大氣美觀實用,建造無憂
占地:128平方米
帶電梯農村建房三層小洋樓,樓中樓結構,帶露臺
占地:110平方米
帶地下室三層新農村房屋設計圖紙,外觀效果大氣
占地:220平方米
普通農村二層房子設計圖 ,復式結構,帶車庫,占地160平米左右
占地:160平方米
異形宅基地二層農村別墅設計圖,現代風時尚又大氣
占地:242.03平方米
130平左右三層樓房設計圖,新農村住宅自建推薦
占地:128平方米
農村四層雙拼別墅房屋設計圖,造型現代、大氣
占地:220平方米
120平方米帶地下室三層復式別墅戶型圖,現代風格
占地:120.78平方米左
二層歐式小別墅設計方案,全套建筑設計圖紙+外觀效果圖
占地:146平方米
時尚創意型二層小別墅設計圖,占地面積110平方米,外觀清新典雅
占地:110平方米
推薦:10套新農村自建房設計圖,2026年最新設計
閱讀次數:4825737次
100套鄉村別墅圖片大全,2026年最新設計
閱讀次數:2492203次
6款農村蓋一層平房的設計圖,10萬元就能建起來
閱讀次數:1852637次
這11個一層農村自建房別墅火爆了朋友圈!我最喜歡戶型十!你呢
閱讀次數:750268次
農村6萬元建一層小別墅圖,你敢相信嗎
閱讀次數:567686次
農村5萬塊就能自建房,6套普通房子設計圖分享,你沒看錯!
閱讀次數:419410次
8套農村漂亮三間平房圖片,非常適合在農村修建!
閱讀次數:411197次
農村自建房化糞池怎么做?附方案及施工過程
閱讀次數:391783次
農村一層三間平房設計圖,告別土氣養老房,讓人忍不住點贊
閱讀次數:350581次
新農村二層樓房圖片造價12萬,挑一套回家建房吧!
閱讀次數:349126次
