
|
現在農村建房樣式是越來越多,其中門臉使用羅馬柱的,在最近這幾年也不知是怎么就越來越多了,究其原因那就是很多人都覺得,門臉使用羅馬柱更加大氣,更加美觀,更好看。這也可能是農村房屋樣式設計本來就少,看到別人家搞了羅馬柱,看起來還不錯,那我也沒有更好的設計,那就也來個這樣的,反正也不會覺得丑是吧,既然沒有什么好的選擇為什么不選擇。 想要自建精致的小洋房,柱子造型、色彩一定要和別墅造型風格搭配。而且不一定要羅馬柱,簡單的方柱設計得當,也并不比羅馬柱效果差!反過來說,羅馬柱沒設計好,建出來也只是一棟普通的農村自建房!總之就是,設計很重要! 下面小編就分享2款農村別墅設計圖紙,一款帶有羅馬柱,其中一款沒有,大家更喜歡哪款? 第一套:帶羅馬柱現代歐式精美的四層別墅外觀效果圖
本戶型是大面積的住房建筑,外觀上豪華時尚,色彩分明,空間開闊,利用率高,左右對稱,房屋左右兩邊都有大落地窗,坐在茶室內和客廳內都可以將外面的景色一覽無遺,陽臺可以休閑娛樂,是一個理想的別墅建筑。 別墅詳情 層數:四層 結構形式:框架結構 主體造價:80-100萬 開間:20.2 米 進深:17.8米 占地面積:261.8平方米 建筑面積:846平方米 功能設計布局圖:
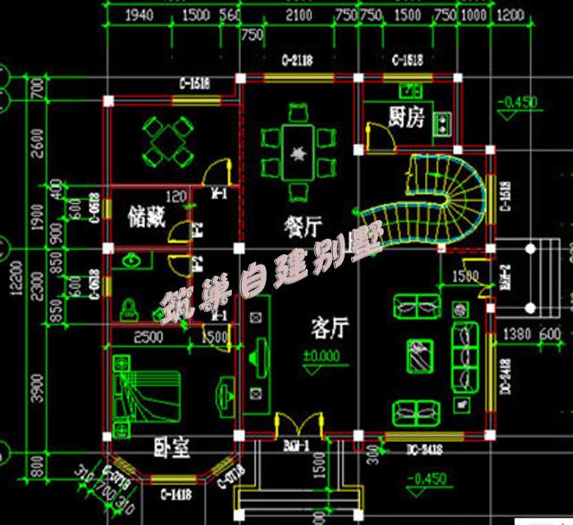
一層平面圖 一層:門廊、大廳、會客廳、茶室、廚房、餐廳、儲藏室、保姆房、公共衛生間。
二層平面圖 二層:大廳上空、會客廳上空、休閑廳、二間臥室(帶更衣室及內衛)。
三層平面圖 三層:二間臥室(帶陽臺、更衣室及內衛)、二間臥室(帶更衣室及內衛)、二間書房(帶陽臺)。 四層:臥室(帶更衣室及內衛)、洗衣房/儲藏間、娛樂室/健身房、露臺。 第二套:不帶羅馬柱歐式二層框架結構別墅設計
本戶型為歐式風格,簡約大方,紫色外墻,唯美浪漫,配備棋牌室,南面及北面設有大門,采光透氣佳,方便出行,居住舒適。 房屋介紹 層數: 二層 結構形式: 框架結構 主體造價: 20-25萬 開間: 11.6米 進深: 11.4米 占地面積: 134平方米 建筑面積: 268平方米 平面圖:
一層平面圖 一層:客廳、餐廳、廚房、臥室、衛生間、儲藏室、茶餐廳(棋牌室);
二層平面圖 二層:起居室(小客廳)、主臥(帶衛生間)、衛生間、洗衣房、臥室、書房、露臺; 圖紙之家-專注農村別墅/自建房設計18年,集合國內200余位經驗豐富的設計師,被評為口碑最好的農村建筑設計公司! |

一層農村自建房別墅設計圖,簡潔時尚的設計,給父母建養老房
占地:144平方米
12x12農村三層別墅設計圖,自建房屋推薦戶型
占地:148平方米
130平方米歐式實用農村二層樓別墅圖紙帶外觀圖12X13米
占地:132平方米
兩層半20多萬復式農村自建房設計圖,經典不過時戶型
占地:120平方米
適合回鄉建的三合院平房設計圖,舒適又接地氣
占地:213.96平方米
95平米二層別墅必蓋戶型圖,造型洋氣,布局接地氣,趕緊回村建
占地:95.38平方米
回老家蓋房就選這款新中式一層設計,16乘8米大小正合適
占地:130.1平方米
二層農村自建四合院設計圖,中式外觀古樸有質感200-300平方米
占地:270平方米左右
開間14米!農村養老一層別墅神戶型,爸媽住得安心,施工隊狂贊太
占地:160.86平方米
三層現代平頂別墅設計圖,簡約時尚百看不厭,外觀令人驚艷!
占地:125.142平方米
好看又簡單的二層小樓設計圖,農村自建20萬元左右
占地:130平方米
簡單農村二層平屋頂房屋設計圖,外觀簡潔、大方
占地:200平方米
110平農村二層房屋設計圖,戶型特別接地氣,造價經濟還實用
占地:110.05平方米
別致漂亮二層別墅設計圖紙,占地160平米左右,精致的外觀,讓人
占地:160平方米
100平新農村三層復式房屋別墅設計圖紙,造價30萬左右
占地:106平方米
110平預算20萬內三層別墅設計圖,含效果圖
占地:110平方米
農村10萬自建一層平房設計圖,占地面積120平米
占地:120平方米
160平方米經典鄉村二層房屋設計圖紙
占地:160平方米
農村三層半自建房子效果圖及設計圖,戶型占地90平方米左右
占地:92.17平方米
地中海風格二層別墅設計圖及效果圖,外觀有格調
占地:125平方米
推薦:10套新農村自建房設計圖,2026年最新設計
閱讀次數:4825737次
100套鄉村別墅圖片大全,2026年最新設計
閱讀次數:2492203次
6款農村蓋一層平房的設計圖,10萬元就能建起來
閱讀次數:1852637次
這11個一層農村自建房別墅火爆了朋友圈!我最喜歡戶型十!你呢
閱讀次數:750268次
農村6萬元建一層小別墅圖,你敢相信嗎
閱讀次數:567686次
農村5萬塊就能自建房,6套普通房子設計圖分享,你沒看錯!
閱讀次數:419410次
8套農村漂亮三間平房圖片,非常適合在農村修建!
閱讀次數:411197次
農村自建房化糞池怎么做?附方案及施工過程
閱讀次數:391783次
農村一層三間平房設計圖,告別土氣養老房,讓人忍不住點贊
閱讀次數:350581次
新農村二層樓房圖片造價12萬,挑一套回家建房吧!
閱讀次數:349126次
