
|
現在回農村自建房的人越來越多,已經與城市買房的大軍不相上下,那么,為什么這么多的人放棄在城里買房而是選擇在農村自建房呢?首先最重要的原因自然是因為城市的房價太貴,農民辛苦半輩子的積蓄只夠一個首付,還要被后續高額的房貸壓迫幾十年,其次應該就是近些年農村的發展了,正式因為農村的高速發展才讓農村的土地變得火熱,也讓更多的人愿意回村建房,但農村建房不像城市購房那樣簡單,需要從零開始,所以,農村的房子建什么風格就成為每個人都在思考的問題,而最適合農村的,小編這里有套簡歐風格別墅與大家分享一下。。
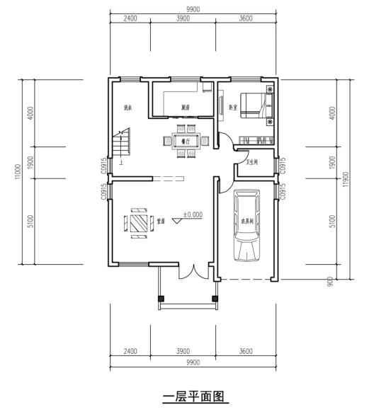
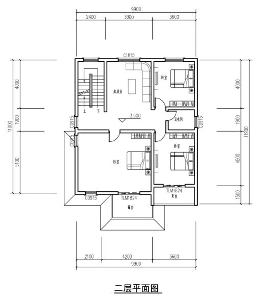
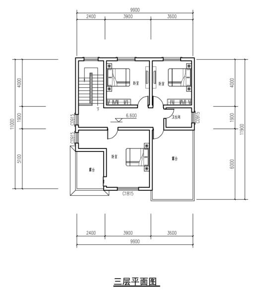
本方案為預算20萬左右農村三層別墅設計方案,含效果圖,帶車庫,帶屋頂花園,面積適中,戶型合理,功能齊全,新農村自建推薦戶型。注意:本方案經過最新優化,結構更合理, 建筑占地面積:9.9m*11.9m=118平方米; 建筑面積:306平方米 建筑層數:三層; 造價預算:20萬左右 建筑高度:9.6米(不含屋頂)坡屋頂;
設計功能: 一層:堂屋(客廳)、餐廳、廚房、衛生間、臥室、車庫、洗衣房(可做儲藏間); 二層:起居室(客廳)、臥室x3、衛生間、露臺、陽臺; 三層:主臥(帶露臺帶衣帽間)、臥室x2、衛生間、露臺;
立面圖:
圖紙之家-專注農村別墅/自建房設計18年,集合國內200余位經驗豐富的設計師,被評為口碑最好的農村建筑設計公司! |

120平二層別墅房屋設計圖,造型美觀、現代
占地:120平方米
四層復式別墅設計方案,外觀氣派布局實用,舒適宜居美極了!
占地:204.64平方米
農村120平方房子設計圖,三層房屋設計圖精選
占地:120平方米
歐式獨棟二層小別墅設計圖,客廳中空,占地126平米
占地:120平方米
經典實用的新農村三層房屋設計圖紙,推薦自建使用
占地:165平方米
別致美觀的簡歐二層別墅房屋設計圖,含外觀效果圖
占地:145平方米
14×12米二層自建房蓋別墅設計圖,簡單對稱也很漂亮
占地:157.868平方米
2026新款農村15萬元二層小樓圖,占地90平米左右
占地:多種戶型
農村三層四合院別墅設計圖紙,自建房建這棟面子十足
占地:227.49平方米
省錢美觀一層自建房子設計圖,父母養老住很適合
占地:117平方米
100平方米二層中式小別墅設計圖紙級效果圖片
占地:99平方米
120平方米新農村四層別墅設計圖紙12X10米50萬以內
占地:120平方米
農村一層養老別墅設計圖,14.8x17.9米,戶型對稱,實用布局
占地:193平方米
農村四間二層半雙拼樓設計圖,住三帶人都沒有問題!
占地:270平方米
農村簡單雙拼小戶型,總面積190平方米,合理的利用了每一個空間
占地:190平方米
20萬農村自建三層別墅設計圖,外觀美觀,戶型實用
占地:105平方米
帶車庫的一層雙拼別墅設計方案,出入方便保安全,大氣優雅還長
占地:179.7平方米
新農村兩層半小洋樓房設計圖,預算33萬左右
占地:多種戶型
農村兩間兩層樓房設計圖,造價15萬左右,獨立的廚房設計,干凈
占地:95平方米
二層新農村自建房設計圖,帶外觀效果圖
占地:140平方米
推薦:10套新農村自建房設計圖,2026年最新設計
閱讀次數:4825737次
100套鄉村別墅圖片大全,2026年最新設計
閱讀次數:2492203次
6款農村蓋一層平房的設計圖,10萬元就能建起來
閱讀次數:1852637次
這11個一層農村自建房別墅火爆了朋友圈!我最喜歡戶型十!你呢
閱讀次數:750268次
農村6萬元建一層小別墅圖,你敢相信嗎
閱讀次數:567686次
農村5萬塊就能自建房,6套普通房子設計圖分享,你沒看錯!
閱讀次數:419410次
8套農村漂亮三間平房圖片,非常適合在農村修建!
閱讀次數:411197次
農村自建房化糞池怎么做?附方案及施工過程
閱讀次數:391783次
農村一層三間平房設計圖,告別土氣養老房,讓人忍不住點贊
閱讀次數:350581次
新農村二層樓房圖片造價12萬,挑一套回家建房吧!
閱讀次數:349126次
