
|
這是一款占地面積較大的三層農村別墅設計圖紙,功能齊全,擁有多個臥室套房,還有活動室、桑拿房、大客廳等,外墻均采用淡黃色墻磚裝飾,搭配純白色窗套、門柱、欄桿、線腳等,屋頂寶藍色,對稱設計,屋頂的老虎窗精巧美觀,外立面時尚大氣,富有特色。
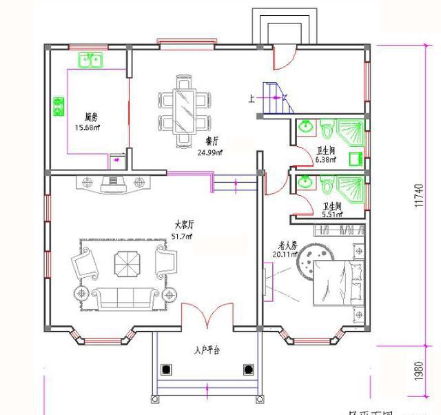
本套農村別墅設計圖紙開間進深12.74米×11.74米,占地面積156㎡,建筑面積455㎡,采用磚混結構,主體造價43萬左右,一層設有2廳1臥2衛,二層設有1廳3臥2衛1陽臺1桑拿房1更衣室,三層設有1廳1衛1儲藏室。 建筑平面圖展示
一層:大客廳51.7㎡、老人房20.11㎡(衛生間5.51㎡)、餐廳24.99㎡、廚房15.68㎡、衛生間6.38㎡
二層:客廳25.01㎡(帶陽臺)、主臥26.69㎡(帶更衣室8.64㎡、主衛7.04㎡)、臥室18.13㎡、臥室20.11㎡(帶桑拿房5.51㎡)、衛生間6.38㎡
三層:活動室50.63㎡、儲藏室25.62㎡、衛生間6.38㎡ 圖紙之家-專注農村別墅/自建房設計18年,集合國內200余位經驗豐富的設計師,被評為口碑最好的農村建筑設計公司! |

新農村兩層樓房設計圖,占地110平米,戶型簡單實用
占地:110平方米
農村一層平房設計圖及效果圖,一層房屋設計方案推薦
占地:270平方米
三層兩開間小面寬別墅設計圖紙帶外觀效果圖,95平方米
占地:94.61平方米
獨棟二層別墅cad設計圖紙,平屋頂自建別墅方案精選
占地:190平方米
爆款二層自建房別墅設計圖,不追求奢華,建個溫馨實用的家
占地:100平方米
簡歐風格二層別墅設計圖,經典不過時大氣時尚,漂亮的不像話!
占地:205.68平方米
農村現代三層建房子設計圖及圖片,平屋頂的設計
占地:150平方米
鄉村房屋改建三層房屋設計圖紙,農村樓房設計圖推薦
占地:90平方米
面寬13米三層新中式獨棟別墅設計圖,復式自建房戶型方案
占地:201.25平方米
小戶型二層四合院別墅設計圖,含外觀效果圖,小宅基地選擇
占地:134平方米
150平方米農村二層磚混結構別墅施工建筑設計圖,平頂設計
占地:150平方米
農村二層中式三合院設計圖,這才是國人該建的房子
占地:175.58平方米
占地200平米時尚現代三層農村別墅設計圖,簡簡單單百看不厭
占地:202.95平方米
一層時尚農村自建別墅方案,低至10萬的造價,適合住家養老
占地:131.04平方米
300平大戶型豪華三層別墅設計圖,帶總統套房
占地:300平方米
155平方米二層別墅房屋設計圖,帶獨立車庫
占地:155平方米
二層農村小別墅自建房設計圖,布局實用,占地150平
占地:149.05平方米
農村最好看18萬左右兩層小樓圖,外觀、造型簡潔大方
占地:120平方米
簡歐二層別墅設計圖紙含效果圖片,寶家鄉墅經典風格
占地:137.34平方米
美式風格鄉村兩層小別墅自建房設計圖,外觀圖好看
占地:150平方米
推薦:10套新農村自建房設計圖,2026年最新設計
閱讀次數:4825737次
100套鄉村別墅圖片大全,2026年最新設計
閱讀次數:2492203次
6款農村蓋一層平房的設計圖,10萬元就能建起來
閱讀次數:1852637次
這11個一層農村自建房別墅火爆了朋友圈!我最喜歡戶型十!你呢
閱讀次數:750268次
農村6萬元建一層小別墅圖,你敢相信嗎
閱讀次數:567686次
農村5萬塊就能自建房,6套普通房子設計圖分享,你沒看錯!
閱讀次數:419410次
8套農村漂亮三間平房圖片,非常適合在農村修建!
閱讀次數:411197次
農村自建房化糞池怎么做?附方案及施工過程
閱讀次數:391783次
農村一層三間平房設計圖,告別土氣養老房,讓人忍不住點贊
閱讀次數:350581次
新農村二層樓房圖片造價12萬,挑一套回家建房吧!
閱讀次數:349126次
