
|
雖然每個人的審美標準都不一樣,但是大眾的審美觀還是比較相近的,就像是看美女,大多數人都覺得這個人長得好看,那么她就會被貼上美女的標簽;如果大家都說你家里的別墅蓋得漂亮,那肯定不是在奉承,是發自內心的覺得漂亮。
今天農村小別墅推薦的這套簡歐式風格的三層農村別墅,有人建好后,收獲來自全村的羨慕和贊揚:
農村別墅基本信息 ? 占地尺寸:開間:13.5米,進深:12.27米 ? 占地面積: 144.32㎡ ? 建筑面積:405.21㎡ ? 建筑結構:框架結構 ? 造價估算:35-45萬
本套圖紙有施工圖和效果圖,包打印(效果圖為彩圖,施工圖為A3大圖)
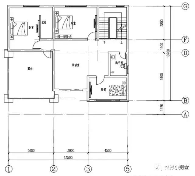
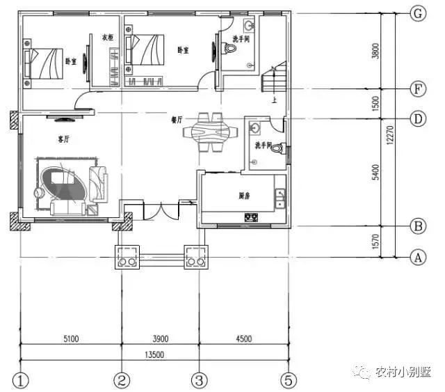
一層平面圖:客廳中空設計,寬敞又亮堂,入戶是個小堂屋,對于有些地區保留建堂屋習慣的,這個戶型照樣可用,老人房帶獨立衛生間。
二層平面圖:三個臥室設計,還有一個小間的臥室,如果家里人口不是很多,這個小臥室就做成棋牌室、茶室、書房或者衣帽間等等。
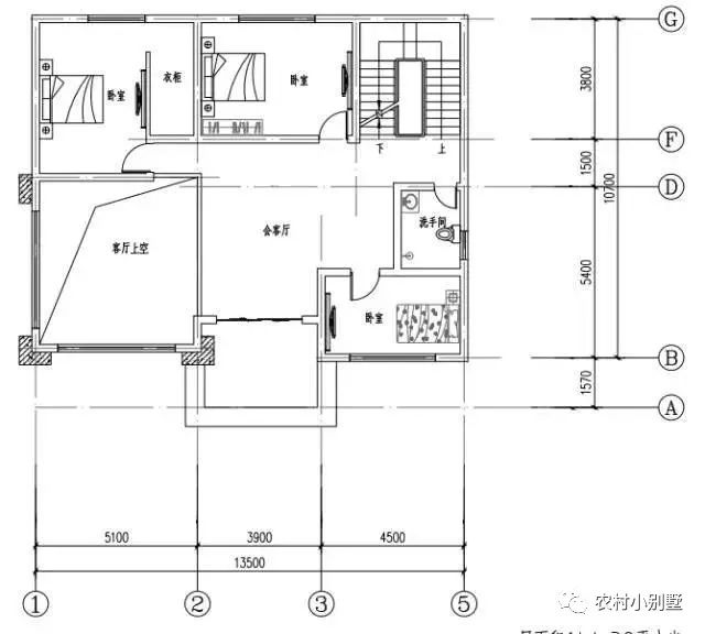
三層平面圖:站在露臺上眺望遠處,看看村里的風光,搭個葡萄架子,待葡萄藤爬滿葡萄架就可以在下面喝茶、看風景。
有很多人擔心農村師傅施工水平,建不出這樣的效果,這個完全不用擔心,只要看懂圖紙,就可施工,標的這么詳細,除非是完全沒有經驗又不識字的,那就沒轍了。 圖紙之家-專注農村別墅/自建房設計18年,集合國內200余位經驗豐富的設計師,被評為口碑最好的農村建筑設計公司! |

小型新中式二層小別墅圖紙設計方案,好看造價不高
占地:232.98平方米
140平中式徽派一層別墅設計圖,一層照樣建這樣漂亮
占地:140平方米
農村三層中式仿古別墅設計圖紙,中國風自建房戶型
占地:158.64平方米
面寬10米左右的三層農村別墅設計案例,低調又奢華
占地:120平方米
徽派120平新農村住宅設計方案,帶外觀效果圖
占地:120平方米
帶閣樓兩層半雙拼別墅房屋設計圖,帶外觀效果圖
占地:240平方米
新農村兄弟合建三層雙拼房屋設計方案圖,開間18米有全套圖紙
占地:237.21平方米
高端大氣的三層新中式合院別墅設計圖紙及外觀效果圖
占地:203.4平方米
挑空客廳戶型歐式二層別墅設計圖紙,高端大氣帶車庫
占地:236.09平方米
農村二層樓房設計圖紙,含全套設計方案(施工圖+效果圖)
占地:98平方米
L“型”一層自建房小平層設計圖紙,180平方米
占地:179.355平方米
帶車庫二層農村豪華別墅設計圖,主體25萬左右
占地:170平方米左右
帶配房的農村三層別墅設計圖,全家享精致生活
占地:167.29平方米
農村二層半別墅圖片大全,二層半別墅設計圖推薦
占地:160平方米
歐式四層(三層半)獨棟別墅設計圖復式,設計豪華時尚
占地:194平方米
10米×12米30萬以內農村建房三層豪華歐式別墅圖,處處顯品味
占地:120平方米
經典三層農村房屋設計圖紙,占地100平米左右,外觀典雅精致,內
占地:100平方米
仿古中式四合院別墅設計戶型圖,外觀圖古典風格
占地:524平方米
簡單農村二層平屋頂房屋設計圖,外觀簡潔、大方
占地:200平方米
農村自建房別再做傳統客廳!“客廳+茶室”一體設計,寬敞明亮
占地:143.73平方米
推薦:10套新農村自建房設計圖,2026年最新設計
閱讀次數:4825737次
100套鄉村別墅圖片大全,2026年最新設計
閱讀次數:2492203次
6款農村蓋一層平房的設計圖,10萬元就能建起來
閱讀次數:1852637次
這11個一層農村自建房別墅火爆了朋友圈!我最喜歡戶型十!你呢
閱讀次數:750268次
農村6萬元建一層小別墅圖,你敢相信嗎
閱讀次數:567686次
農村5萬塊就能自建房,6套普通房子設計圖分享,你沒看錯!
閱讀次數:419410次
8套農村漂亮三間平房圖片,非常適合在農村修建!
閱讀次數:411197次
農村自建房化糞池怎么做?附方案及施工過程
閱讀次數:391783次
農村一層三間平房設計圖,告別土氣養老房,讓人忍不住點贊
閱讀次數:350581次
新農村二層樓房圖片造價12萬,挑一套回家建房吧!
閱讀次數:349126次
