
|
隨著農村生活越來越富裕了,現在農村里建房子,大多數會去選擇找設計師設計規劃,這樣不僅能夠提前看到自己家未來的樣子,而且還能控制成本,不會造成不知道用料多少而造成的浪費,但是現在市面上有很多的設計風格,可以這樣說,每個設計師的風格都不一樣,所以今天小宅就把我們公司的設計曬出來,讓大家看看,是否符合你的胃口。
房屋信息 ? 占地尺寸:14.5X14.5米 ? 占地面積:197.65平方米 ? 建筑面積:457.11平方米 ? 建筑結構:磚混結構 ? 建筑高度:11.1米 ? 造價估算:22萬~30萬(僅供參考)
本套圖紙有施工圖和效果圖,包打印(效果圖為彩圖,施工圖為A3大圖)
一層平面圖:設有1玄關,1客廳,3臥室,2衛生間,1廚房,1餐廳
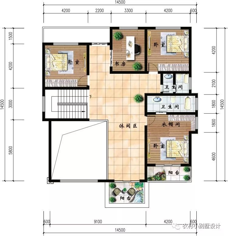
二層平面圖:設有3臥室,2衛生間,1書房,2陽臺(缺陷:空間利用不夠完美,可以優化設計)
看完這套別墅感覺怎么樣,說句實在話外觀確實非常的不錯,但內部布局稍微有點不合理,這個我要解釋一下,這個戶型一般是應求了客戶的需求來設計,所以每個家庭的內部設計都是不一樣,如果你想要建房可以收藏起來哦!
本套圖紙有施工圖和效果圖,包打印(效果圖為彩圖,施工圖為A3大圖)
圖紙之家-專注農村別墅/自建房設計18年,集合國內200余位經驗豐富的設計師,被評為口碑最好的農村建筑設計公司! |

125平兩層別墅房屋設計圖,帶普通和復式兩個戶型
占地:125平方米
農村四層樓房設計圖及外觀效果圖,造價60萬左右
占地:163.84平方米
2026年獨棟三層雙拼別墅戶型圖,總占地面積300平方米左右
占地:300平方米
110平預算20萬內三層別墅設計圖,含效果圖
占地:110平方米
175平大客廳三層別墅房屋設計圖,含外觀造型現代,美觀
占地:175平方米
小戶型三層別墅房屋設計圖紙,占地80多平米,麻雀雖小五臟俱全
占地:80平方米
時尚的農村二層別墅圖紙設計,現代風格,簡約的外觀
占地:152平方米左右
200多平方米新農村雙拼別墅設計圖紙,堂屋和樓梯共用
占地:207平方米左右
130多平方米新農村三層別墅建筑設計圖及效果圖
占地:133平方米左右
農村四間房屋設計圖經典戶型,這樣設計美觀、實用
占地:169平方米
帶地下室的農村自建三層半歐式別墅設計圖,看著真豪氣!
占地:142.45平方米
120平米三層別墅房屋設計圖,帶車庫,帶閣樓
占地:120平方米
歐式四層(三層半)獨棟別墅設計圖復式,設計豪華時尚
占地:194平方米
農村最好看18萬左右兩層小樓圖,外觀、造型簡潔大方
占地:120平方米
三層農村自建別墅設計圖紙及效果圖,占地110平米,外觀精致又大
占地:110平方米
二層平頂別墅設計圖,漂亮經濟實用二層農村小別墅最新房屋設計
占地:多種戶型
簡歐復式四層別墅房屋設計圖,外觀圖高端、大氣
占地:143平方米
二開間二層別墅設計圖,面寬9米,不可多得的好選擇!
占地:93.24平方米
歐式獨棟二層小別墅設計圖,客廳中空,占地126平米
占地:120平方米
115平方米農村三層別墅設計圖,預算30萬左右
占地:115平方米
推薦:10套新農村自建房設計圖,2026年最新設計
閱讀次數:4825737次
100套鄉村別墅圖片大全,2026年最新設計
閱讀次數:2492203次
6款農村蓋一層平房的設計圖,10萬元就能建起來
閱讀次數:1852637次
這11個一層農村自建房別墅火爆了朋友圈!我最喜歡戶型十!你呢
閱讀次數:750268次
農村6萬元建一層小別墅圖,你敢相信嗎
閱讀次數:567686次
農村5萬塊就能自建房,6套普通房子設計圖分享,你沒看錯!
閱讀次數:419410次
8套農村漂亮三間平房圖片,非常適合在農村修建!
閱讀次數:411197次
農村自建房化糞池怎么做?附方案及施工過程
閱讀次數:391783次
農村一層三間平房設計圖,告別土氣養老房,讓人忍不住點贊
閱讀次數:350581次
新農村二層樓房圖片造價12萬,挑一套回家建房吧!
閱讀次數:349126次
